Spacious three‑bed period home with lower-ground family hub and great commuting links.
- Large Victorian bay-front terrace with original period features
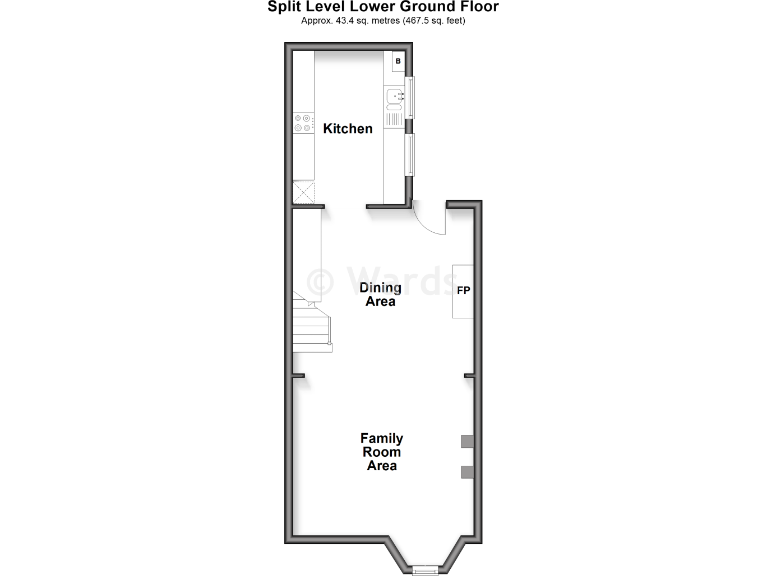
- Versatile lower-ground family/dining hub with garden access
- Three bedrooms, one family bathroom; single bathroom may limit families
- Approximately 1,228 sq ft across three floors, freehold title
- Double glazing and gas central heating, ready to move into
- Small front and rear gardens; low maintenance outdoor space
- Walking distance to Chatham station and several highly rated schools
- Local area: very high crime and high deprivation — consider security
This handsome Victorian terraced house offers generous, well-proportioned living over three floors with a genuine period character. The lower-ground floor is a versatile family hub — open-plan dining and family areas flow to the rear garden while a separate front lounge provides quieter evening space. With original features sympathetically combined with contemporary touches, the house is ready to move into for a family or professional couple.
Set within walking distance of Chatham railway station and several highly rated local schools (including two grammar schools ranked in the top 10%), the location suits daily commuters and families prioritising education. The property is freehold, double-glazed, gas‑central heated and totals about 1,228 sq ft, giving practical room sizes across three bedrooms and a single bathroom.
Practical positives include an affordable council tax band, no flood risk and excellent mobile and broadband coverage. Outside space is compact but private — a small front and rear garden offer summer usability and easy maintenance. The solid-brick construction and period bays deliver strong kerb appeal and character throughout.
Buyers should note the local context: the wider area scores high for deprivation and recorded crime levels are very high, which may influence personal security and resale considerations. The plot is small and there is only one bathroom, factors to weigh for larger families. Any purchaser should verify all specifics with their solicitor and survey, including wall insulation assumptions and planning history.
3 bedroom terraced house for sale in Rochester Street, Chatham, Kent, ME4 — £325,000 • 3 bed • 1 bath • 948 ft²
3 bedroom terraced house for sale in Victoria Road, Chatham, Kent, ME4 — £280,000 • 3 bed • 1 bath • 937 ft²
1 bedroom end of terrace house for sale in Clarence Road, Chatham, Kent, ME4 — £150,000 • 1 bed • 1 bath • 560 ft²
2 bedroom terraced house for sale in Alexandra Road, Chatham, Kent, ME4 — £225,000 • 2 bed • 1 bath • 754 ft²
3 bedroom end of terrace house for sale in Institute Road, Chatham, Kent, ME4 — £230,000 • 3 bed • 1 bath • 1163 ft²
3 bedroom terraced house for sale in Dale Street, Chatham, ME4 — £210,000 • 3 bed • 1 bath • 907 ft²






































































