Five freehold building plots with outline permission on the edge of Manea — planning-led developer opportunity.
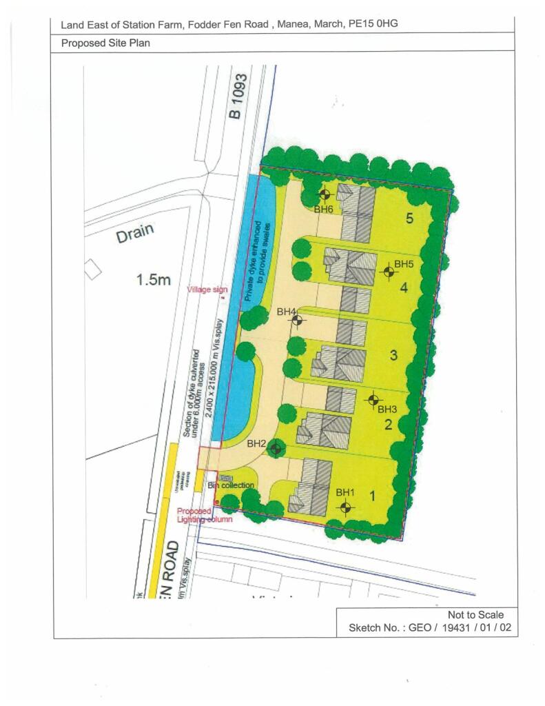
Outline planning for five two‑storey dwellings (Ref. F/YR23/0072/O)
Each plot approx 61ft x 118ft with private garden space
Freehold; large overall plot — significant development footprint
Rural location with open-field views; near Manea train station
Medium flood risk — mitigation likely required for development
Services untested; buyer must arrange all surveys and connections
Slow broadband and average mobile signal may affect occupier appeal
Offered as land; reserved matters and infrastructure costs not included
A compact development opportunity on the outskirts of Manea: five freehold building plots with outline planning permission (Ref. F/YR23/0072/O) for a two‑storey dwelling on each plot. Each plot is roughly 61ft frontage by 118ft depth, offering generous individual gardens and a clear site layout shown on the submitted plan. The location sits in a rural setting with open-field views and straightforward access to Manea train station, useful for commuter appeal.
This plot package will suit a small developer or investor seeking a modest scheme in a low‑density, countryside market. The outline permission speeds up initial delivery risk, but the site is sold as land and will require detailed reserved‑matters design, services connections and compliance with planning conditions before construction.
Practical considerations: broadband speed is slow and mobile signal is average, and the site is assessed as medium flood risk — both factors that will affect build-costs, design and marketability. Services have not been tested and purchasers must undertake their own surveys, ground investigations and consult with local authorities about drainage and access requirements.
Offered freehold at £550,000, this is a clear planning-led development parcel in a rural fringe location. For a buyer prepared to manage infrastructure, flood mitigation and detailed planning work, the site presents potential to deliver five family homes with good plot sizes and countryside appeal.
Land for sale in Parkside, Manea, PE15 — £125,000 • 4 bed • 1 bath
Land for sale in School Lane, Manea, March, Cambs., PE15 0JN, PE15 — £90,000 • 3 bed • 1 bath
Land for sale in Land North & West of High Street, Manea, March., PE15 0JA , PE15 — £250,000 • 2 bed • 1 bath
Land for sale in Flaggrass Hill Road, March, PE15 — £250,000 • 1 bed • 1 bath
Land for sale in Orchard Way, Manea, March, PE15 — £75,000 • 1 bed • 1 bath
5 bedroom property for sale in Stocking Drove, Chatteris, PE16 — £199,995 • 5 bed • 1 bath • 9354 ft²






























