Full planning for four homes on almost two acres with sea views and modern energy specs.
Detailed Planning Consent for four dwellings (31 July 2024)
Just under two acres; large development footprint
Coastal and farmland views; adjacent to Murcar Links Golf Club
Includes solar panels, air source heat pumps, underfloor heating
Several buildings derelict; substantial repair required
Very slow broadband in the immediate area
Freehold tenure; mains water and drainage connected
Located near Balmedie Primary and Bridge of Don Academy
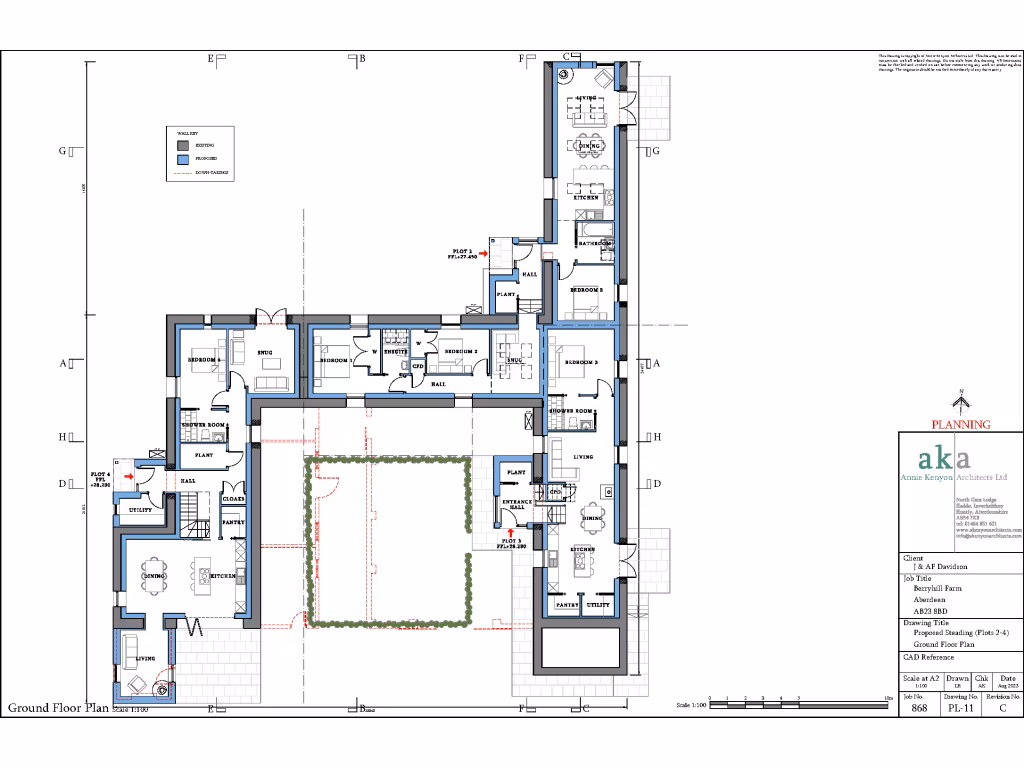
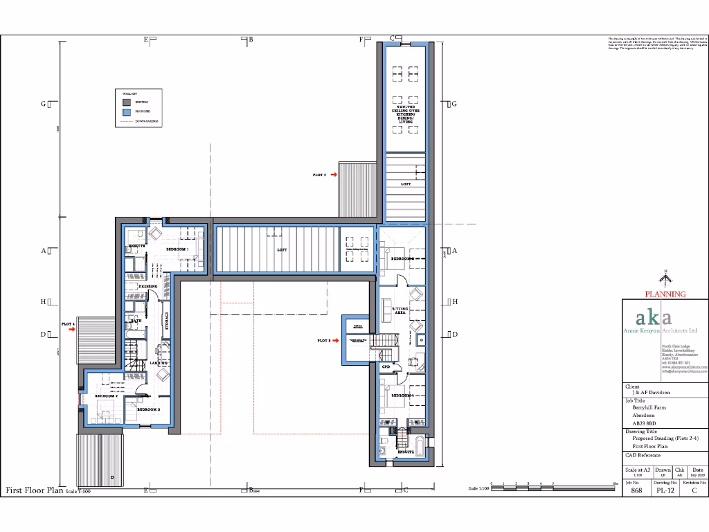
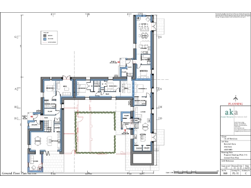
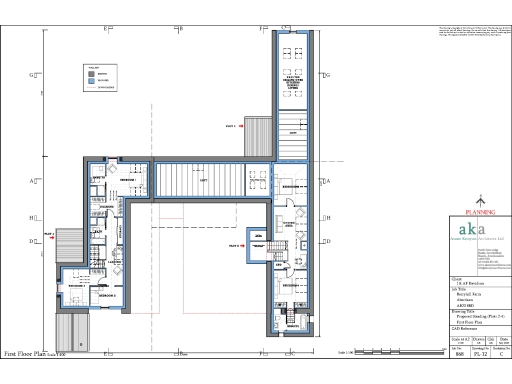
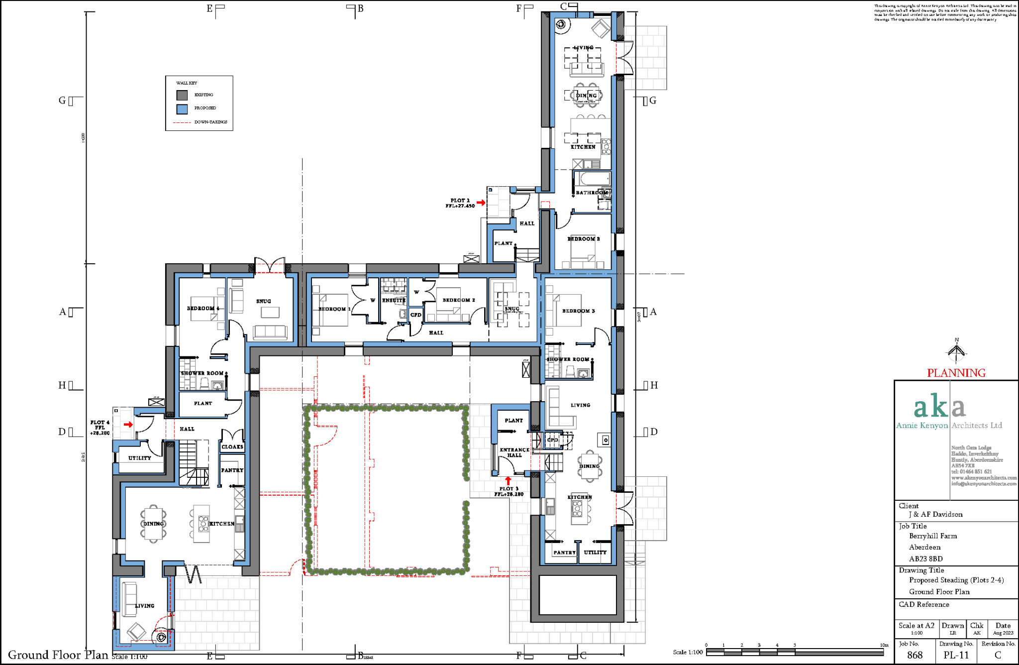
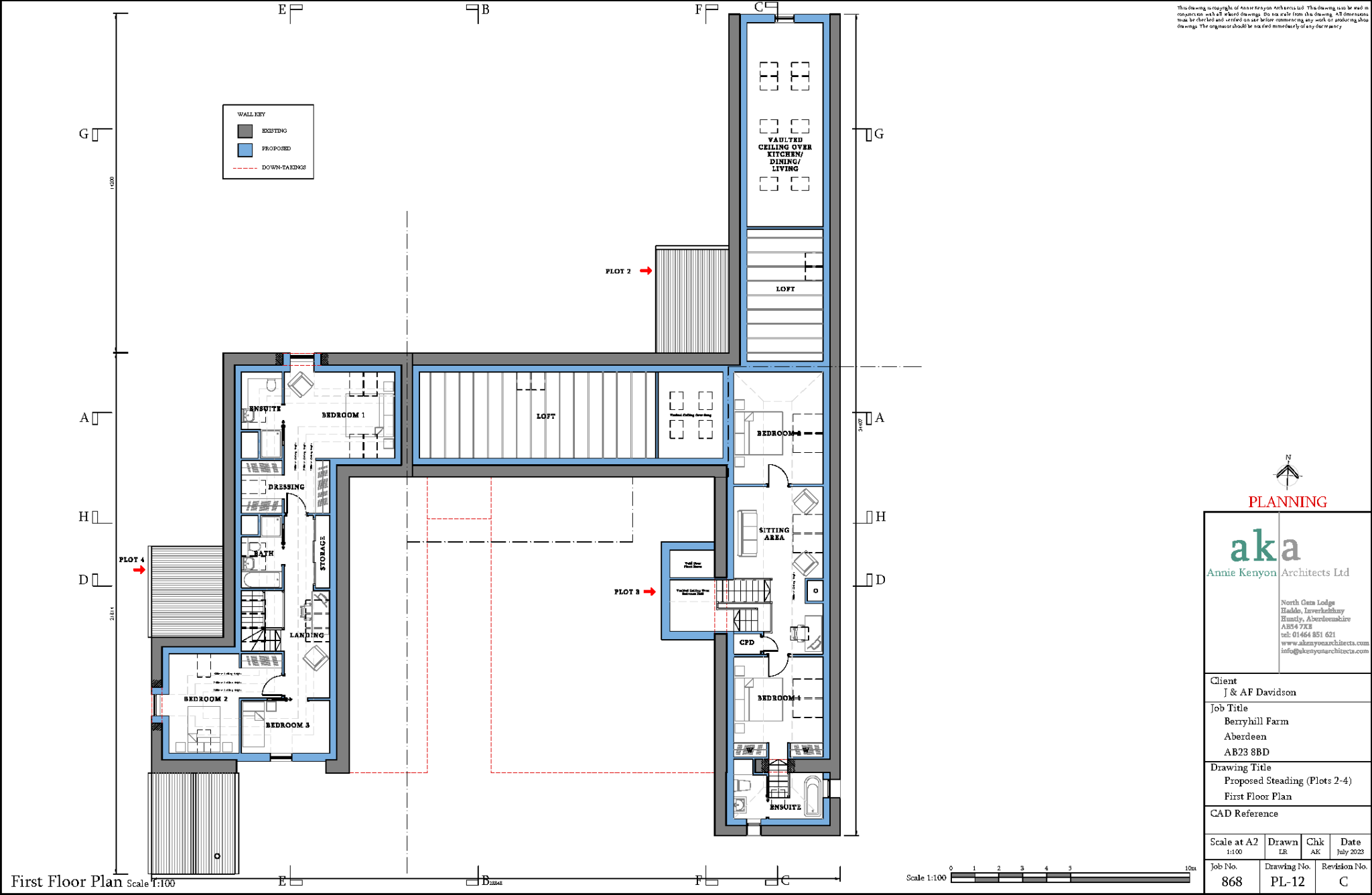
An unusual development package with Detailed Planning Consent to convert existing steading buildings into four bespoke homes. The site extends to just under two acres and sits on the edge of Bridge of Don, bordering Murcar Links Golf Club, with far-reaching views across farmland to the North Sea. Detailed plans (Planning Application No. 231141/DPP) were approved by Aberdeen City Council on 31 July 2024 and are available on the planning portal.
The buildings are traditional stone farmstead structures and include a bothy, barn steading and ancillary outbuildings. The consented scheme creates one single-storey dwelling and three multi-storey dwellings (three plots with three double bedrooms and one plot with four bedrooms). Designs incorporate vaulted ceilings, glazed gable ends, Velux windows, patio doors, air source heat pumps, underfloor heating and solar panels to modernise the homes while retaining character.
Buyers should note this is primarily a renovation and conversion project: some structures are derelict and will require substantial repair and contractor input. The site has mixed external areas—hard standing and overgrown ground—so landscaping and garden formation are required. Broadband provision in the immediate area is very slow and the wider area shows signs of socio-economic deprivation; these factors could affect end-user attraction for some buyers.
This is a clear opportunity for an owner-developer or small-scale residential developer seeking a plotted conversion with consent in place, coastal views and sizeable grounds. Practical positives include mains water and drainage, freehold tenure, proximity to local schools (Balmedie Primary and Bridge of Don Academy), good road links via the A92 and AWPR, and easy access to Aberdeen airport for wider market appeal.
Land for sale in Udny Green, Ellon, Aberdeenshire, AB41 7RA, AB41 — POA • 1 bed • 1 bath
Land for sale in Land At Ceolmara, Findon Road, Porlethen, AB12 3RN, AB12 — £150,000 • 1 bed • 1 bath
Land for sale in 98 acres Land at Millden, Balmedie, AB23 8YY, AB23 — £540,000 • 1 bed • 1 bath
Commercial property for sale in Land At Ceolmara, Findon Road, Porlethen, AB12 3RN, AB12 — £150,000 • 1 bed • 1 bath
Land for sale in Land At Millden, Balmedie, Aberdeen, Aberdeenshire, AB23 — £540,000 • 1 bed • 1 bath
Residential development for sale in 54 Gallowgate, Aberdeen, AB10 — £2,250,000 • 1 bed • 1 bath


























































































