Stylish family home near Chelmsford station and top-rated schools.
Victorian mid-terrace with period features and modern updates
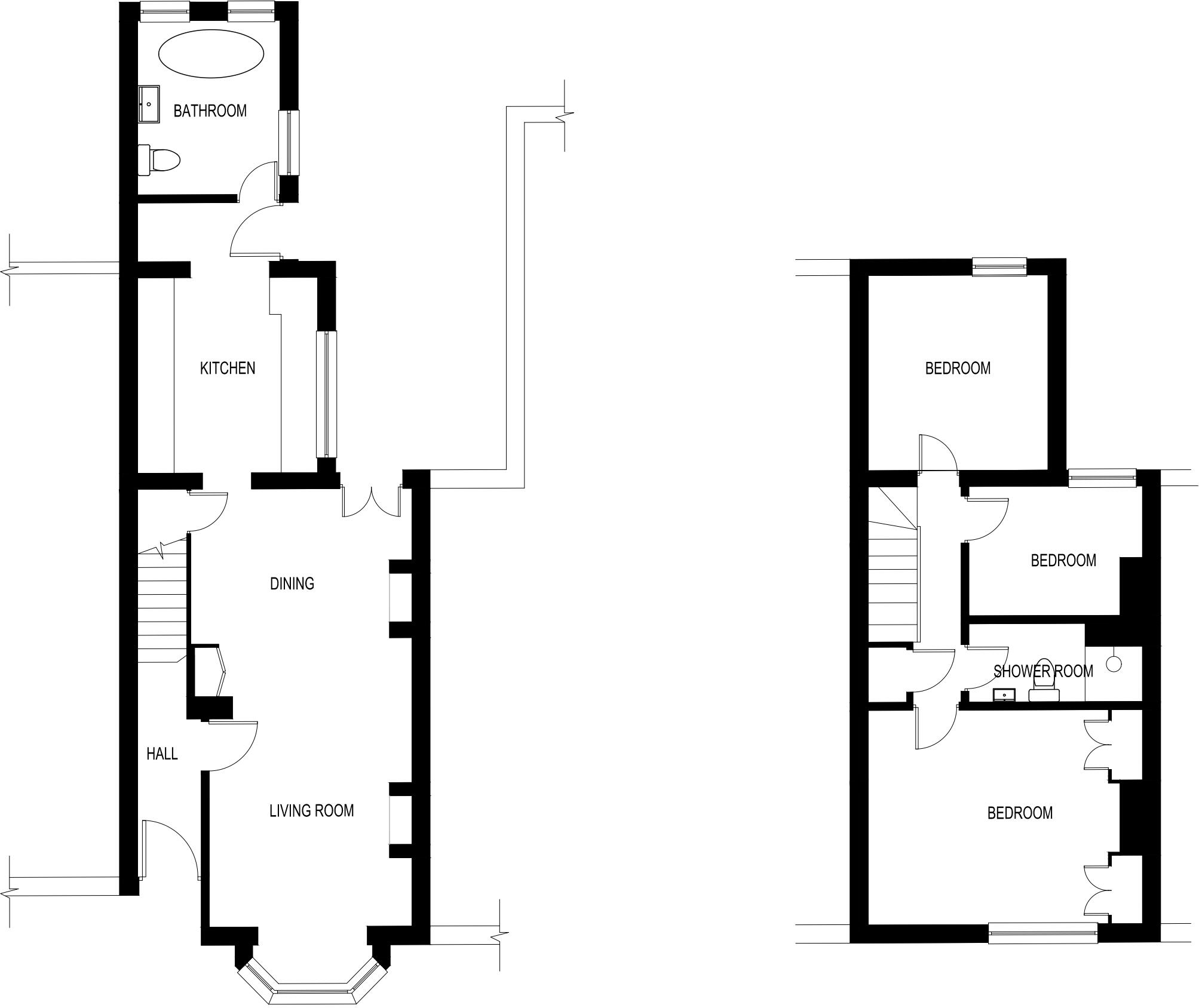
This tastefully presented Victorian mid-terrace blends period character with contemporary updates across a practical three-bedroom layout. An open-plan living and dining area leads to a well-equipped kitchen and direct access to a private rear garden — ideal for family life or entertaining. The front garden has been recently landscaped, creating welcoming kerb appeal.
The accommodation is arranged over two floors and includes a principal family bathroom on the ground floor and a contemporary shower room upstairs, giving good flexibility for busy households. Bedrooms are well proportioned for the property’s footprint, though room sizes are generally modest and ceiling heights are standard — typical of older terraced homes.
Location is a major strength: short walks to Chelmsford city centre and the station for London commuters, and close to several highly regarded schools including two outstanding secondaries. Practical notes: parking is on-street by permit, the plot is small, and local crime levels are above average. Overall this freehold home suits families, professionals or first-time buyers seeking character, convenience and scope to personalise.
3 bedroom terraced house for sale in Walk to City Centre, CM1 — £375,000 • 3 bed • 1 bath • 950 ft²
2 bedroom terraced house for sale in Upper Bridge Road, Chelmsford, CM2 — £300,000 • 2 bed • 1 bath • 726 ft²
3 bedroom terraced house for sale in Victoria Crescent, Chelmsford, Essex, CM1 — £325,000 • 3 bed • 1 bath • 713 ft²
3 bedroom terraced house for sale in Lady Lane, Old Moulsham, Chelmsford, Essex, CM2 — £400,000 • 3 bed • 1 bath • 957 ft²
2 bedroom terraced house for sale in Sandford Road, Chelmsford, CM2 — £375,000 • 2 bed • 1 bath • 585 ft²
3 bedroom semi-detached house for sale in Waterhouse Street, Chelmsford, Essex, CM1 — £450,000 • 3 bed • 1 bath










































































