### Standout Features:
- Two generous double bedrooms
- Spacious reception room with a log burner
- Low-maintenance secure rear garden
- Close proximity to Wigan Town Centre
- Available chain-free for rapid move-in
- Excellent transport links and local amenities
### Summary:
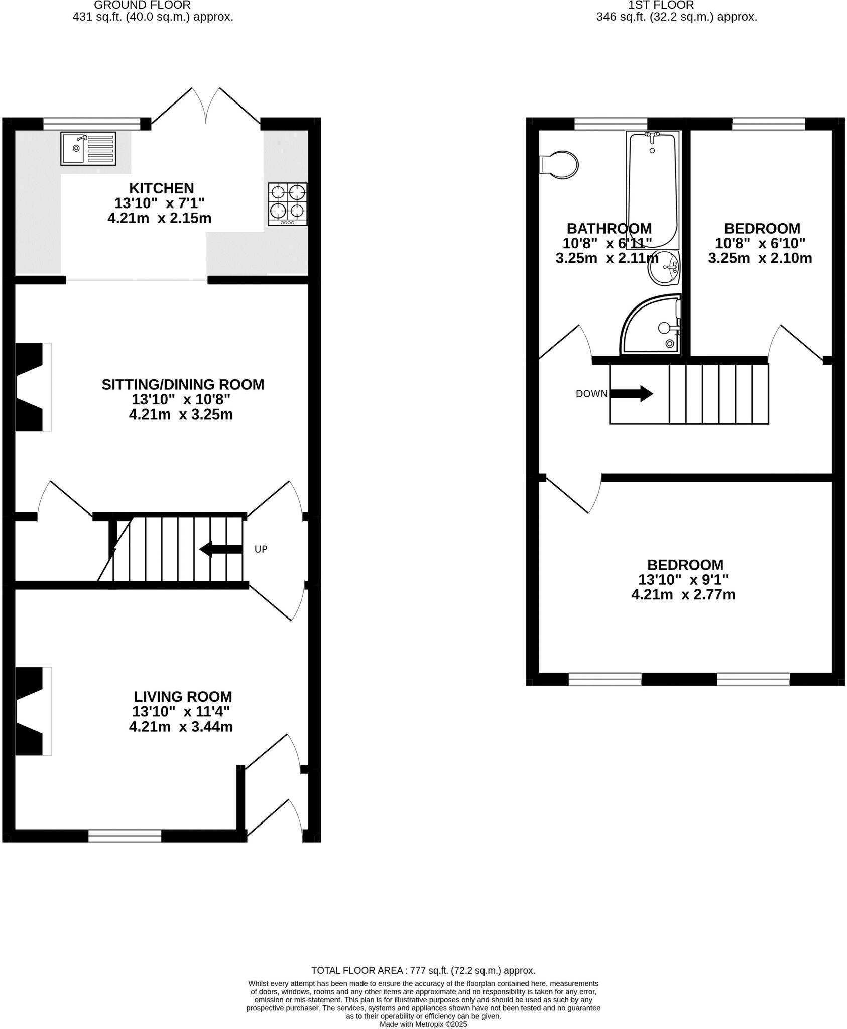
Nestled in a vibrant part of Wigan, this charming two-bedroom mid-terrace home is perfect for first-time buyers or investors seeking a swift entry into the property market. Featuring traditional red brick architecture and period details, the inviting living area is complemented by a second, more spacious reception room, ideal for family gatherings or entertaining guests. The functional kitchen boasts modern conveniences with a breakfast bar and direct access to a private, low-maintenance garden—an excellent outdoor retreat.
Upstairs, you'll find two comfortable double bedrooms and a family bathroom fitted with contemporary fixtures, catering well to both family life and guests. The property’s location offers serene living with on-street parking, excellent mobile and broadband connectivity, and low crime rates, enhancing your everyday experience while being just a stone's throw from Wigan Town Centre. With no onward chain, this delightful home awaits its new owners—seize this opportunity before it’s gone!
2 bedroom terraced house for sale in Enfield Street, Wigan, WN5 — £125,000 • 2 bed • 1 bath • 742 ft²
2 bedroom terraced house for sale in Gidlow Lane, Wigan, Greater Manchester. WN6 7EA, WN6 — £125,000 • 2 bed • 1 bath • 941 ft²
2 bedroom terraced house for sale in Spring Street, Wigan, WN1 3EX, WN1 — £125,000 • 2 bed • 1 bath • 658 ft²
2 bedroom terraced house for sale in Walkden Avenue, Swinley, Wigan, WN1 2JJ, WN1 — £185,000 • 2 bed • 1 bath • 880 ft²
2 bedroom terraced house for sale in Wright Street, Wigan, WN1 — £120,000 • 2 bed • 1 bath • 849 ft²
2 bedroom terraced house for sale in Ince Green Lane, Wigan, WN2 2DG, WN2 — £95,000 • 2 bed • 1 bath • 651 ft²


































































