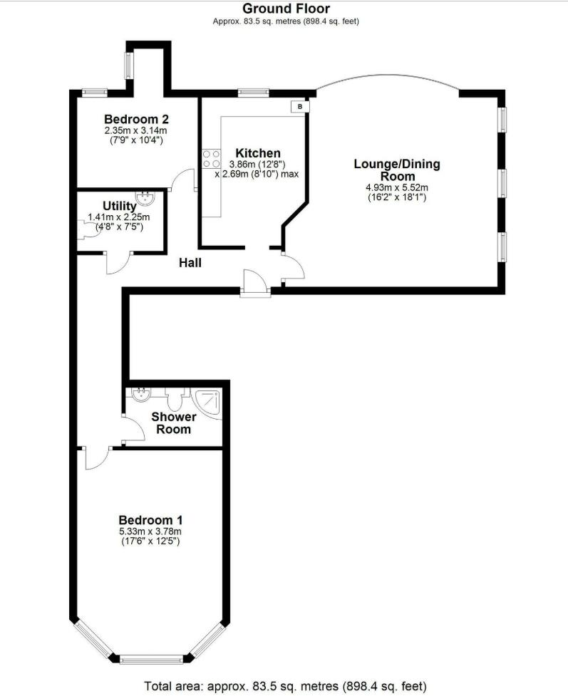
**Standout Features:**
- 2-bedroom flat in a Grade II listed Georgian property
- Ideally located close to the town centre
- Communal garden and rear garage
- Chain-free sale; cash buyers only
- Requires renovation and updates
- Leasehold with 45 years remaining
This charming two-bedroom flat, nestled within a Grade II listed Georgian property, offers a unique opportunity for cash buyers seeking a renovation project in a prime location. Though the interior requires updating, it provides a spacious living area, fitted kitchen, cloakroom, and shower room, all set within an average-sized layout. The sizable living room features ample windows that flood the space with natural light, while the nearby communal garden and private garage add valuable external amenities.
Situated near the heart of Newmarket, you will enjoy easy access to local shops, dining, and leisure activities, making it ideal for small families or investors. However, be aware that the property’s 45-year lease may pose challenges for traditional financing, and the exterior displays evidence of needed upkeep, particularly the roof. With a proactive approach and vision, this property represents a unique canvas, perfect for those looking to create their dream home in a vibrant community. Don't miss the chance to secure a slice of history and the potential for future value in this delightful flat—opportunities like this won’t last long!
2 bedroom apartment for sale in Stockbridge House, 192, High Street, Newmarket, Suffolk, CB8 — £115,000 • 2 bed • 1 bath • 882 ft²
1 bedroom flat for sale in St. Marys Square, Newmarket, CB8 — £140,000 • 1 bed • 1 bath • 431 ft²
2 bedroom flat for sale in High Street, Newmarket, CB8 — £120,000 • 2 bed • 1 bath • 500 ft²
4 bedroom terraced house for sale in High Street, Newmarket, CB8 — £275,000 • 4 bed • 1 bath • 1244 ft²
1 bedroom flat for sale in Armstrong Close, Newmarket, CB8 — £120,000 • 1 bed • 1 bath • 475 ft²
2 bedroom apartment for sale in Tattersalls Crescent, The Avenue, Newmarket, CB8 — £165,000 • 2 bed • 1 bath • 621 ft²


















































