Affordable two-bedroom with enclosed rear yard and strong rental appeal.
Chain-free freehold sale, ready for a quick completion
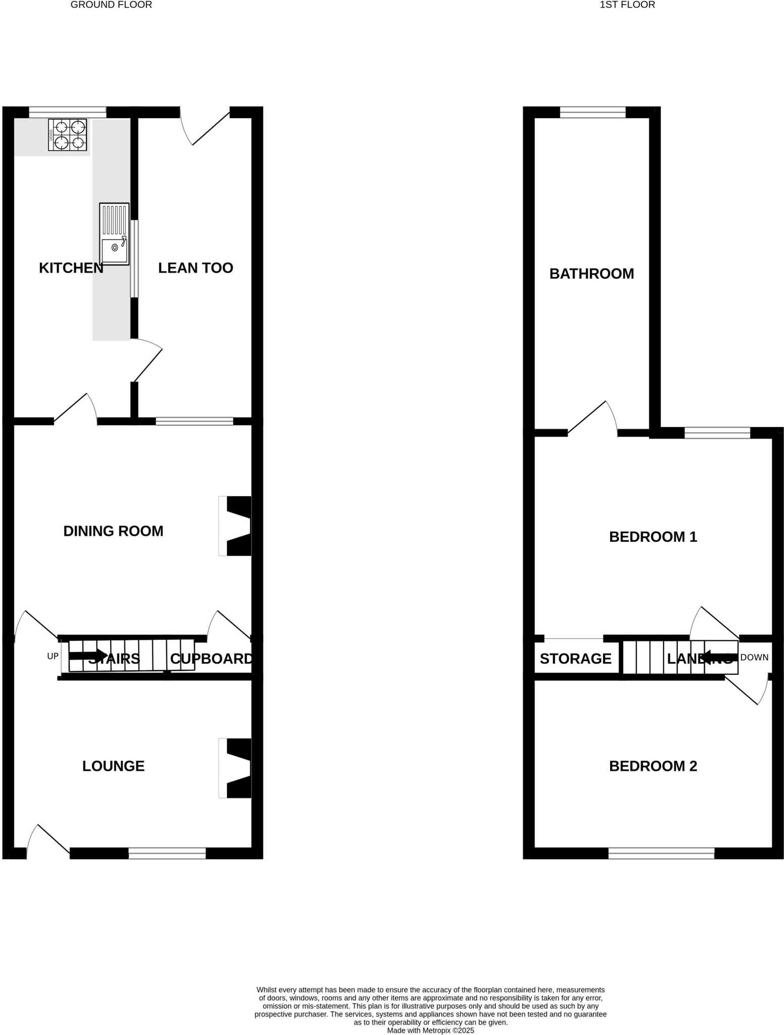
A chain-free Victorian end-terrace offering straightforward, affordable entry into the Barnton market. The property has two reception rooms, a practical kitchen with lean-to storage and two first-floor bedrooms, making it suitable for a small family, first-time buyer or buy-to-let investor.
Internally the rooms are functional and neutrally presented with laminate and original features such as a front fireplace. The layout is traditional and usable, but the house would benefit from updating in places — cosmetic and modernisation work will add value and improve comfort. Services such as fast broadband and a wall-mounted boiler are in place.
Externally there is an enclosed rear yard providing private outdoor space; the plot is small so landscaping options are limited. The home is freehold, in council tax band A and offered with no onward chain, which helps a quick, low-risk purchase process.
Location is convenient for local amenities, schools and transport links. The wider streets are classed as working-class terraces; while the neighbourhood shows average crime and some area deprivation, nearby good schools and local facilities support everyday family life and rental demand.
2 bedroom terraced house for sale in Spencer Street, Northwich, CW8 — £170,000 • 2 bed • 1 bath • 669 ft²
3 bedroom end of terrace house for sale in Lydyett Lane, Barnton, CW8 — £200,000 • 3 bed • 1 bath • 921 ft²
3 bedroom semi-detached house for sale in Runcorn Road, Barnton, Northwich, CW8 — £200,000 • 3 bed • 1 bath • 968 ft²
2 bedroom terraced house for sale in Runcorn Road, Barnton, Northwich, Cheshire, CW8 — £142,500 • 2 bed • 1 bath • 708 ft²
3 bedroom end of terrace house for sale in Runcorn Road, Barnton, Northwich, Cheshire, CW8 — £220,000 • 3 bed • 1 bath • 980 ft²
3 bedroom end of terrace house for sale in Runcorn Road, Barnton, Northwich, CW8 — £235,000 • 3 bed • 2 bath • 1394 ft²














































