Elegant stone barn with panoramic countryside views and large gardens.
Panoramic views to Beamsley Beacon and surrounding fields
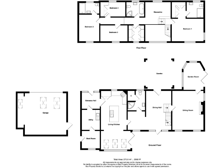
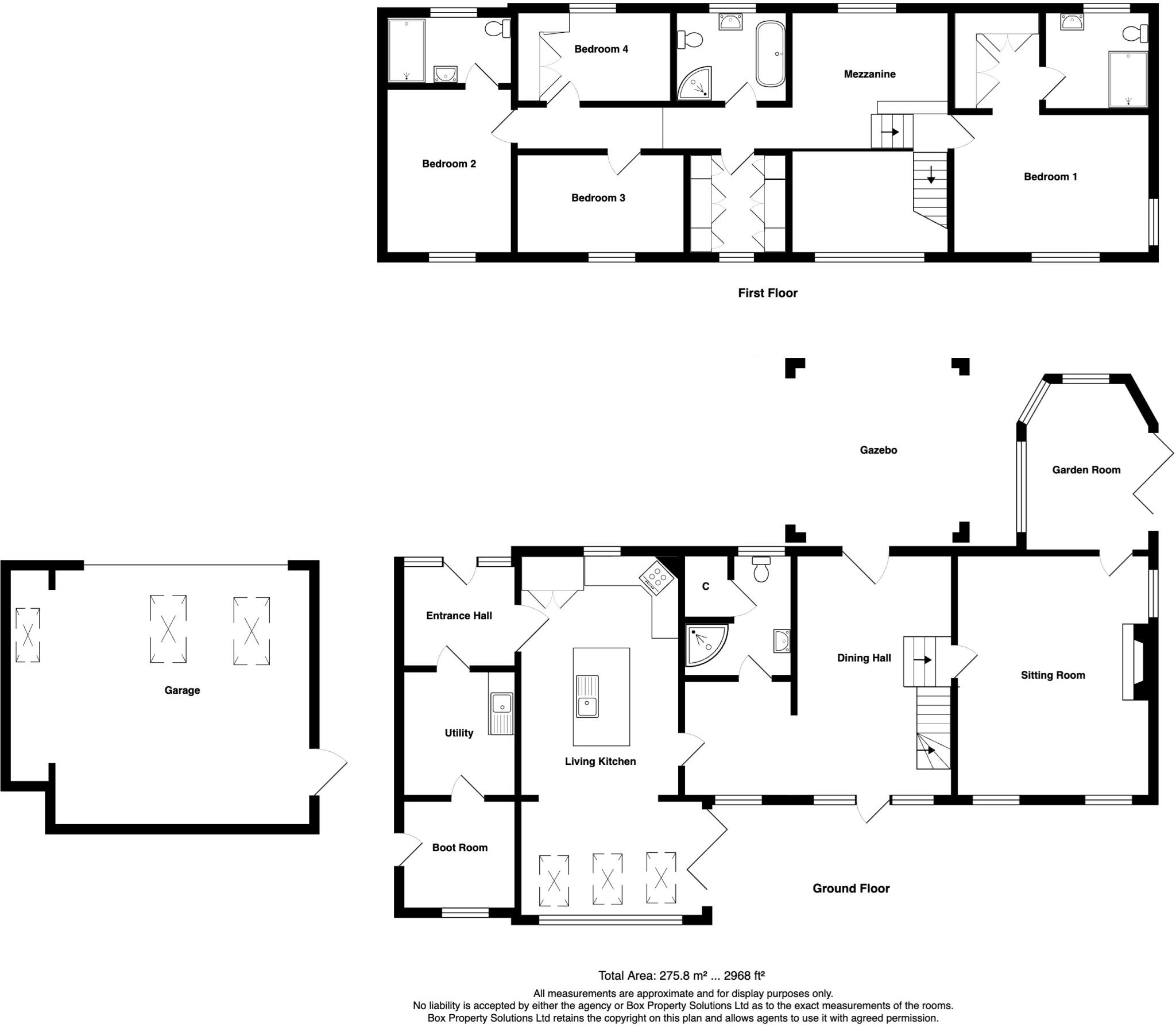
Lower White Well Barn is a striking stone barn conversion set in open countryside with uninterrupted views to Beamsley Beacon. The house has been sensitively finished to retain character — exposed stone, oak features and beams — while providing generous, flexible family accommodation across a large footprint. The ground floor living kitchen with bi-folds, separate sitting rooms and a garden room make the most of the outlook and sunshine.
Four main bedrooms (optionally five with the dressing room) include two en suites and a family bathroom, arranged around a galleried landing and mezzanine reading space. Outside, mature, well-planned gardens, tiered lawns with a bordering stream and multiple seating areas create private outdoor rooms. Practical benefits include a larger-than-average detached double garage, ample parking behind electric gates and useful utility and boot rooms.
Important practical points are factual: the property is heated by an LPG boiler (not mains gas) and the EPC rating is E, which may affect running costs and future upgrades. Broadband performance is reported as very slow locally. The plot is large and peaceful, reached down a private lane; boundaries should be confirmed by title deeds. Council Tax sits in a higher band.
This house will suit buyers seeking tranquillity, countryside views and period character with roomy, flexible living. It also suits families who need proximity to good local schools and an Ilkley commuter link, and buyers should be prepared for the ongoing costs and practicalities of a rural, LPG-heated period home.
 5 bedroom link detached house for sale in Hebers Ghyll Drive, Ilkley, LS29 — £1,300,000 • 5 bed • 2 bath • 2970 ft²
 5 bedroom link detached house for sale in Hebers Ghyll Drive, Ilkley, LS29 — £1,300,000 • 5 bed • 2 bath • 2970 ft² 3 bedroom barn conversion for sale in The Green, Addingham, LS29 — £775,000 • 3 bed • 2 bath • 1906 ft²
 3 bedroom barn conversion for sale in The Green, Addingham, LS29 — £775,000 • 3 bed • 2 bath • 1906 ft² 3 bedroom house for sale in Moorside Lane, Addingham, Ilkley, West Yorkshire, LS29 — £850,000 • 3 bed • 3 bath • 1714 ft²
 3 bedroom house for sale in Moorside Lane, Addingham, Ilkley, West Yorkshire, LS29 — £850,000 • 3 bed • 3 bath • 1714 ft² 4 bedroom barn conversion for sale in Sconce Lane, High Eldwick, Bingley, West Yorkshire, BD16 — £850,000 • 4 bed • 3 bath • 2895 ft²
 4 bedroom barn conversion for sale in Sconce Lane, High Eldwick, Bingley, West Yorkshire, BD16 — £850,000 • 4 bed • 3 bath • 2895 ft² 4 bedroom detached house for sale in Moorside Lane, Addingham, Ilkley, West Yorkshire, LS29 — £1,150,000 • 4 bed • 4 bath • 2586 ft²
 4 bedroom detached house for sale in Moorside Lane, Addingham, Ilkley, West Yorkshire, LS29 — £1,150,000 • 4 bed • 4 bath • 2586 ft² 3 bedroom detached house for sale in Off Ben Rhydding Drive, Ilkley, LS29 — £1,100,000 • 3 bed • 3 bath • 2490 ft²
 3 bedroom detached house for sale in Off Ben Rhydding Drive, Ilkley, LS29 — £1,100,000 • 3 bed • 3 bath • 2490 ft²






















































































































































































