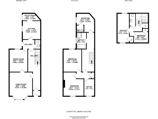
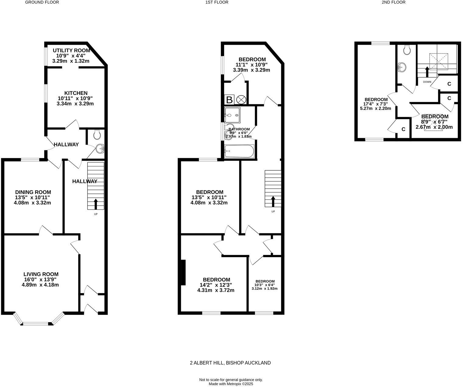
**Standout Features:**
- **Spacious Living**: Six bedrooms, perfect for families or as rental potential.
- **Period Charm**: Victorian architecture with original features, including stained glass and tiled flooring.
- **Modern Comforts**: Newly installed kitchen with underfloor heating and utility space.
- **Prime Location**: Centrally located near amenities and schools, ideal for urban living.
- **Off-Street Parking**: Single parking space at the rear.
**Notable Concerns:**
- **Crime Rate**: Above average in the area.
- **Lack of Insulation**: Timber frame construction may require future insulation updates.
- **Potential Renovation Needs**: Despite recent renovations, ongoing maintenance may still be necessary.
Discover this impressive mid-terrace house, originally built in 1865, that artfully combines Victorian charm with modern living. Boasting six spacious bedrooms, this home presents a fantastic opportunity for families or savvy investors looking to tap into rental potential. The newly refurbished kitchen features stylish cabinetry, underfloor heating, and traditional elements that harmonize with original period details found throughout the home, such as exquisite stained glass and ornate coving.
Located in the heart of Bishop Auckland, enjoy easy access to local amenities, schools, and recreational facilities, making it an ideal spot for families. Though the area has a higher crime rate and the property lacks insulation in its timber walls, the unique character and flexible space offer endless possibilities for the next owner. With off-street parking and an inviting garden, now is an exceptional time to invest in this well-appointed, historic property before it’s gone! Don’t miss the chance to make it your own!
3 bedroom terraced house for sale in Cockton Hill Road, Bishop Auckland, Durham, DL14 — £170,000 • 3 bed • 2 bath • 1880 ft²
6 bedroom end of terrace house for sale in Cockton Hill Road, Bishop Auckland, DL14 — £140,000 • 6 bed • 1 bath • 1215 ft²
3 bedroom terraced house for sale in Escomb Road, Bishop Auckland, DL14 — £195,000 • 3 bed • 1 bath • 870 ft²
4 bedroom terraced house for sale in South View, Bishop Auckland, DL14 — £160,000 • 4 bed • 1 bath • 1604 ft²
4 bedroom terraced house for sale in Waldron Street, Durham, DL14 — £179,950 • 4 bed • 1 bath • 1409 ft²
2 bedroom terraced house for sale in Sun Street, Bishop Auckland, Durham, DL14 — £60,000 • 2 bed • 1 bath • 635 ft²






































































































