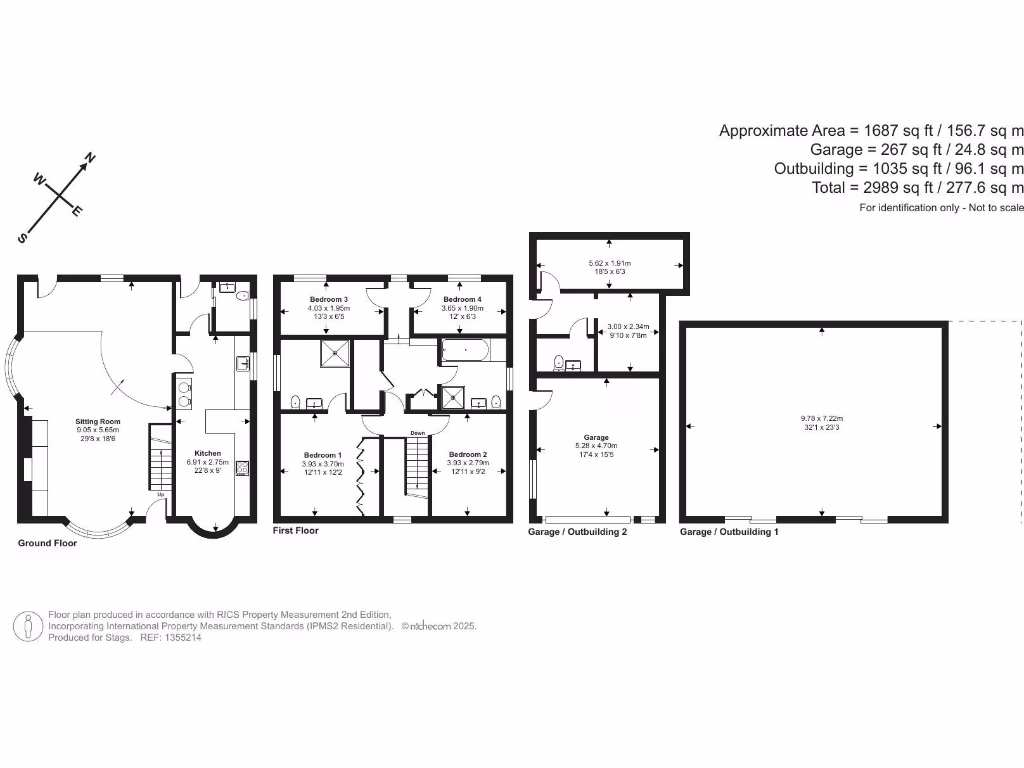
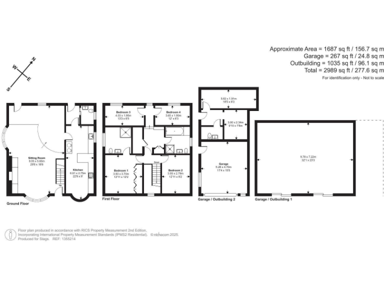
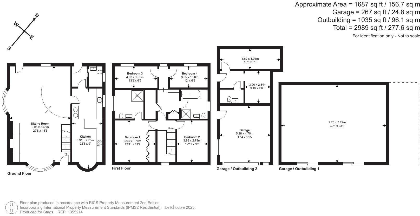
Large plot with paddocks, barn and scope for improvement close to Honiton.
- Approximately 1.4 acres including two level grass paddocks
- Substantial 32’ x 23’ barn with lean-to and conversion potential
- Four bedrooms; principal rooms with high ceilings and period detail
- Landscaped gardens, pond, mature shrubs and private terraces
- Requires modernisation: insulation, interior updates, and service checks
- EPC F and oil-fired central heating; walls likely uninsulated granite
- Septic tank private drainage untested; flood reported in 2008
- Garage, outbuildings and ample parking alongside driveway
Set in the peaceful hamlet of Fenny Bridges, this four-bedroom Georgian detached house sits in about 1.4 acres including two paddocks and substantial outbuildings. The large 32’ x 23’ barn with lean-to, garage and further stores offers genuine scope for workshop, equestrian or conversion subject to consents. Landscaped gardens, mature planting and a pond give privacy and attractive rural views, while good broadband and mobile signal support home working.
The property requires a degree of modernisation throughout: cosmetic updates, likely insulation and heating improvements, and full testing of services are needed. The main heating is oil-fired with a boiler and radiators; walls are granite with assumed no cavity insulation. The EPC rating is F and the septic tank is untested. A historic flood event was reported in 2008 — potential buyers should make relevant enquiries and seek surveyor advice.
This substantial plot and handsome period footprint suit buyers seeking a long-term family country house, an equestrian base, or a renovation project with value-add potential. Commuting to Honiton, Exeter and nearby towns is straightforward, and local schools and village amenities are within easy reach. The property is freehold with council tax band F.
3 bedroom detached house for sale in Rosary Cottage, Fenny Bridges, EX14 — £390,000 • 3 bed • 1 bath • 1225 ft²
4 bedroom detached house for sale in Fenny Bridges, Honiton, EX14 — £520,000 • 4 bed • 2 bath • 1674 ft²
3 bedroom detached house for sale in Feniton, Honiton, Devon, EX14 — £524,000 • 3 bed • 2 bath • 1854 ft²
5 bedroom detached house for sale in Buckerell, Honiton, EX14 — £1,225,000 • 5 bed • 3 bath • 2871 ft²
3 bedroom detached house for sale in Barton Rise, Feniton, Honiton, EX14 3HW, EX14 — £450,000 • 3 bed • 2 bath • 1083 ft²
3 bedroom semi-detached house for sale in Bridge Cottage, Green Lane, EX14 — £529,000 • 3 bed • 2 bath • 1158 ft²


















































































































