Chain-free three-bed with generous garden and large driveway near top schools.
No onward chain; ready to move into
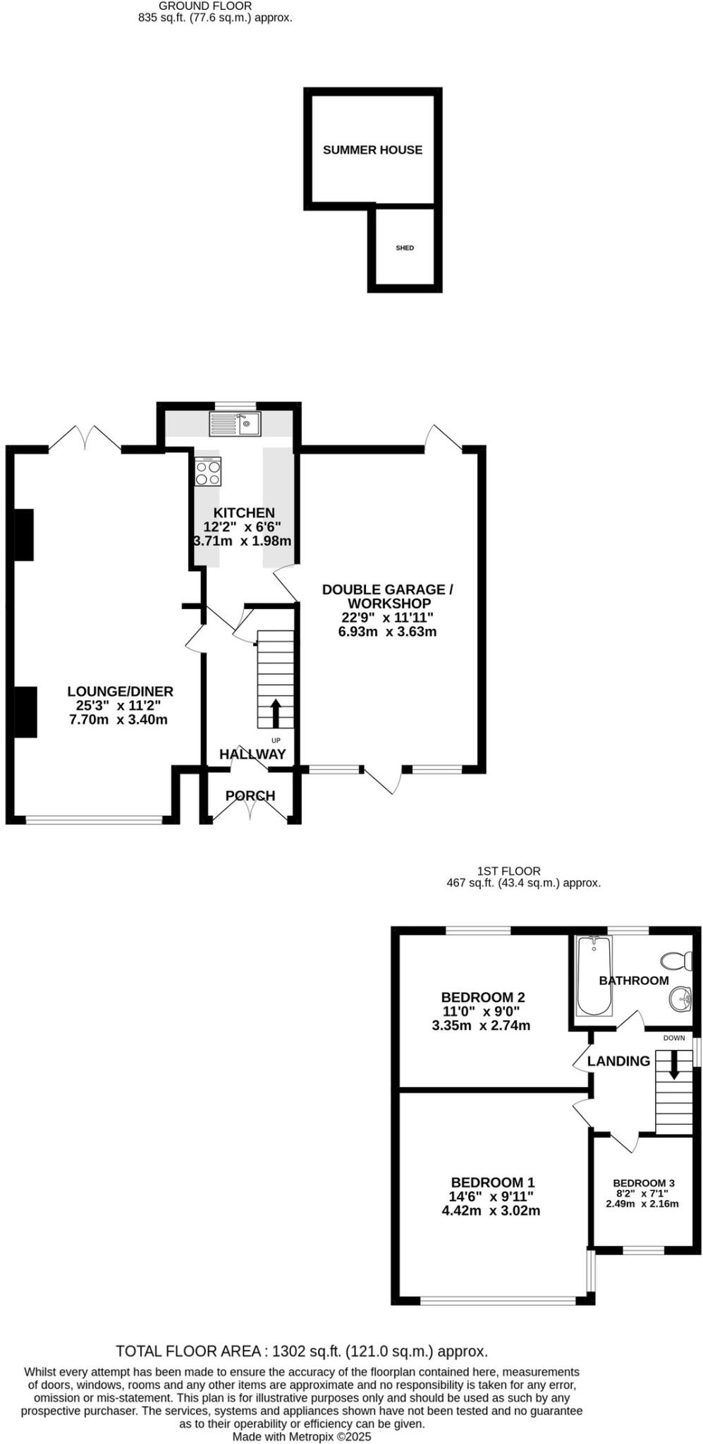
A spacious three-bedroom semi-detached family home offered with no onward chain. The house sits on a generous plot with a large rear garden, raised terrace and multiple outbuildings — ideal for family life, outdoor play and storage. The bright lounge/diner opens to the garden via French doors; the modern fitted kitchen and well-presented bathroom mean the property is ready to move into.
Practical benefits include a wide driveway that accommodates several cars and a substantial detached garage/workshop (22'9" x 11'11") that can be used for home-working, hobby space or storage. There is clear potential to extend to the side and rear, subject to planning permission, offering scope to increase living space and future value.
Buyers should note material considerations: the property is in a deprived area with a very high local recorded crime level, which may affect security and insurance costs. The house is of solid brick construction typical of the early 20th century and is assumed to lack cavity wall insulation, so energy-efficiency upgrades may be needed. There is only one family bathroom for three bedrooms.
The location is a strong draw for families, within walking distance of high-performing secondary schools and local amenities. For purchasers seeking a well-presented, chain-free family home with scope to adapt and improve, this offers a rare combination of space, parking and extension potential.
3 bedroom semi-detached house for sale in Trevale Road, Rochester, ME1 3NZ, ME1 — £320,000 • 3 bed • 1 bath • 775 ft²
3 bedroom semi-detached house for sale in Berkeley Close, Rochester, ME1 — £350,000 • 3 bed • 1 bath • 1064 ft²
3 bedroom end of terrace house for sale in Warren Wood Road, Rochester, ME1 — £375,000 • 3 bed • 2 bath • 1120 ft²
3 bedroom semi-detached house for sale in Berkeley Close, Rochester, Kent, ME1 — £375,000 • 3 bed • 1 bath • 996 ft²
3 bedroom semi-detached house for sale in Morland Drive, Rochester, ME2 — £470,000 • 3 bed • 2 bath • 998 ft²
3 bedroom detached house for sale in Wemmick Close, Rochester, ME1 2DL, ME1 — £375,000 • 3 bed • 1 bath • 1021 ft²


























































