Newly renovated three-bed detached, garage and garden, minutes from the beach.
Stone's throw from Gorleston beach
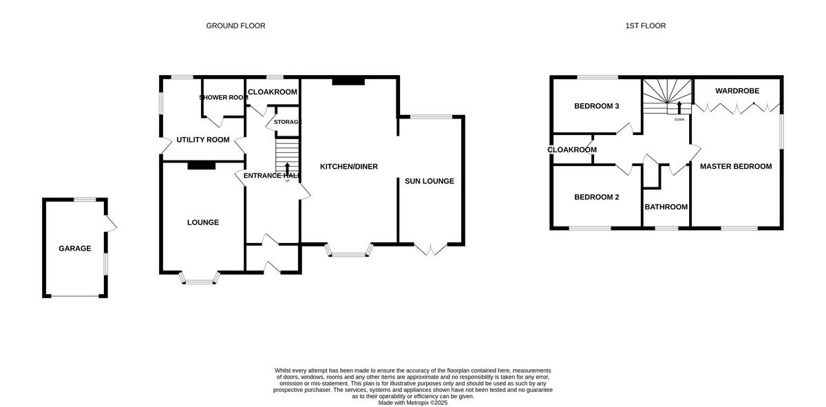
A three-bedroom detached home a short walk from Gorleston beach, newly renovated for modern family living. The house offers bright, well-proportioned rooms across approximately 1,174 sq ft, including a cosy bay-front lounge, open-plan kitchen/dining room and a sunroom that opens to the rear garden — ideal for family days and seaside visitors.
Practical features include a utility room, ground-floor shower and WC, a separate first-floor bathroom and WC, built-in wardrobes to the master bedroom, a fully boarded loft with ladder and gated driveway parking plus garage. The property benefits from gas central heating, UPVC double glazing and CCTV, so it’s effectively move-in ready for a buyer wanting low immediate maintenance.
Location is a major draw: central Gorleston position close to shops, cafés and a range of primary and secondary schools, and literally a stone’s throw from the beach and promenade. Broadband and mobile signal are strong, supporting home working and leisure streaming.
Buyers should be aware of local challenges: the wider area records above-average crime and relative deprivation, which may concern some purchasers. The house, built in the 1950s/60s and recently updated, presents little urgent work but buyers seeking a very quiet, low-crime neighbourhood may wish to study local crime data before viewing. Freehold tenure and affordable council tax add practical appeal for families and first-time buyers.
3 bedroom detached house for sale in Beach Road, Gorleston, NR31 — £370,000 • 3 bed • 2 bath • 1455 ft²
3 bedroom detached house for sale in Beach Road, Gorleston, NR31 — £370,000 • 3 bed • 1 bath • 1174 ft²
3 bedroom semi-detached house for sale in Beach Road, Gorleston, NR31 — £240,000 • 3 bed • 2 bath • 937 ft²
3 bedroom semi-detached house for sale in Bridge Road, Gorleston, Great Yarmouth, NR31 — £390,000 • 3 bed • 1 bath • 1808 ft²
3 bedroom semi-detached house for sale in Victoria Road, Gorleston, NR31 — £485,000 • 3 bed • 2 bath • 1355 ft²
3 bedroom end of terrace house for sale in Avondale Road, Gorleston, NR31 — £210,000 • 3 bed • 1 bath • 1303 ft²










































































































































