### Standout Features:
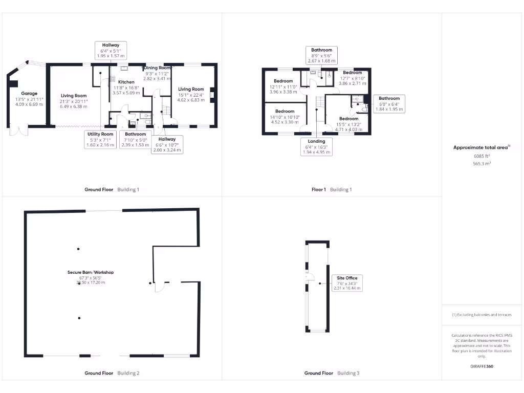
- **Spacious Detached Home**: 2,280 sq ft, 4 double bedrooms, 3 bathrooms
- **Established Business Opportunity**: Caravan storage for up to 300 units, currently generating approximately £80,000 annually
- **Idyllic Rural Setting**: Picturesque Yorkshire Wolds, near sought-after villages
- **Ample Outdoor Space**: Huge garden, outdoor entertaining kitchen with pizza oven, and areas to expand
- **Modern Amenities**: Full double glazing, LPG central heating, excellent mobile signal
- **Chain-Free Purchase**: Immediate availability for new owners
### Summary:
Presenting a rare opportunity to own a gorgeous 4-bedroom family home with an integrated caravan storage business, nestled in the serene Yorkshire Wolds. With a generous size of 2,280 square feet, this contemporary detached residence combines comfort and functionality, featuring spacious living areas with large windows that flood the interiors with natural light. The expansive grounds offer wonderful landscaping options and include an inviting outdoor kitchen designed for entertaining.
Moreover, the property comes with an established caravan storage business, already generating a healthy income, which could appeal to investors or those looking to augment their lifestyle. The grounds encompass over 10 acres, with a well-maintained storage area, offering future potential for expansion or diversification.
While the broadband speeds are noted as slow, the home's excellent mobile connectivity allows for seamless communication away from the hustle and bustle. Located near charming villages, this property ensures a secure, peaceful lifestyle with the prospect of solid returns. Given its unique combination of residential comfort and business opportunity, an early viewing is highly recommended to appreciate the full potential of this remarkable offering.
4 bedroom detached house for sale in Cliffe Road, North Newbald, YO43 4SR, YO43 — £1,495,000 • 4 bed • 3 bath • 2280 ft²
5 bedroom house for sale in The Moorings, Holme-On-Spalding-Moor, YO43 — £775,000 • 5 bed • 4 bath • 2510 ft²
Farm land for sale in Holme Road, Spaldington, Goole, East Riding of Yorkshi, DN14 — £950,000 • 1 bed • 1 bath • 1561 ft²
6 bedroom link detached house for sale in Main Street, Beeford, YO25 8AY, YO25 — £825,000 • 6 bed • 3 bath • 3708 ft²
4 bedroom detached house for sale in Nafferton Road, Wansford, YO25 — £599,995 • 4 bed • 2 bath • 2083 ft²
4 bedroom detached house for sale in Everingham, York, YO42 — £1,650,000 • 4 bed • 2 bath • 2500 ft²


























































































































