Low-entry auction lot for refurbishment and rental potential.
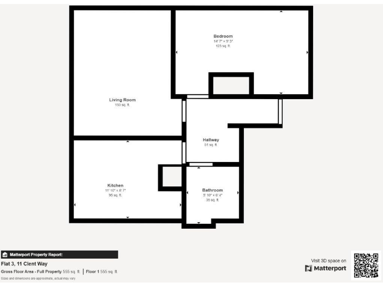
- Ground-floor one-bedroom flat, 555 sq ft
- Vacant possession; sold at auction, 10 Dec 2025
- New 999-year lease to be granted on sale
- Requires bathroom renovation and cosmetic updating
- Heating via electric storage heaters; EPC rating E
- Located in very deprived area; above-average crime
- Communal gardens; purpose-built 1960s block
- 46,000 guide price; buyer admin fees and legal pack important
A ground-floor one-bedroom flat offered with vacant possession and a new 999-year lease, sold at public auction. The property sits in a 1960s purpose-built block with communal gardens and practical, low-maintenance exterior. At 555 sq ft, the layout is traditional and straightforward: hall, reception room, kitchen, bedroom and bathroom.
The flat is priced to reflect its condition and the local market. Heating is by electric storage heaters and glazing is double, but the bathroom is dated and requires renovation. EPC rating E and cavity walls with assumed no insulation mean energy improvements could reduce running costs and raise value.
This lot suits investors seeking a low-entry purchase for refurbishment and rental, or buyers able to carry out modest works. Note the area is classified as very deprived with above-average crime — factor this into letting strategy and valuation. The sale is by auction on 10 December 2025; buyers must review the legal pack and expect administration fees and unconditional exchange on the fall of the hammer.
2 bedroom apartment for sale in Flat 7 West Point, Hermitage Road, Edgbaston, Birmingham, B15 3US, B15 — £10,000 • 2 bed • 1 bath
3 bedroom apartment for sale in Flat 36 West Point, Hermitage Road, Edgbaston, Birmingham, B15 3US, B15 — £10,000 • 3 bed • 1 bath
1 bedroom flat for sale in Flat 33 Kendal Tower, Malins Road, Birmingham, B17 0JY, B17 — £10,000 • 1 bed • 1 bath • 607 ft²
2 bedroom apartment for sale in Flat 11 Endwood Court, Handsworth Wood Road, Handsworth, Birmingham, B20 2RZ, B20 — £53,000 • 2 bed • 1 bath
3 bedroom apartment for sale in 27 Bucknall Crescent, Birmingham, B32 — £80,000 • 3 bed • 1 bath • 807 ft²
3 bedroom semi-detached house for sale in 27 Woolacombe Lodge Road, Selly Oak, Birmingham, B29 6PZ, B29 — £18,000 • 3 bed • 1 bath • 841 ft²


































