Spacious family home with vaulted kitchen and garage in a suburban setting.
Detached four-bedroom house on a large elevated plot
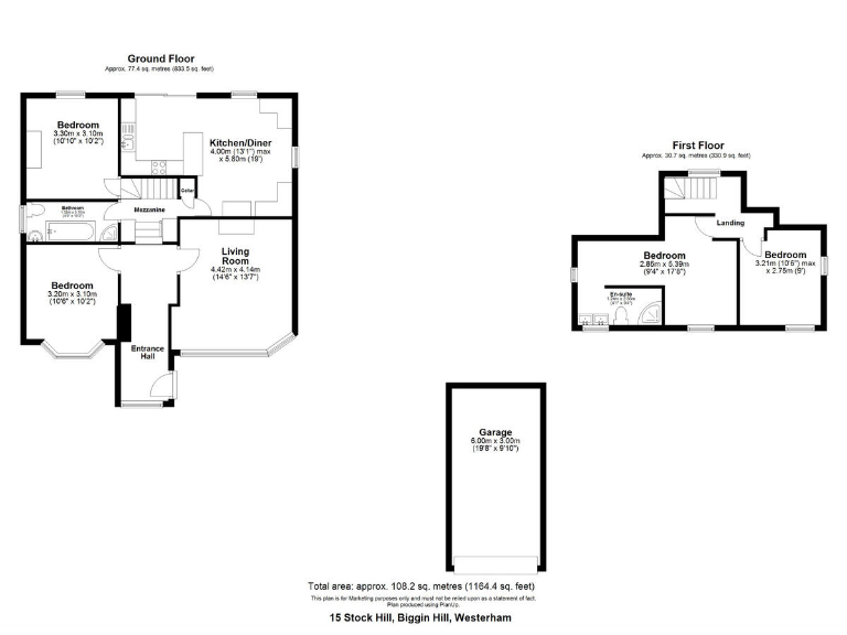
This elevated Tudor‑Revival detached house sits on a large plot in suburban Biggin Hill, offering a rare combination of period character and contemporary living. The vaulted kitchen/diner with exposed beams and high ceilings is a striking centrepiece, ideal for family cooking and entertaining. The main bedroom includes a dressing area and ensuite for extra convenience.
Practical features include a garage, wine cellar and two bathrooms, plus double glazing and gas central heating via boiler and radiators. The property is chain free, set in an affluent area with fast broadband and excellent mobile signal, and lies within reach of several well-rated primary and secondary schools.
There are some clear upkeep considerations: the front and rear landscaping needs attention to restore curb appeal, the install date of the glazing is unknown, and the timber‑frame construction details are assumed insulated but not documented. Council tax is described as expensive, which will affect ongoing running costs.
This house will suit a family looking for a distinctive home with scope to personalise outdoor space and update cosmetic elements. Its size and layout provide practical living now, with further value potential for buyers willing to invest in landscaping and targeted improvements.
4 bedroom detached house for sale in Main Road, Biggin Hill, Westerham, TN16 — £649,500 • 4 bed • 1 bath • 1694 ft²
4 bedroom house for sale in Grand View Avenue, Biggin Hill, Westerham, TN16 — £600,000 • 4 bed • 2 bath • 1063 ft²
4 bedroom detached house for sale in Main Road, Biggin Hill, Westerham, TN16 — £595,000 • 4 bed • 1 bath • 1186 ft²
4 bedroom detached house for sale in Sunningvale Avenue, Biggin Hill, Westerham, TN16 — £600,000 • 4 bed • 2 bath • 1768 ft²
4 bedroom semi-detached house for sale in Forgefield, Biggin Hill, Westerham, TN16 — £575,000 • 4 bed • 2 bath • 1635 ft²
5 bedroom detached house for sale in Hillcrest Road, Biggin Hill, TN16 — £575,000 • 5 bed • 2 bath • 1968 ft²


























































































