**Standout Features:**
- Prime location overlooking Woolacombe beach with stunning sea views.
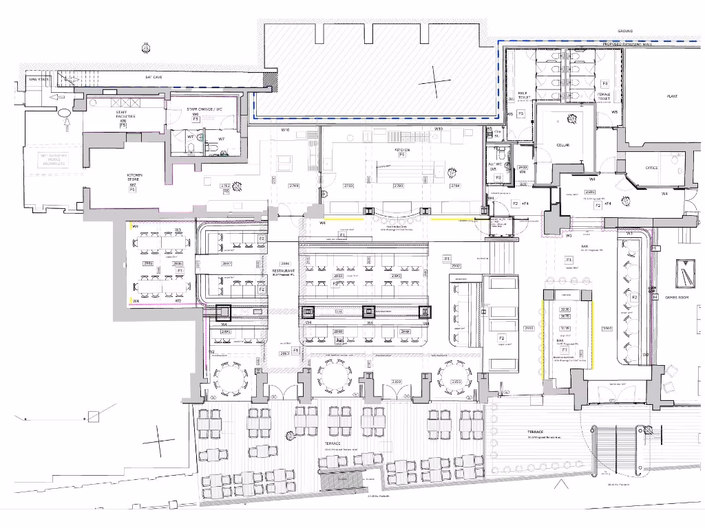
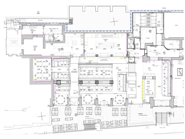
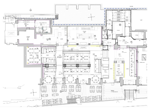
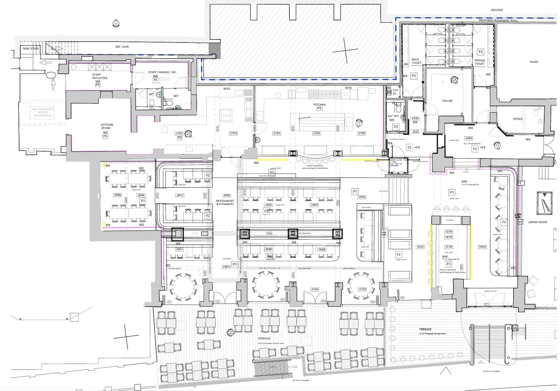
- Extensive property spanning approximately 6,366 sq.ft (592 sq.m).
- Configured as a bar and main restaurant with a large terrace suitable for outdoor dining.
- Capacity for 180 indoor covers and 90 outdoor covers.
- Equipped with a commercial kitchen and modern facilities, including air conditioning.
- Potential for splitting into 2 to 3 separate venues, subject to consents.
- Long leasehold with approximately 245 years remaining.
**Summary Description:**
Discover an extraordinary commercial opportunity in the heart of Woolacombe Village, where this expansive restaurant and bar space takes center stage with sweeping views of the beach and sea. Spanning over 6,366 sq.ft, the versatile layout currently accommodates up to 180 indoor diners and 90 on a spacious outdoor terrace, perfect for alfresco dining in a sought-after tourist destination.
Although currently non-operational, this venue has a solid history, boasting turnover figures of up to £773,000, making it ideal for ambitious investors or restaurateurs ready to tap into Woolacombe's thriving holiday trade. The property is fully equipped with a modern commercial kitchen and significant infrastructure already in place. Its prominent position on a primary road assures high visibility and foot traffic. With future flexibility to repurpose and possibly split into multiple venues, this property presents a rare investment opportunity not to be overlooked.
Act quickly, as opportunities like this are rare in such a desirable location! Explore the potential today and picture your business thriving in this picturesque coastal setting.
Shop for sale in Barton Road, Woolacombe, Devon, EX34 — £329,950 • 1 bed • 1 bath • 568 ft²
4 bedroom end of terrace house for sale in Fore Street, Ilfracombe, EX34 — £395,000 • 4 bed • 3 bath • 631 ft²
2 bedroom apartment for sale in Beach Road, Woolacombe, Devon, EX34 — £695,000 • 2 bed • 2 bath • 797 ft²
Restaurant for sale in Fore Street, Ilfracombe, EX34 — £395,000 • 4 bed • 3 bath • 1793 ft²
1 bedroom apartment for sale in Southover Apartments, Springfield Road, Woolacombe, EX34 — £310,000 • 1 bed • 1 bath • 563 ft²
2 bedroom apartment for sale in Bay View Road, Woolacombe, EX34 — £450,000 • 2 bed • 2 bath • 776 ft²


















































