Compact single-storey living with panoramic field views.
One double bedroom with built-in wardrobes
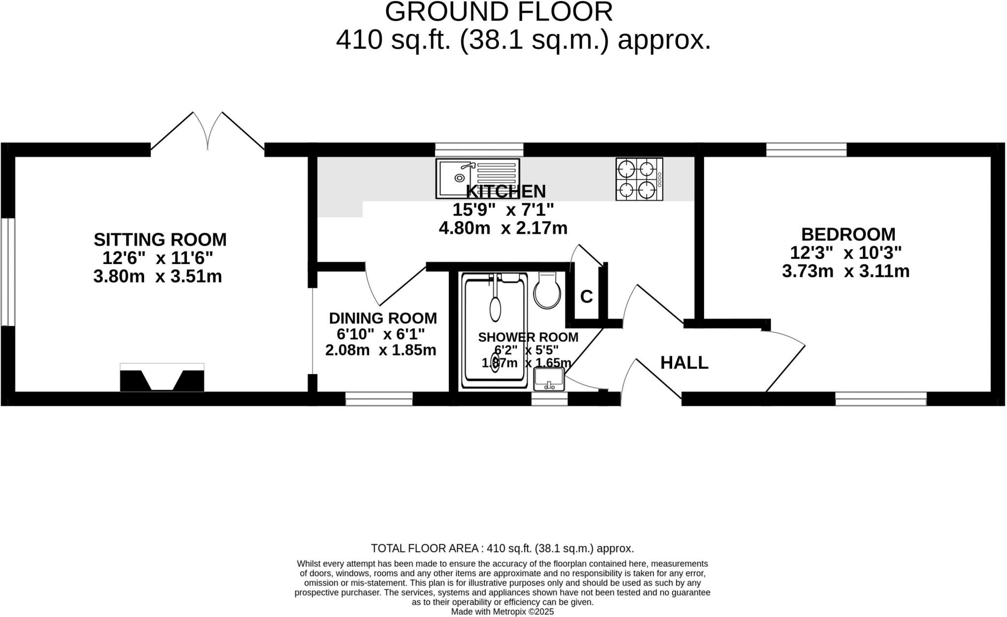
Set on the edge of Newton Park Homes, this newly renovated one-bedroom park home offers compact, low-maintenance living with uninterrupted countryside views. The interior is light and airy with a modern kitchen, integrated appliances and a recently fitted wall-mounted boiler (2023). A generous driveway provides off-street parking, while French doors open from the sitting room to a modest landscaped garden with patio and raised beds.
Ideal for single occupants or couples seeking a peaceful, rural base, the layout is single-storey and straightforward: hall, open dining/kitchen, sitting room, bedroom with fitted wardrobes and a contemporary shower room. At about 410 sq ft the home is compact — comfortable but limited in footprint and storage compared with a conventional house.
Practical costs and tenure are important here: the home is leasehold with pitch fees of £160.88 pcm and an average service charge of £1,929 per year. Council Tax falls in Band A. Broadband speeds are reported slow, though mobile signal is excellent. There is no flooding risk and the surrounding area is affluent with low crime.
This is a sensible, low-upkeep option for those prioritising countryside views, ease of living and single-storey convenience. Buyers should be comfortable with park-home living, leasehold arrangements and the smaller internal and external scale.
1 bedroom detached house for sale in Newton Park Homes, Newton St Faith, Norwich, NR10 — £80,000 • 1 bed • 1 bath • 355 ft²
2 bedroom park home for sale in Newton Park Homes, Newton St. Faith, NR10 — £70,000 • 2 bed • 1 bath • 482 ft²
1 bedroom detached house for sale in Newton Park Homes, Norwich, NR10 — £50,000 • 1 bed • 1 bath • 326 ft²
2 bedroom park home for sale in Newton Park Homes, Newton St Faith, Norwich, NR10 — £120,000 • 2 bed • 2 bath • 692 ft²
2 bedroom park home for sale in Merry Hill Country Park, Telegraph Hill, Norwich, NR9 — £167,499 • 2 bed • 2 bath • 854 ft²
2 bedroom park home for sale in Norwich, Norfolk, NR10 — £269,000 • 2 bed • 2 bath • 1000 ft²






































































