Characterful four-bed terrace with garden studio, chain-free in central Cambridge.
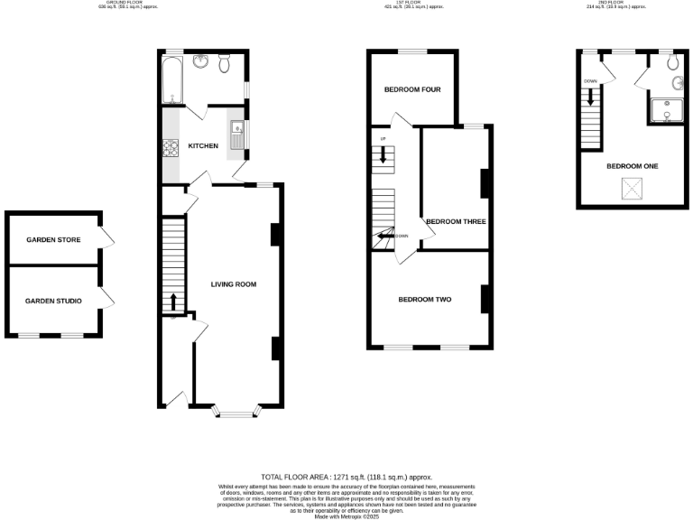
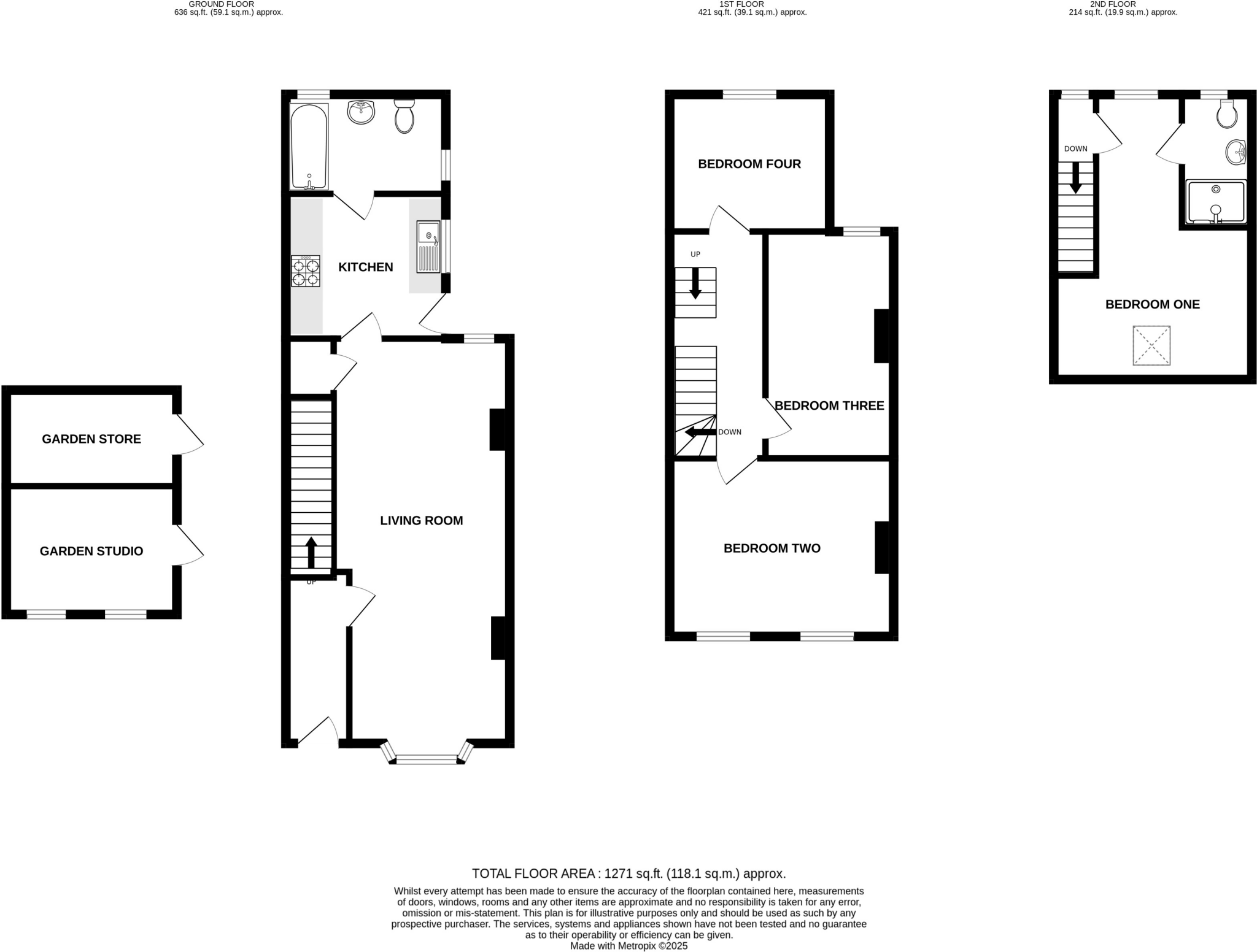
- Four bedrooms and two bathrooms across three floors
- Character features: high ceilings, bay window, ornate fireplace
- West-facing rear garden plus small enclosed front garden
- Separate garden studio with electric eco heating and power
- Offered freehold and chain-free for quick possession
- EPC band D; solid brick walls assumed uninsulated
- Small plot size with limited outdoor space
- Local area records above-average crime statistics
This Victorian bay-fronted mid-terrace combines period character with practical family living across three floors. Four well-proportioned bedrooms and two bathrooms give flexible space for children, guests or a home office, while the principal reception rooms retain original features such as high ceilings and an ornate fireplace.
Outside, a west-facing rear garden and a compact garden studio with electric eco heating extend usable space and suit casual outdoor use or a dedicated workspace. The property is offered freehold and chain-free, in a convenient city location close to Mill Road amenities, the railway station, Addenbrooke’s and the science park — useful for commuting professionals and families alike.
Buyers should note a few material points: the EPC is band D and the solid brick walls are assumed to have no insulation, so there may be scope (and cost) for improving energy efficiency. The plot is small and the area records above-average crime, which some purchasers may wish to consider. Overall the house presents a characterful, well-located home with scope to update energy performance and tailor interiors to modern tastes.
3 bedroom terraced house for sale in Brookfields, Cambridge, CB1 — £625,000 • 3 bed • 2 bath • 1276 ft²
3 bedroom terraced house for sale in Victoria Park, Cambridge, CB4 — £900,000 • 3 bed • 2 bath • 1342 ft²
3 bedroom terraced house for sale in Vinery Road, Cambridge, CB1 — £475,000 • 3 bed • 1 bath • 958 ft²
3 bedroom terraced house for sale in Marlowe Road, Cambridge, CB3 — £1,100,000 • 3 bed • 2 bath • 1220 ft²
2 bedroom terraced house for sale in Cyprus Road, Cambridge, CB1 — £525,000 • 2 bed • 1 bath • 956 ft²
4 bedroom semi-detached house for sale in Perne Road, Cambridge, CB1 — £750,000 • 4 bed • 3 bath • 1578 ft²


















































































