Newly renovated detached bungalow with garden, garage and excellent local schools..
Newly renovated throughout with modern kitchen and re-fitted shower room
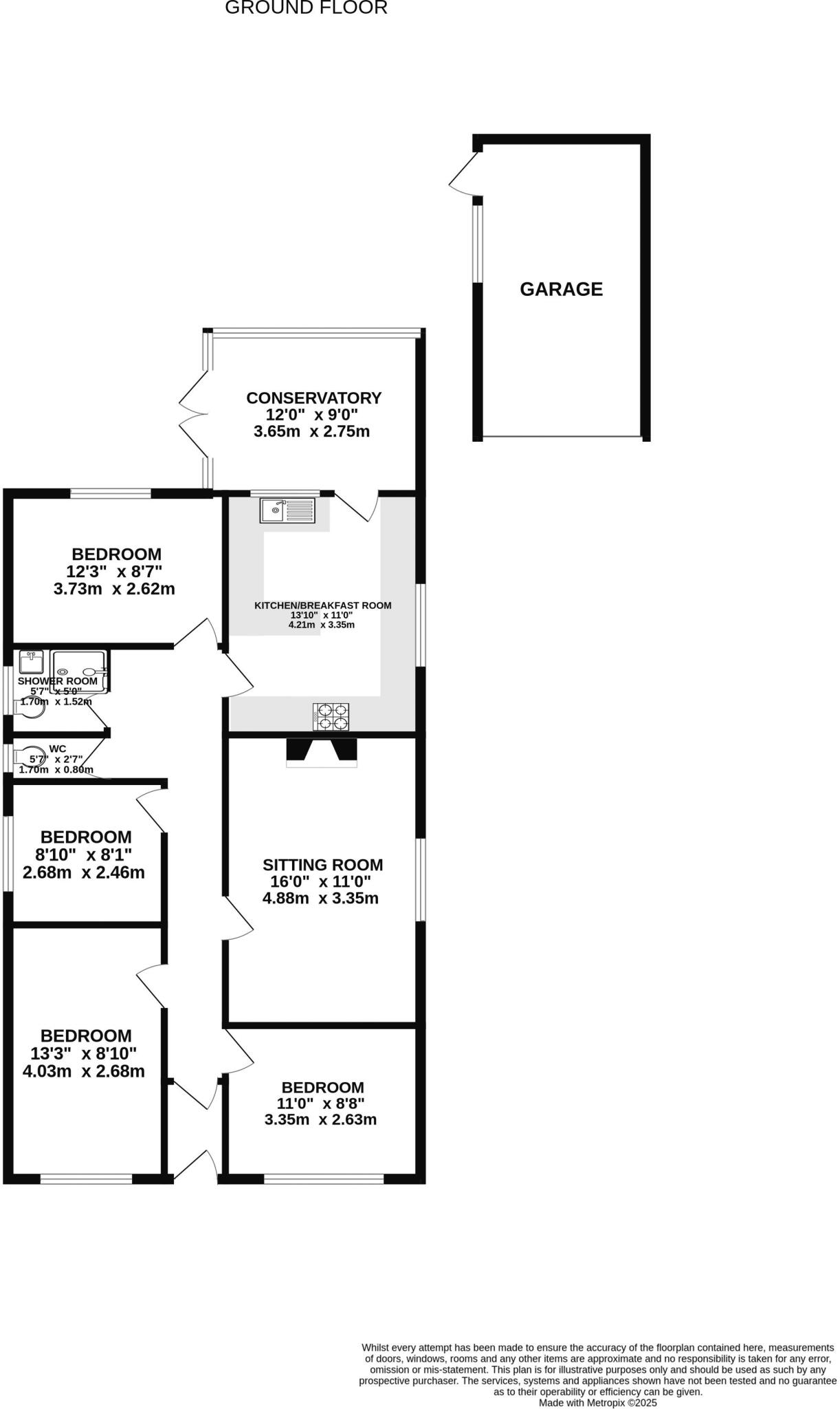
Four well-proportioned bedrooms—flexible family accommodation
Compact overall size (869 sq ft) for a four-bedroom home
West-facing private garden with shingled seating area
Generous driveway parking plus single garage and side access
Only one full bathroom; separate WC but limited bathroom capacity
EPC Rating C; mains gas heating, double glazing
Freehold in very low-crime, affluent Taverham location
This modernised detached bungalow in the heart of Taverham offers true single-level family living with versatile accommodation. The bright sitting room with a wood burner and adjoining conservatory creates a comfortable social hub, while the contemporary kitchen/breakfast room suits everyday family life.
Four well-proportioned bedrooms provide flexibility for children, guests or a home office, but note the property’s compact footprint—869 sq ft—so rooms feel efficient rather than expansive. The re-fitted shower room plus a separate WC provide practical hygiene arrangements, though there is only one full bathroom which may be limiting for larger households.
Outside, a west-facing private garden, shingled seating area and sizeable driveway with single garage deliver good outdoor and parking space. The home is newly renovated, benefits from gas central heating, double glazing and an EPC rating of C, and sits in a very low-crime, affluent neighbourhood with fast broadband—appealing for families and professionals.
Overall this bungalow is ready to move into, offering a convenient, low-maintenance base in a sought-after area close to good schools and local amenities. Buyers seeking more internal space should be aware of the bungalow’s relatively small overall size for four bedrooms.
4 bedroom detached bungalow for sale in St. Edmunds Rise, Taverham, Norwich, NR8 — £425,000 • 4 bed • 1 bath • 1492 ft²
4 bedroom detached bungalow for sale in Breck Farm Close, Taverham, NR8 — £450,000 • 4 bed • 2 bath • 1460 ft²
4 bedroom detached bungalow for sale in Beech Avenue, Taverham, Norwich, NR8 — £450,000 • 4 bed • 2 bath • 1424 ft²
3 bedroom detached bungalow for sale in Walsingham Drive, Taverham, NR8 — £325,000 • 3 bed • 1 bath • 749 ft²
2 bedroom semi-detached bungalow for sale in Lloyd Road, Taverham, Norwich, NR8 — £300,000 • 2 bed • 1 bath • 689 ft²
5 bedroom detached bungalow for sale in St. Walstans Road, Taverham, NR8 — £375,000 • 5 bed • 2 bath • 1909 ft²














































