Well-located two-bedroom maisonette with parking, garden and no onward chain — ideal first purchase..
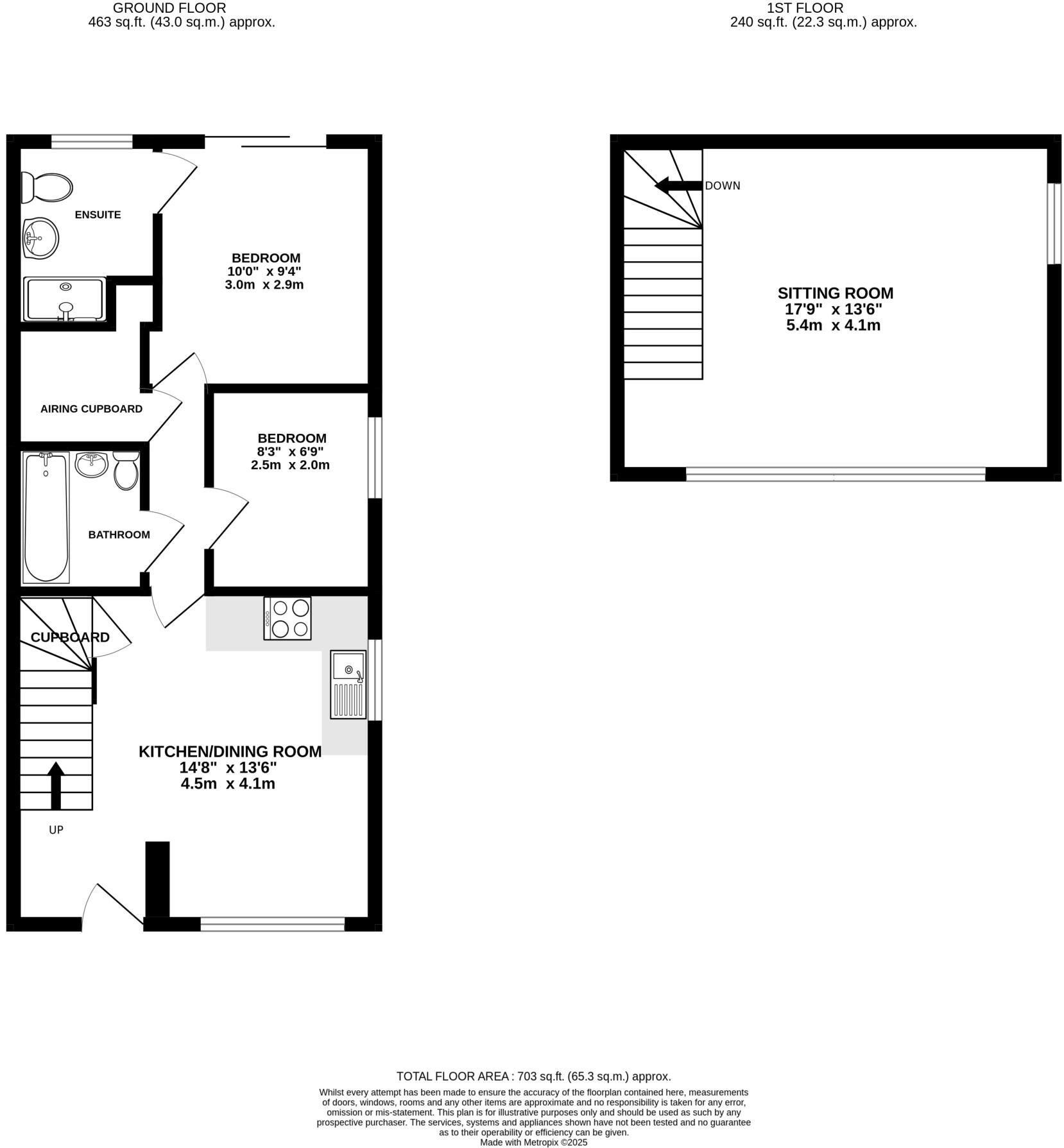
Two bedrooms with en suite to principal bedroom
Kitchen/diner layout ideal for everyday living
Allocated off-street parking space included
Communal garden for outdoor space
Built post-2007 with double glazing and insulated walls
Electric room heaters — simpler but potentially higher running costs
Leasehold tenure; offered with no onward chain
Area records higher crime levels; consider security measures
Tucked within a modern residential block on Rotary Way, this two-bedroom maisonette offers practical, low-maintenance living with immediate convenience. The duplex layout includes a kitchen/diner, an en suite to the principal bedroom and a communal garden, plus allocated off-street parking — useful for first-time buyers needing straightforward access and storage.
The property is leasehold and offered with no onward chain, helping speed up a purchase. Built after 2007 with double glazing and cavity walls, the home benefits from modern construction standards; heating is by electric room heaters, which keeps installation simple but may mean higher running costs compared with gas central heating.
Location is a major selling point: easy access to the A12, close to Colchester General Hospital and within walking distance of the town centre and railway station. The neighbourhood mixes professionals and students and provides a wide range of amenities, schooling options and leisure facilities nearby. Note the area records higher-than-average crime levels — buyers should consider security measures.
Overall this is a practical, well-located first home or buy-to-let prospect for buyers comfortable with electric heating, leasehold ownership and a property that is ready to move into without major renovation.
2 bedroom maisonette for sale in Hunter Corner, Colchester, CO3 — £180,000 • 2 bed • 1 bath • 548 ft²
2 bedroom ground floor maisonette for sale in Westwood, Inglis Road, CO3 — £219,500 • 2 bed • 1 bath • 700 ft²
2 bedroom maisonette for sale in Waterside Lane, Colchester, CO2 — £180,000 • 2 bed • 2 bath • 636 ft²
2 bedroom maisonette for sale in Waterside Lane, Colchester, CO2 — £200,000 • 2 bed • 2 bath
2 bedroom maisonette for sale in Grantham Court, Colchester, CO1 — £190,000 • 2 bed • 1 bath • 596 ft²
2 bedroom apartment for sale in Fowler Road, Colchester, CO2 — £150,000 • 2 bed • 1 bath • 490 ft²














































