**Standout Features:**
- Charming nineteenth-century end-terrace cottage
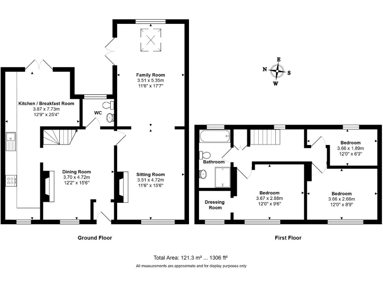
- 3 spacious bedrooms with a walk-in dressing room
- Characterful features including exposed brick and log-burning stoves
- Generous 1306 sq ft living space
- Delightful large garden with orchard and raised decked seating area
- Modern kitchen/breakfast room with bespoke cabinetry and flagstone tiles
- Oil central heating and recent electrical safety certificate
- Located in the peaceful village of Easterton, with good local amenities
**Potential Concerns:**
- Double glazing needs clarification on installation age
- Lack of insulation in solid brick walls
- Broadband speeds are very slow
Embrace the tranquil charm of this end-terrace cottage in the idyllic village of Easterton, offering 1306 sq ft of historical character amidst modern comforts. This home features three spacious bedrooms, including a luxurious walk-in dressing room, and two inviting sitting areas warmed by log-burning stoves. The heart of the home, a beautifully designed kitchen/breakfast room, invites culinary creativity and family gatherings alike. Step outside to your large garden, complete with an orchard and serene spaces for outdoor relaxation, where you can enjoy sweeping village views from the raised decked area.
With reputable local schools and essential amenities just moments away, this property is ideal for families or anyone seeking a serene rural lifestyle without straying too far from community conveniences. Although some aspects, such as double glazing installation and wall insulation, may require attention, the recent electrical safety certificate ensures peace of mind. As opportunities like this are rare in such a desirable setting, don't miss your chance to make this characterful cottage your new home!
3 bedroom end of terrace house for sale in High Street, Heytesbury, BA12 — £375,000 • 3 bed • 1 bath • 934 ft²
3 bedroom cottage for sale in The Pound, Haxton, Salisbury, SP4 — £350,000 • 3 bed • 2 bath • 1245 ft²
2 bedroom semi-detached house for sale in Enford, Pewsey, Wiltshire, SN9 — £350,000 • 2 bed • 1 bath • 715 ft²
3 bedroom cottage for sale in High Street, Heytesbury, Warminster, BA12 — £340,000 • 3 bed • 1 bath • 987 ft²
2 bedroom semi-detached house for sale in Oak Lane, Easterton Devizes, Wiltshire, SN10 — £235,000 • 2 bed • 1 bath • 650 ft²
2 bedroom detached house for sale in Sandy Lane, Chippenham, SN15 — £525,000 • 2 bed • 1 bath • 1385 ft²






































































































