Bright family home with countryside views and substantial outdoor space..
- Extended three-bedroom semi with large living/dining room
- Modern fitted kitchen with integrated appliances
- Private rear garden backing onto open fields
- Oil-fired boiler and radiator central heating (no gas)
- PVC double glazing throughout; mid-20th-century construction
- Compact overall size (~746 sq ft); best for small families
- Above-average local crime rate; village amenities limited
- Ultrafast broadband available (up to 1000 Mbps)
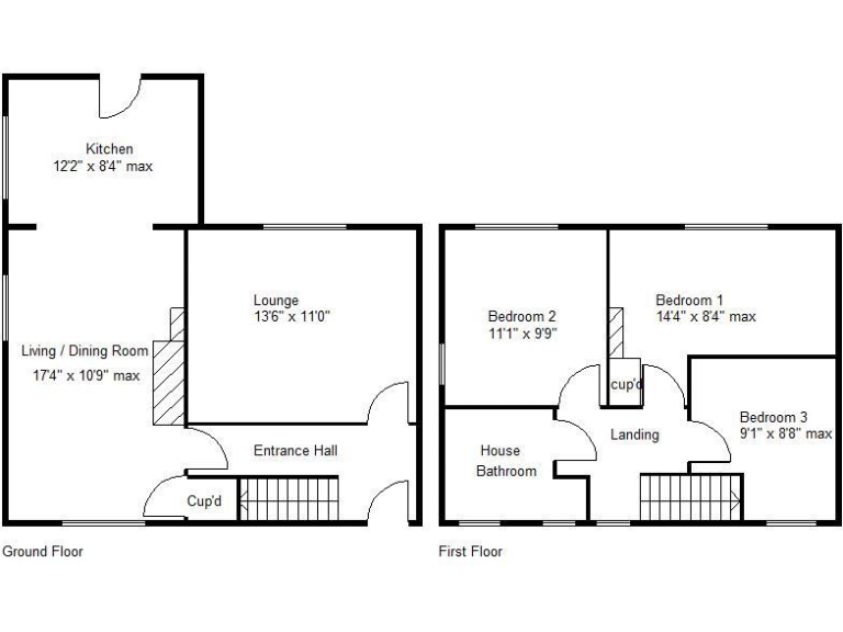
This extended three-bedroom semi sits on a generous corner plot in High Melton, backing onto open fields to the rear. The ground floor offers two reception rooms plus a large dining/living space that flows into a modern fitted kitchen with integrated appliances — a practical layout for family life and entertaining.
Upstairs are three well-proportioned bedrooms and a contemporary bathroom with a shower. The property is presented with neutral decoration and PVC double glazing throughout, making it easy to move into while allowing scope to personalise over time. Broadband speeds are excellent, supporting home working and streaming.
Practical considerations include an oil-fired boiler and radiator central heating system (no village gas), and the house dates from the mid-20th century with filled cavity walls. The plot and gardens are a strong asset, but note the local area records above-average crime and the overall property is compact at about 746 sq ft — suitable for a small family seeking village life rather than a large household.
For buyers prioritising outdoor space, a quiet outlook and modern interiors in a village setting, this home represents straightforward family living with potential to improve energy arrangements over time. Council tax sits at a low band A, which will appeal to cost-conscious purchasers.
3 bedroom semi-detached house for sale in Melton Mill Lane, High Melton, Doncaster, DN5 — £270,000 • 3 bed • 1 bath • 786 ft²
3 bedroom semi-detached house for sale in Melton Mill Lane, High Melton, Doncaster, DN5 — £180,000 • 3 bed • 1 bath • 733 ft²
3 bedroom detached house for sale in Mill Lane, Harlington, Doncaster, DN5 — £300,000 • 3 bed • 1 bath • 804 ft²
3 bedroom semi-detached house for sale in March Vale Rise, Conisbrough, DN12 — £265,000 • 3 bed • 1 bath • 1066 ft²
3 bedroom semi-detached house for sale in Wivelsfield Road, Balby, Doncaster, DN4 — £155,000 • 3 bed • 1 bath • 662 ft²
3 bedroom detached house for sale in Sheffield Road, Conisbrough, Doncaster, DN12 — £169,995 • 3 bed • 1 bath • 973 ft²






















































