Chain-free studio near station and town centre, ideal for first-time buyers.
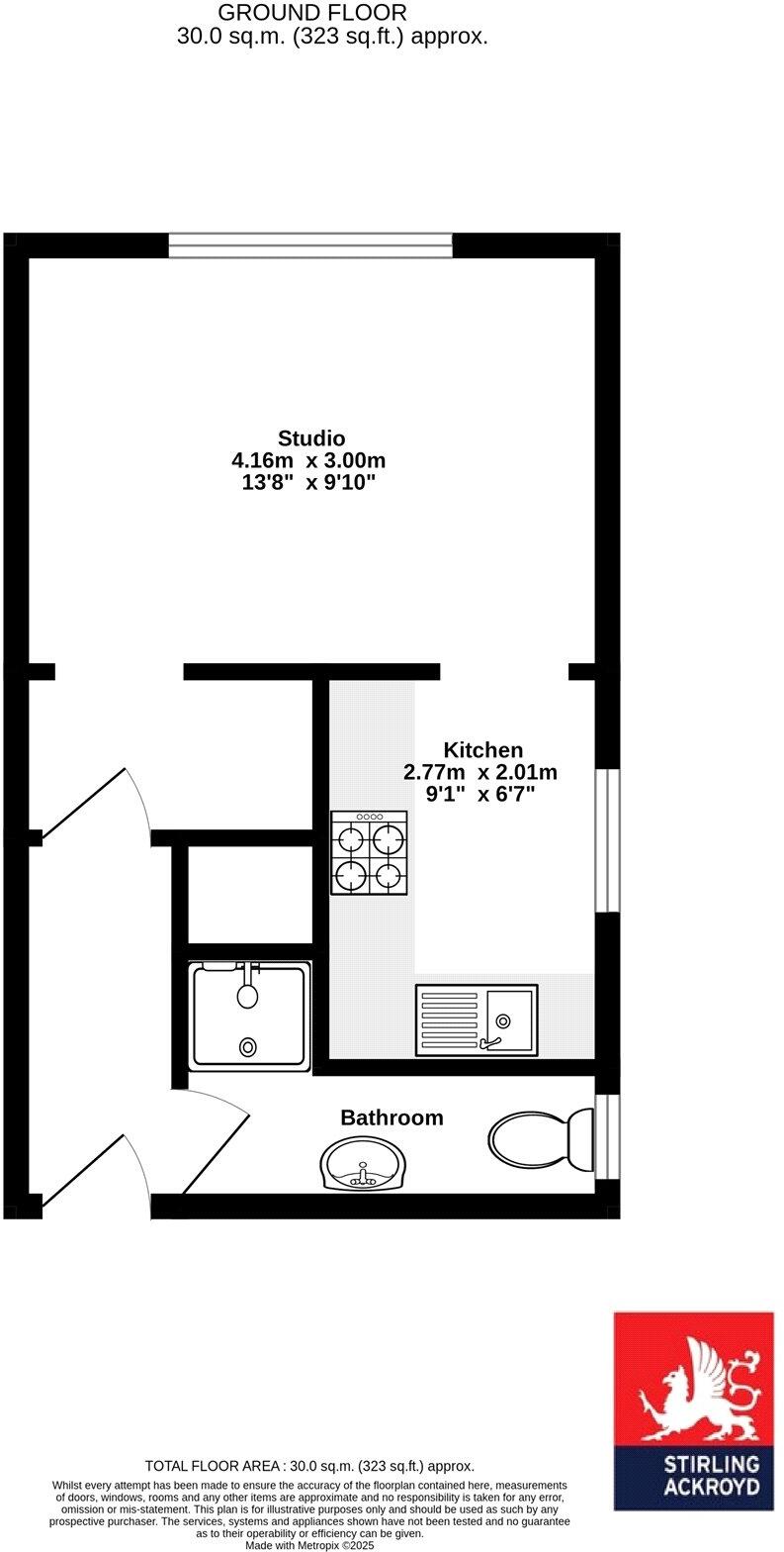
Ground-floor studio apartment, approximately 323 sq ft
This ground-floor studio in Buckingham Court offers a compact, well-located entry into Staines-upon-Thames living. Positioned moments from Staines Mainline Station and the town centre, the apartment suits a first-time buyer seeking excellent transport links and local amenities.
The interior comprises a combined living/bedroom, a modern fitted kitchen and a shower room. The building benefits from mains gas central heating, double glazing, off-street residents’ parking and a share of the freehold, providing ownership stability uncommon at this price point.
Practical facts to note: the apartment is small (approximately 323 sq ft) and is currently let under contract until July 2025, so immediate vacant possession may not be available. Service charges average £1,497 per year and the lease has around 86 years remaining. These are important considerations for financing and future saleability.
For buyers wanting an occupied investment, the current tenancy produces a gross annual income of £12,000. Alternatively, the flat is chain-free and ready for occupation once the tenancy ends, offering a straightforward move-in option for a buyer prepared for studio living in a well-served urban location.
Studio flat for sale in Staines Upon Thames, Middlesex, TW19 — £115,000 • 1 bed • 1 bath • 361 ft²
Studio apartment for sale in Kingston Road, Staines-upon-Thames, TW18 — £189,950 • 1 bed • 1 bath • 352 ft²
Studio flat for sale in Vickers Court, Stanwell, TW19 — £129,950 • 1 bed • 1 bath • 343 ft²
1 bedroom apartment for sale in Moormede Crescent, Staines-upon-Thames, TW18 — £154,999 • 1 bed • 1 bath
Studio flat for sale in Albany Park, Colnbrook, Berkshire, SL3 — £145,000 • 1 bed • 1 bath • 302 ft²
1 bedroom apartment for sale in Charlecombe Court, Kingston Road, TW18 — £240,000 • 1 bed • 1 bath • 660 ft²






































