Spacious one-bedroom with sweeping coastal outlook and strong upgrade potential.
Uninterrupted sea and Palace Pier views from first-floor balcony
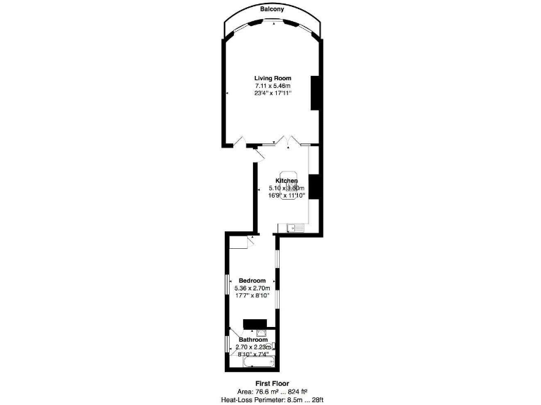
Set on the first floor of a Grade II listed Regency townhouse on Marine Parade, this generous one-bedroom apartment occupies the full floor and delivers uninterrupted sea views and a balcony overlooking the prom. The principal reception room has ballroom-like proportions, three full-height windows and original period details including marble fireplaces, deep skirtings and decorative cornicing. High ceilings and abundant natural light give a strong sense of space and presence.
Internally the layout works as a large social apartment: an expansive living room opening to a kitchen/breakfast area, a double bedroom with dual aspect windows and a newly tiled en suite bathroom. The apartment is presented in neutral tones and is immediately comfortable, yet it also offers clear potential to modernise and add value — subject to the constraints of the building’s listed status.
Practical features include share of freehold, a very long lease (c.998 years) and chain-free sale, fast broadband and excellent mobile reception. Notable considerations: the building is listed which can restrict alterations, there is no cavity wall insulation (solid brick), an above-average service charge of c.£5,000, and it sits in a higher-crime, deprived ward and cosmopolitan student neighbourhood. For buyers seeking a characterful seafront home or an investment in a prestigious location, the apartment combines exceptional outlook and generous proportions with some maintenance and regulatory factors to weigh up.
1 bedroom flat for sale in Collingwood House, 127 Marine Parade, Brighton, East Sussex, BN2 — £400,000 • 1 bed • 1 bath • 666 ft²
2 bedroom flat for sale in Percival Terrace, Brighton, East Sussex, BN2 — £435,000 • 2 bed • 1 bath • 525 ft²
1 bedroom flat for sale in Marine Parade, Brighton, East Sussex, BN2 — £275,000 • 1 bed • 1 bath • 548 ft²
2 bedroom flat for sale in Percival Terrace, Brighton, East Sussex, BN2 — £600,000 • 2 bed • 2 bath • 991 ft²
1 bedroom flat for sale in Devonshire Place, Brighton, East Sussex, BN2 — £250,000 • 1 bed • 1 bath • 481 ft²
2 bedroom apartment for sale in Marine Parade, Brighton, East Sussex, BN2 — £375,000 • 2 bed • 2 bath • 725 ft²










































































