Spacious family home with garage and garden near good schools.
Four bedrooms with built-in wardrobes throughout
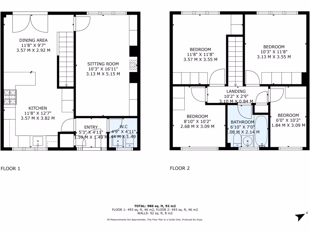
Set on the popular Horringer Court Estate, this four-bedroom detached home offers practical family living with clear strengths and modest compromises. The ground floor provides a welcoming sitting room with a woodburner and a kitchen/dining area arranged for everyday family use. Built-in wardrobes in every bedroom maximise storage and a garage plus driveway provide straightforward parking.
The property sits on a decent plot with an enclosed rear lawned garden – private and child-friendly. Mains gas central heating and fast broadband availability support comfortable modern living, and excellent mobile coverage is a practical advantage for working families. The locality is residential, very low in crime and well served by several good primary and secondary schools.
Note the overall internal size is compact at about 986 sq ft for a four-bedroom house, and there is a single family bathroom, which may be a consideration for larger households. The home is mid-20th century in style and described as well presented, but buyers seeking extensive contemporary remodelling or additional bathrooms should allow budget for alterations. Freehold tenure and no flood risk are additional positives.
4 bedroom detached house for sale in Lyminster Close, BURY ST. EDMUNDS, Suffolk, IP32 — £380,000 • 4 bed • 3 bath • 1063 ft²
3 bedroom end of terrace house for sale in Sherborne Road, Bury St. Edmunds, IP33 — £230,000 • 3 bed • 1 bath • 819 ft²
4 bedroom detached house for sale in Plummer Close, Ixworth, Bury St. Edmunds, IP31 — £450,000 • 4 bed • 2 bath • 1502 ft²
3 bedroom detached house for sale in The Oaks, Horringer , IP29 — £385,000 • 3 bed • 2 bath • 1356 ft²
4 bedroom detached house for sale in Plovers Way, Bury St Edmunds, IP33 — £475,000 • 4 bed • 2 bath • 1608 ft²
3 bedroom detached house for sale in Wigston Road, Bury St. Edmunds, IP33 — £375,000 • 3 bed • 1 bath • 1088 ft²










































































