Characterful three-bedroom home close to shops, transport and Saltaire amenities.
- Stone Victorian mid‑terrace with bay window and period features
- Three double bedrooms across multiple floors, large top-floor room
- Front and rear cottage gardens, private but small in size
- Useful cellar storage and high ceilings throughout
- Double glazing fitted post‑2002 and gas central heating
- Requires internal modernisation and likely insulation upgrades
- On‑street parking only; no garage or private driveway
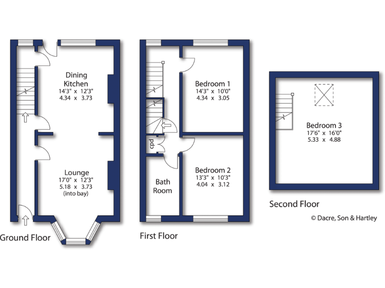
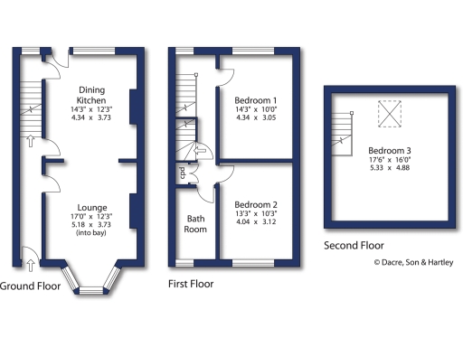
A stone‑built Victorian mid‑terrace offering three double bedrooms and generous ceiling heights across multiple levels. The house retains period features such as a front bay window, decorative cornices and a traditional fireplace, and benefits from double glazing (post‑2002) and gas central heating. Arranged over four floors with useful cellar storage, the layout gives flexible space for family living or conversion of the upper floor into a multifunctional bedroom or home office.
Set centrally in Shipley, the property is an easy walk to Saltaire, local shops, cafés and regular rail services into Leeds and Bradford — a strong commuter advantage. Small cottage gardens at the front and rear provide private outdoor space in this busy urban setting. Council Tax Band C and freehold tenure add practical appeal for owner‑occupiers.
The house is offered with clear potential but requires internal modernisation to realise its value. Original stone walls are likely uninsulated and some rooms would benefit from updating to contemporary standards. On‑street parking only and a relatively small plot should be considered if off‑road parking or large gardens are priorities.
Overall this period terrace will suit buyers seeking character and central convenience who are prepared to carry out cosmetic refurbishment or selective improvements to increase comfort and value. Viewing is recommended to assess the scope for rewiring, insulation upgrades and layout adjustments to suit modern family life.
3 bedroom terraced house for sale in Scarborough Road, Shipley, BD18 — £230,000 • 3 bed • 1 bath • 1225 ft²
3 bedroom terraced house for sale in Rhodes Street, Shipley, West Yorkshire, BD18 — £240,000 • 3 bed • 1 bath • 1238 ft²
3 bedroom terraced house for sale in Norwood Terrace, Shipley, BD18 — £190,000 • 3 bed • 1 bath • 1734 ft²
4 bedroom terraced house for sale in Birklands Road, Shipley, West Yorkshire, BD18 — £235,000 • 4 bed • 2 bath • 1875 ft²
3 bedroom terraced house for sale in Shaftesbury Avenue, SHIPLEY, BD18 — £150,000 • 3 bed • 1 bath • 625 ft²
4 bedroom terraced house for sale in Bradford Road, Shipley, BD18 — £250,000 • 4 bed • 1 bath • 1393 ft²














































































