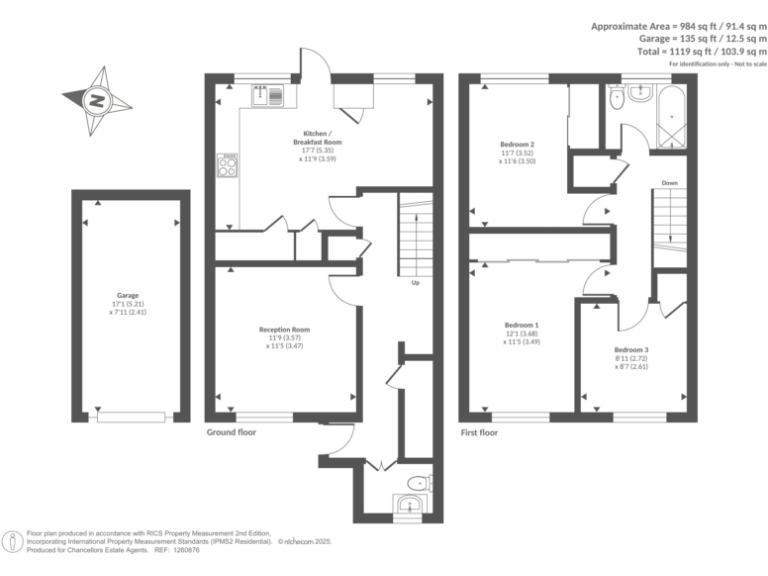
**Property Highlights:**
- Three well-proportioned bedrooms
- Open plan kitchen/dining space with modern finishes
- Downstairs cloakroom and family bathroom
- Detached garage and off-street parking
- Front and rear gardens
- Close proximity to local amenities and schools
- High-speed broadband connectivity
Discover the potential of this inviting three-bedroom end-of-terrace house in Newbury, Berkshire. With a sensible layout, it features an open-plan kitchen and dining area, a generous living room, and a convenient downstairs cloakroom. The upstairs offers three comfortable bedrooms and a family bathroom, making it ideal for families or first-time buyers.
The property boasts a detached garage at the rear, along with off-street parking options, providing valuable convenience in this urban area. The front and rear gardens offer outdoor space for relaxation and play. Located just a short walk from good-rated primary schools, and amenities, this home is perfect for those who enjoy a vibrant community.
While the home presents an excellent opportunity, it’s important to note that the local area experiences high crime rates and falls within a more deprived area classification. However, the advantages of fast broadband and easy access to transport links enhance its appeal for potential investors or families eager to settle into the bustling market town of Newbury. With a competitive price of £300,000, this family home retains ample renovation potential, making it a must-see for those seeking a comfortable and secure environment to grow. Don’t miss your chance to make this house your home!
3 bedroom end of terrace house for sale in Skyllings , Newbury, RG14 — £300,000 • 3 bed • 2 bath • 718 ft²
3 bedroom end of terrace house for sale in Fontwell Road, Newbury, RG14 — £375,000 • 3 bed • 1 bath • 1072 ft²
3 bedroom terraced house for sale in Epsom Crescent, Newbury, Berkshire, RG14 — £310,000 • 3 bed • 1 bath • 1089 ft²
3 bedroom terraced house for sale in Newbury, Berkshire, RG14 — £325,000 • 3 bed • 1 bath • 981 ft²
3 bedroom semi-detached house for sale in Newbury, Berkshire, RG14 — £375,000 • 3 bed • 1 bath • 1101 ft²
3 bedroom end of terrace house for sale in Two Rivers Way, Newbury, Berkshire, RG14 — £360,000 • 3 bed • 1 bath • 837 ft²


































































