Stylish two-bedroom home close to shops and the train station.
Riverside views to front and rear across the River Test
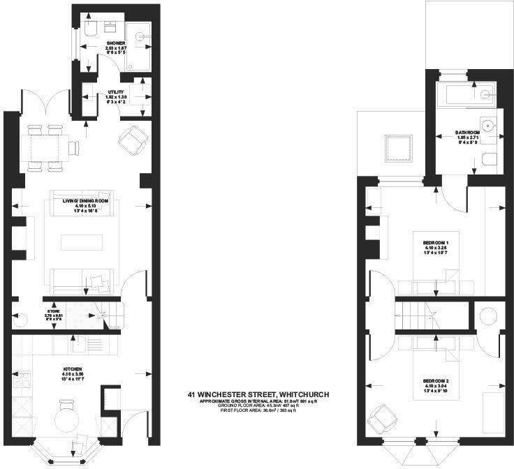
Light-filled two-bedroom Victorian terrace in central Whitchurch, arranged over two floors and finished to a high standard. The living/dining room and kitchen are larger than average for the type, and both front and rear windows enjoy peaceful views across the River Test. Two bathrooms and a separate utility add practical flexibility for everyday living and guests.
The house blends period character with modern fixtures throughout; parquet flooring and a fireplace sit alongside an updated kitchen and bathrooms. Positioned a short walk from local shops, cafés and Whitchurch train station, it offers an attractive commute to London and easy access to well-regarded primary and secondary schools.
Notable practical points: the property has secondary glazing and cavity walls that appear to lack insulation, which could affect running costs and may warrant upgrading. The plot is small and garden space is limited. The house sits in a medium flood-risk area, so prospective buyers should factor in flood resilience and insurance considerations.
Overall this is a well-presented, commuter-friendly home with riverside charm and sensible modern updates. It will suit first-time buyers or couples seeking a low-maintenance town-centre base, though buyers should allow for potential insulation improvements and consider flood-preparedness measures.
2 bedroom terraced house for sale in Winchester Road, Whitchurch, RG28 — £359,950 • 2 bed • 2 bath • 498 ft²
2 bedroom end of terrace house for sale in Micheldever Road, Whitchurch, RG28 — £290,000 • 2 bed • 1 bath • 807 ft²
3 bedroom detached house for sale in London Street, Whitchurch, RG28 7LQ, RG28 — £599,950 • 3 bed • 2 bath • 1427 ft²
4 bedroom semi-detached house for sale in Winchester Road, Whitchurch, RG28 7HP, RG28 — £500,000 • 4 bed • 2 bath • 1426 ft²
3 bedroom semi-detached house for sale in Winchester Street, Whitchurch, RG28 — £325,000 • 3 bed • 1 bath • 787 ft²
2 bedroom end of terrace house for sale in Newbury Street, Whitchurch, RG28 — £249,950 • 2 bed • 1 bath • 494 ft²


















































































































