Large cold‑chain ready campus with strong road links to Midlands and east coast ports.
Approximately 9,872 m² (106,264 sq ft) of industrial and office accommodation
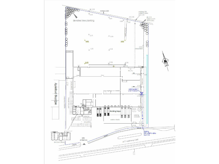
Set across approximately 7.57 acres with c.9,872 m² (106,264 sq ft) of buildings, this high‑profile distribution centre on the north side of the A17 offers immediate access to the Midlands, East Anglia and east coast ports. The estate comprises multiple steel portal‑framed warehouses and a two‑storey glazed office block with air conditioning, substantial concreted aprons, eight sunken loading docks and an airfreight loading bay — arranged for packing, temperature‑controlled storage and large‑scale dispatch operations.
The accommodation includes dedicated packhouses, ambient and cold storage areas with modern cold‑store plant (installed/updated 2017–2023) and an 800KVA diesel standby generator. Two‑thirds of the warehouse roofing has been renewed recently. The site benefits from ample staff and visitor parking, a widened service roadway to the rear for external storage and direct goods intake, and all cold‑store plant is included in the sale.
Practical considerations: the property uses a private Marsh Addington treatment plant for drainage (capacity 300 persons), has no gas connection, and broadband speeds in the area are slow. The buildings date from the 1980s/1990s so some areas will need ongoing maintenance and targeted investment despite recent roof works. VAT is payable in addition to the guide price. The freehold is offered with vacant possession and may alternatively be let on specified lease terms or possibly subdivided by arrangement.
This is a purpose‑built distribution hub suited to floriculture, food distribution, cold‑chain logistics or other temperature‑sensitive operations seeking a secure, well‑equipped operational base with strategic road links. Investors or operators seeking scale and immediate operational capability will find the site compelling, subject to plant inspection and planning due diligence.
 Distribution warehouse for sale in NHBC 122, New Hammond Beck Road, Wyberton, Boston, East Midlands, PE21 — £4,000,000 • 1 bed • 1 bath • 13272 ft²
 Distribution warehouse for sale in NHBC 122, New Hammond Beck Road, Wyberton, Boston, East Midlands, PE21 — £4,000,000 • 1 bed • 1 bath • 13272 ft² Distribution warehouse for sale in Manea Road, Wimblington, March, PE15 0PE, PE15 — POA • 1 bed • 1 bath
 Distribution warehouse for sale in Manea Road, Wimblington, March, PE15 0PE, PE15 — POA • 1 bed • 1 bath Warehouse for sale in Hadley Road, Sleaford, Lincolnshire, NG34 7EG, NG34 — £1,350,000 • 1 bed • 1 bath • 24481 ft²
 Warehouse for sale in Hadley Road, Sleaford, Lincolnshire, NG34 7EG, NG34 — £1,350,000 • 1 bed • 1 bath • 24481 ft² Warehouse for sale in Postland Road, Crowland, Peterborough, PE6 0JB, PE6 — £3,750,000 • 1 bed • 1 bath • 1184 ft²
 Warehouse for sale in Postland Road, Crowland, Peterborough, PE6 0JB, PE6 — £3,750,000 • 1 bed • 1 bath • 1184 ft² Distribution warehouse for sale in Premises off Spalding Road, Bourne, PE10 — £875,000 • 1 bed • 1 bath • 14154 ft²
 Distribution warehouse for sale in Premises off Spalding Road, Bourne, PE10 — £875,000 • 1 bed • 1 bath • 14154 ft² Commercial property for sale in Elsoms Way, Pinchbeck, Spalding, Lincolnshire, PE11 — £2,100,000 • 1 bed • 1 bath • 13736 ft²
 Commercial property for sale in Elsoms Way, Pinchbeck, Spalding, Lincolnshire, PE11 — £2,100,000 • 1 bed • 1 bath • 13736 ft²










































































































