Three-bed modern home with private garden and allocated parking.
End-of-cul-de-sac position backing onto woodland
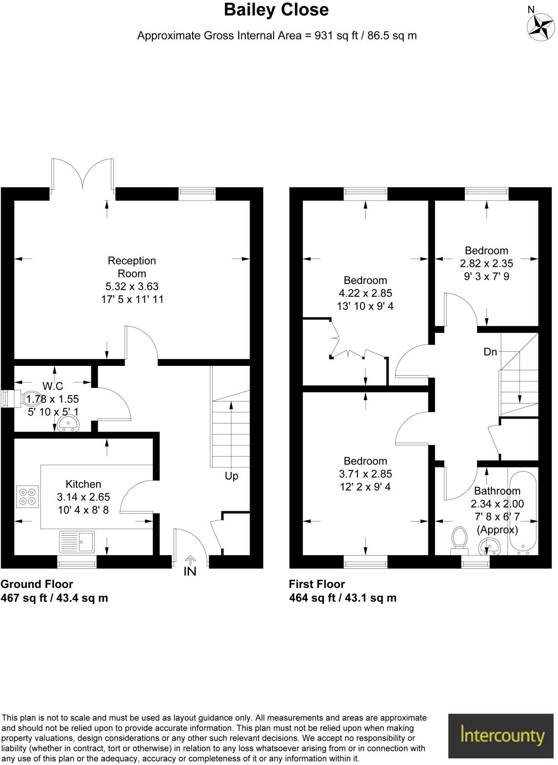
Set at the end of a quiet cul‑de‑sac and backing onto woodland, this three‑bedroom semi delivers comfortable, modern living across two floors. The ground floor offers a fitted kitchen, cloakroom and a bright sitting/dining room with French doors opening onto a private rear garden. Allocated parking for two vehicles sits to the side and the property is freehold with an EPC rating of B.
The home is well suited to first‑time buyers seeking a move‑in ready starter with sensible running costs: council tax band D, fast broadband, excellent mobile signal and a low‑to‑moderate service charge (£284). With around 931 sq ft of accommodation, the three bedrooms and single family bathroom provide the space most new households need, and the woodland outlook adds privacy and a pleasant local walk network.
There are realistic value‑adding opportunities: the garden landscaping and some internal finishes could be refreshed to increase appeal, and the layout lends itself to straightforward improvements. It also offers investment potential with an indicative rental income of around £1,600 PCM.
Be aware of the principal limitations: there is only one bathroom, the plot is small, and the property suits those who want a modern, average‑sized home rather than a large family estate. Overall condition appears tidy and recent, but services and appliances have not been individually tested and buyers should arrange their own inspections.
3 bedroom semi-detached house for sale in Baily Close, Elsenham, CM22 — £365,000 • 3 bed • 1 bath • 925 ft²
3 bedroom semi-detached house for sale in Lankester Close, Elsenham, Bishop's Stortford, Essex, CM22 — £380,000 • 3 bed • 2 bath • 959 ft²
3 bedroom detached house for sale in Hailes Wood, Elsenham, Bishop's Stortford, Hertfordshire, CM22 — £485,000 • 3 bed • 2 bath • 967 ft²
4 bedroom detached house for sale in Askew Close, Elsenham, Bishop's Stortford, Essex, CM22 — £685,000 • 4 bed • 3 bath • 1722 ft²
3 bedroom semi-detached house for sale in Bluebell Walk, Elsenham, Bishop's Stortford, Essex, CM22 — £435,000 • 3 bed • 3 bath • 829 ft²
3 bedroom semi-detached house for sale in Broom Farm Road, Elsenham, Bishop's Stortford, Essex, CM22 — £475,000 • 3 bed • 1 bath • 1274 ft²






















































