**Standout Features:**
- Three-bedroom mid-terrace home
- Spacious rear garden with additional parcel of land
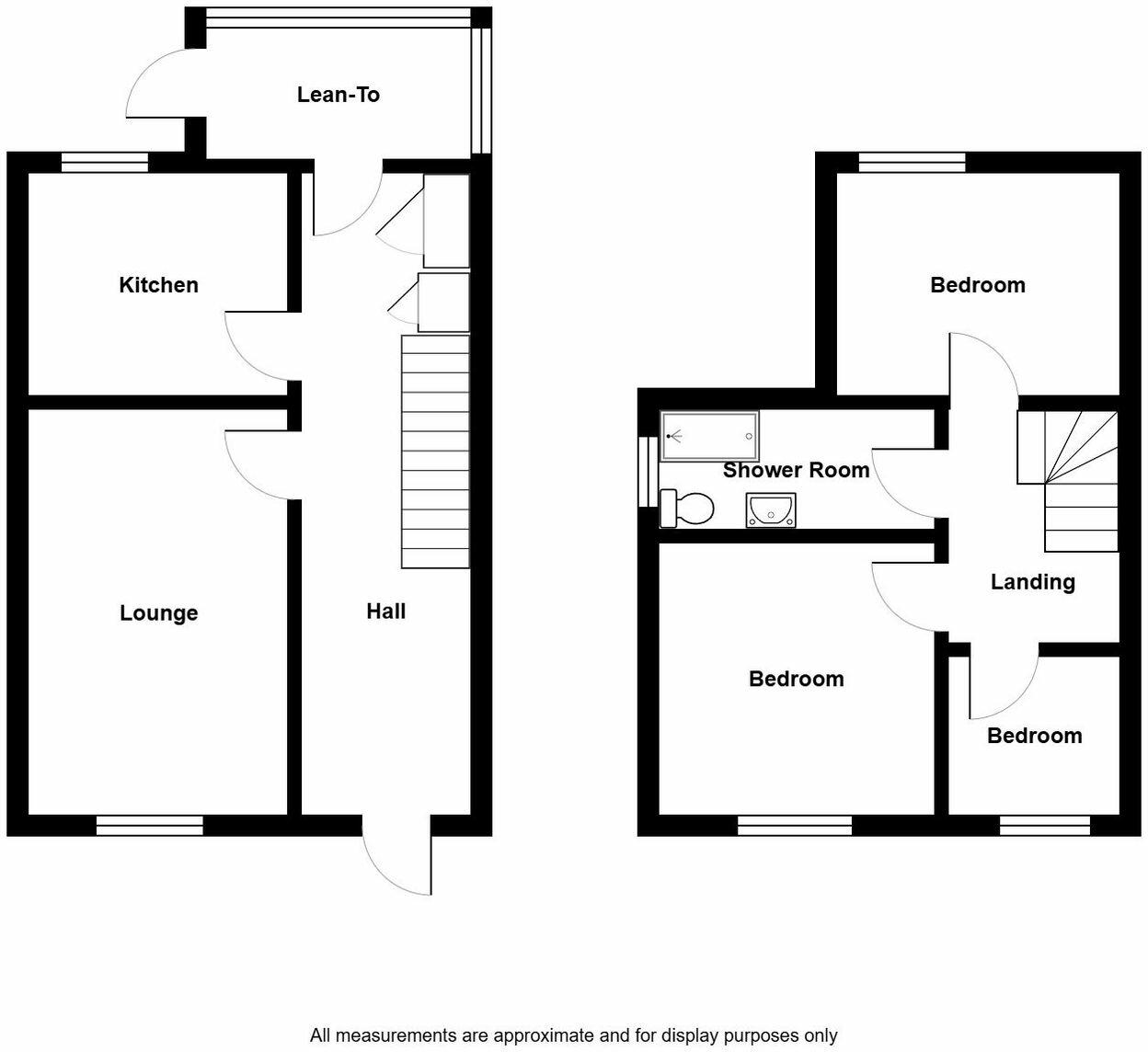
- First-floor shower room
- Semi-rural location in Pontyberem
- Chain-free sale
- EPC Rating: F
**Potential Concerns:**
- Requires upgrading and renovation
- No central heating currently in place
Discover the potential of this three-bedroom mid-terrace home in the picturesque semi-rural village of Pontyberem, Llanelli. With its traditional stone façade and classic design, this charming property includes a convenient first-floor shower room and a surprisingly spacious rear garden, complemented by an additional parcel of land that opens the door to various outdoor uses. Ideal for families or first-time buyers, the generous garden space is perfect for gardening enthusiasts or for creating your tranquil outdoor retreat.
The property is chain-free, which means a smoother transition for prospective owners. While it does require some upgrading and currently lacks central heating, it offers a canvas for those eager to add their personal touch and enhance its value over time. With good local amenities, including shops and schools just a short distance away, this home provides both comfort and future potential. Don’t miss your chance to explore this hidden gem and envision the possibilities that await!
3 bedroom semi-detached house for sale in Ffordd Aneurin, Pontyberem, Llanelli, SA15 — £145,000 • 3 bed • 1 bath • 807 ft²
3 bedroom end of terrace house for sale in Brongwendraeth, Pontyates, SA15 — £170,000 • 3 bed • 1 bath • 1303 ft²
4 bedroom semi-detached house for sale in Heol Y Meinciau, Pontyates, Llanelli, SA15 — £185,000 • 4 bed • 1 bath • 1208 ft²
3 bedroom terraced house for sale in Bridge Street, Penygroes, Llanelli, SA14 — £129,950 • 3 bed • 1 bath • 631 ft²
3 bedroom end of terrace house for sale in Heol Llethryd, Pontyberem, Llanelli, Carmarthenshire, SA15 — £140,000 • 3 bed • 2 bath • 1034 ft²
3 bedroom semi-detached house for sale in Heol Nazareth, Pontyates, Llanelli, SA15 — £225,000 • 3 bed • 1 bath • 942 ft²














































