Big garage, conservatory and easy garden close to Brecon town and National Park.
Four well-proportioned bedrooms with fitted wardrobes
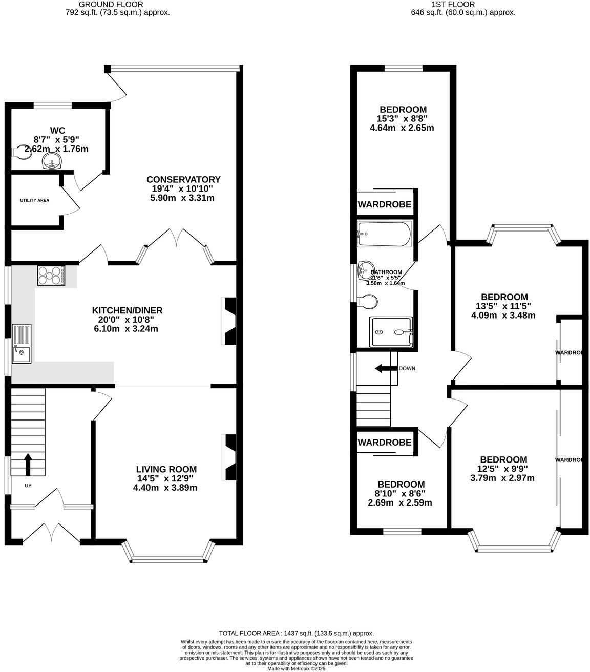
A spacious four-bedroom semi-detached house in a popular St Davids Crescent location, ideal for families seeking roomy, flexible living near the Brecon Beacons. The ground floor offers a welcoming hall with parquet flooring and original stained glass, an open-plan living and dining area with a bay window, and a large conservatory that overlooks an easily managed rear garden.
Practical strengths include a substantial double garage/workshop with an inspection pit, driveway parking (shared), an electric car charging point, pantry/utility space and downstairs cloakroom. Upstairs are four well-proportioned bedrooms with fitted wardrobes and a family bathroom with both a bath and separate shower. Total living area is about 1,437 sq ft, on a decent plot and freehold tenure.
Important considerations: the property dates from the 1967–1975 period and walls are noted as cavity construction with no installed insulation (assumed), so energy upgrades may be needed. Council tax is band E (above average) and services/appliances have not been tested. The neighbourhood is classed as an ageing community in a wider area with higher deprivation indices, which may be relevant to some buyers.
This home suits families wanting generous indoor/outdoor space, hobbyists who will use the large garage/workshop, or buyers looking for a period-feel property with potential for energy-efficiency improvements. The location offers quick access to Brecon town amenities and countryside recreation within the National Park.
4 bedroom semi-detached house for sale in St. Davids Crescent, Brecon, Powys., LD3 — £399,950 • 4 bed • 1 bath • 1314 ft²
4 bedroom semi-detached house for sale in Pen Y Bryn, Brecon, LD3 — £300,000 • 4 bed • 2 bath • 1216 ft²
4 bedroom detached house for sale in Parc Tarell, Brecon, LD3 — £465,000 • 4 bed • 2 bath • 1230 ft²
4 bedroom detached house for sale in Camden Road, Brecon, Powys, LD3 — £495,000 • 4 bed • 2 bath • 1800 ft²
4 bedroom detached house for sale in Cradoc, Brecon, Brecon, LD3 — £450,000 • 4 bed • 2 bath • 1582 ft²
3 bedroom detached house for sale in Dorlangoch, Brecon, LD3 — £455,000 • 3 bed • 1 bath • 1309 ft²






























































































































