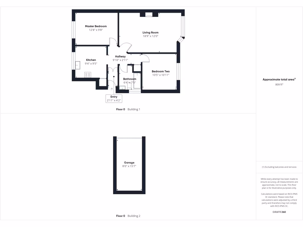
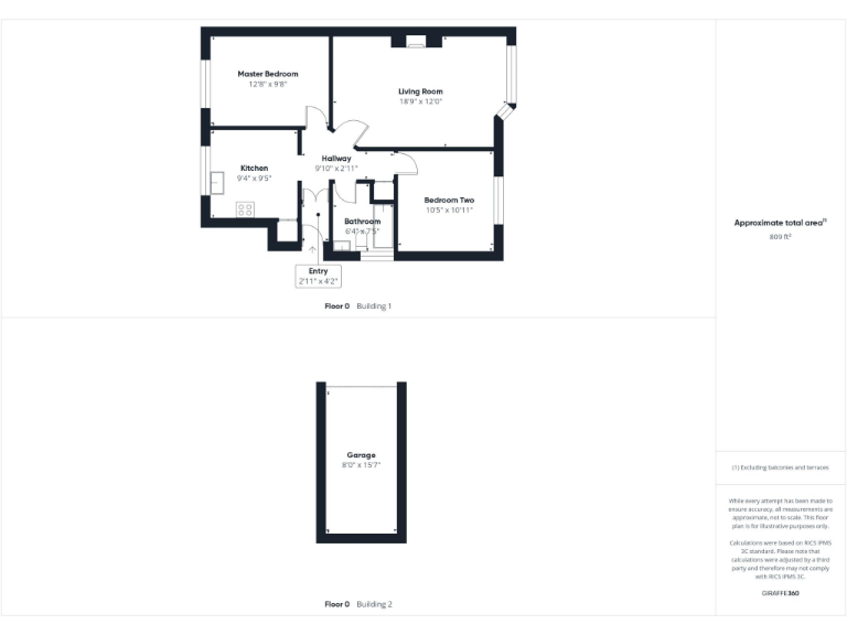
**Standout Features:**
- Two double bedrooms
- Bright, open layout with ample natural light
- Modern high gloss kitchen with laminate worktops
- Private rear patio area, ideal for entertaining
- Own garage for convenient parking
- Excellent location within 10 minutes of amenities and train station
- Share of freehold tenure
This charming ground floor maisonette in SL6 7LR presents an appealing opportunity for first-time buyers or investors seeking a well-maintained property with entertaining potential. Featuring two spacious double bedrooms and a sleek white bathroom suite, the home is designed for both comfort and functionality. The standout high gloss kitchen, enhanced by an open living area, creates a modern and inviting atmosphere, perfect for casual gatherings or family living.
Step outside to enjoy your private patio area, a fantastic space for outdoor dining or relaxation, complemented by a landscaped front garden that adds curb appeal. With a garage included, parking is a breeze. The property resides in a vibrant neighborhood boasting excellent amenities within easy reach, making it perfect for those seeking convenience. Note, while the property is overall well-presented, future maintenance may be required, especially for the older construction elements, such as cavity walls without insulation. Embrace the opportunity to make this delightful maisonette your own—properties like this don’t stay on the market for long!
2 bedroom maisonette for sale in Sandringham Road, Maidenhead, SL6 — £340,000 • 2 bed • 1 bath • 656 ft²
2 bedroom maisonette for sale in Brunel Road, Maidenhead, SL6 — £350,000 • 2 bed • 1 bath • 838 ft²
2 bedroom maisonette for sale in Belmont Crescent, Maidenhead, SL6 — £325,000 • 2 bed • 1 bath • 725 ft²
2 bedroom ground floor maisonette for sale in Norfolk Road, Maidenhead, SL6 — £330,000 • 2 bed • 1 bath • 728 ft²
2 bedroom maisonette for sale in Blackamoor Lane, Maidenhead, SL6 — £280,000 • 2 bed • 1 bath • 566 ft²
2 bedroom maisonette for sale in Green Close, Maidenhead, SL6 — £275,000 • 2 bed • 1 bath • 658 ft²


































