WF2 0TP - 3 bedroom semidetached house for sale in Allan Haigh Close,…

View on Property Piper

3 bedroom semi-detached house for sale in Allan Haigh Close, Wakefield, West Yorkshire, WF2

Summary - 28 Allan Haigh Close WF2 0TP

3 bed 1 bath Semi-Detached

Energy-efficient three-bedroom shared-ownership home with garden and long lease.
Energy-efficient new build with EPC A
This three-bedroom semi-detached home on Allan Haigh Close offers energy-efficient new-build living with an A EPC and gas central heating. Built in 2020, it benefits from a remaining new-build warranty and a long lease (122 years), making it a low-maintenance choice for first-time buyers or those seeking a modern starter home.

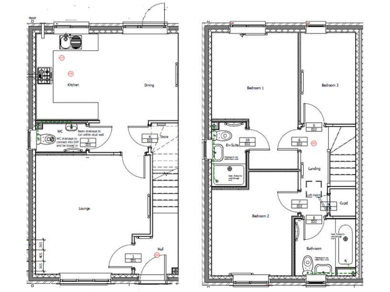
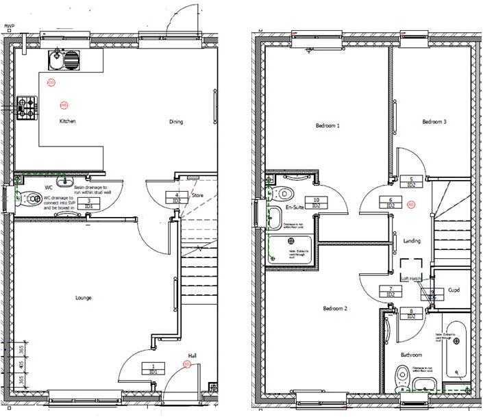
The layout includes a light living room, ground-floor cloakroom, fitted kitchen/dining room with French doors to a lawned rear garden, and three bedrooms with an en-suite to the principal bedroom. Carpets throughout and contemporary finishes present a move-in ready feel, while fast broadband and excellent mobile signal suit working-from-home needs.

This property is offered as shared ownership (40%–75% available). Price examples: 40% share £100,000 (rent £401.25/month), 50% share £125,000 (rent £334.38/month), 75% share £187,500 (rent £167.19/month). Buyers should budget for small monthly charges (buildings insurance £3.51, management fee £5.37) and understand the leasehold tenure.

Notable drawbacks: the home sits in an area with above-average crime statistics, there is a single family bathroom plus an en-suite (one full bath), and shared-ownership means ongoing rent until staircasing to full ownership. No flooding risk, average-sized rooms and modest overall square footage suit first-time buyers rather than those needing extensive space.

Property Details

Image Descriptions

Rooms

Textual Property Features

Target Audience

AI Tags

Detected Visual Features

EPC Details

Nearby Schools

Nearest Bars And Restaurants

,,,,}

Nearest General Shops

,,}

Nearest Grocery shops

,,}

Nearest Supermarkets

,,}

Nearest Religious buildings

,,}

Nearest Medical buildings

,,,}

Nearest Airports

}

Nearest Leisure Facilities

,,,,}

Nearest Tourist attractions

,,}

Nearest Train stations

,,,,}

Nearest Bus stations and stops

,,,,}

Nearest Hotels

,,}

Tags

Local Market Stats

Similar Properties

Meta

High Res Images

Compatible Images

Low res Images

Thumbnails

Raw Images

High Res Floorplan Images

Compatible Floorplan Images

Low res Floorplan Images

FloorplanImages Thumbnail

Raw Floorplan Images