Large west-facing garden with parking and scope to extend (STPP).
Chain free three-bedroom detached bungalow
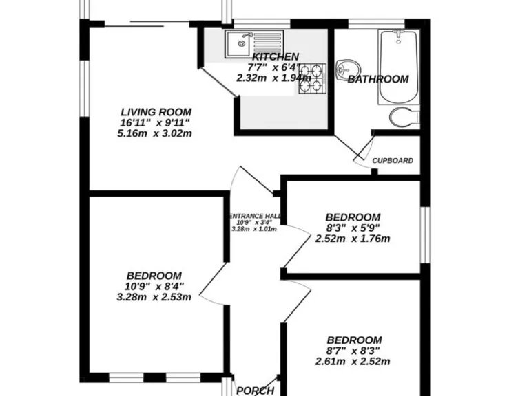
This detached three-bedroom bungalow on St Johns Road offers straightforward, single-storey living with genuine potential. Set on a large west-facing plot, the property includes a generous rear garden and gravel driveway providing useful off-street parking. It is sold chain-free, so a quick move is possible for buyers wanting immediate possession.
The interior is compact (approximately 459 sq ft) and mostly ready to occupy, with a contemporary kitchen and a functional layout arranged around a central porch. The bungalow dates from the 1930s–1940s and shows signs of age in places — there are damp patches to the exterior and areas that would benefit from cosmetic updating.
Crucially for buyers seeking added value, there is scope to extend or redevelop (subject to planning permission). This makes the house suitable for families who want to create more living space, or for purchasers looking for a refurbishment project in an affluent, well-served area with fast broadband and good local schools.
Practical details: mains gas boiler and radiators, double glazing, EPC C (74), freehold tenure and no flood risk. The plot size and single-storey layout make this a flexible opportunity, but prospective purchasers should budget for refurbishment and to investigate planning options if extending.
3 bedroom bungalow for sale in Waverley Road, Farnborough, Hampshire, GU14 — £600,000 • 3 bed • 1 bath • 1010 ft²
3 bedroom bungalow for sale in St. Johns Road, Farnborough, Hampshire, GU14 — £500,000 • 3 bed • 1 bath • 689 ft²
3 bedroom bungalow for sale in Broomwood Way, Lower Bourne, Farnham, GU10 — £640,000 • 3 bed • 2 bath • 1039 ft²
3 bedroom bungalow for sale in West Avenue, Farnham, Surrey, GU9 — £600,000 • 3 bed • 1 bath • 910 ft²
2 bedroom bungalow for sale in Ewins Close, Ash, Surrey, GU12 — £500,000 • 2 bed • 2 bath • 779 ft²
2 bedroom bungalow for sale in Earlsbourne, Church Crookham, Fleet, Hampshire, GU52 — £400,000 • 2 bed • 1 bath • 986 ft²






























































