Single-level living with large garden and garage in a quiet Tiverton lane.
Detached two-bedroom bungalow with large footprint (approx. 1,152 sq ft)
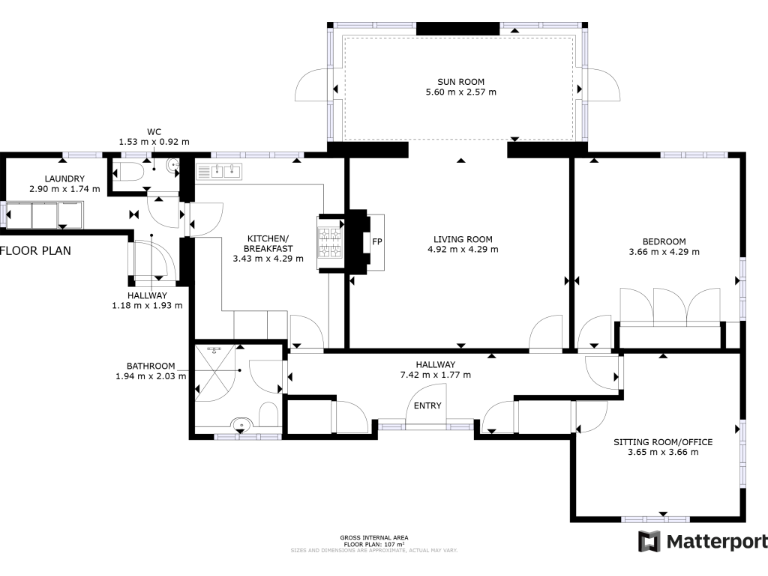
This detached two-bedroom bungalow offers comfortable single-level living in a sought-after Tiverton lane, ideal for downsizers or small families seeking low-maintenance grounds. The sitting room opens into a conservatory/dining area that floods the home with light and gives direct garden access. A generous enclosed rear garden includes paved seating areas, lawn, planted borders and a powered summer house suitable for a home office.
Practical features include a single garage with drive parking for two cars, a separate utility and cloakroom, built-in bedroom storage and a gas-fired boiler with radiators. The property is freehold, in Council Tax Band D, sits in a very low-crime, affluent neighbourhood and benefits from fast broadband and convenient access to local amenities, Blundell’s schools and the Grand Western Canal.
The bungalow is solid and well maintained but not fully modernised. The kitchen shows colourful, older units and will suit buyers happy to accept cosmetic updating. Glazing is double but install date is unknown. Buyers should note the property was constructed circa 1950–66, so systems and finishes may reflect that era and purchasers may wish to survey accordingly.
Overall this is a large-footprint bungalow (approx. 1,152 sq ft) on a generous plot offering comfortable, single-storey living with scope to personalise and improve. The layout, garden and summer house give immediate lifestyle value, while straightforward updates would enhance long-term resale potential.
2 bedroom bungalow for sale in Branscombe Road, Tiverton, EX16 — £280,000 • 2 bed • 1 bath • 1360 ft²
3 bedroom detached bungalow for sale in Westcott Road, Tiverton, EX16 — £375,000 • 3 bed • 1 bath • 948 ft²
3 bedroom bungalow for sale in Carew Road, Tiverton, EX16 — £295,000 • 3 bed • 1 bath • 767 ft²
2 bedroom bungalow for sale in Marina Way, Tiverton, Devon, EX16 — £279,950 • 2 bed • 1 bath • 908 ft²
2 bedroom bungalow for sale in Peard Road, Tiverton, Devon, EX16 — £295,000 • 2 bed • 1 bath • 659 ft²
2 bedroom semi-detached bungalow for sale in Sidelings Fields, Tiverton, EX16 — £230,000 • 2 bed • 1 bath • 764 ft²


























































