Contemporary family home with garden and driveway in peaceful village setting.
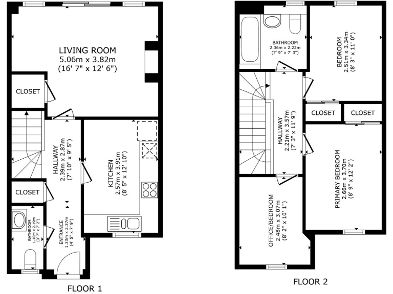
- Three well-sized bedrooms and family bathroom, plus ground-floor WC
- Modern fitted kitchen with ample base and wall units
- Generous living room with garden access and good natural light
- Private rear garden and driveway parking for off-street parking
- Freehold tenure, EPC rating B, fast broadband available
- Average overall size (~883 sq ft); multi-story layout
- Mobile signal average; local area classified as very deprived
- No flood risk; council tax is moderate
A well-proportioned three-bedroom semi-detached home in Stanley, offered freehold with an EPC rating of B. The ground floor has a modern fitted kitchen at the front, a generous living room at the rear with access to a private garden, and a convenient downstairs WC. Upstairs provides three good-sized bedrooms and a family bathroom with a bath and overhead shower.
Practical features include off-street parking via a driveway, a small landscaped front area, and fast broadband — useful for homeworking or streaming. The property sits in a quiet residential development surrounded by similarly styled homes, making it suitable for first-time buyers or young families seeking a manageable, contemporary home.
Notable practicalities: the overall footprint is average at about 883 sq ft, mobile signal is only average, and the local area is classified as very deprived which may affect resale demand. Council tax is moderate. There are no reported flood risks, and the property will suit buyers wanting a ready-to-live-in house rather than a major renovation project.
This home offers straightforward everyday comfort with sensible running costs and practical exterior space. It’s a realistic choice for buyers prioritising a modern layout, outdoor space, and good connectivity to nearby towns while accepting local area challenges.
3 bedroom house for sale in Cambridge Court, East Brougham Street, Stanley, Perth, PH1 — £148,950 • 3 bed • 1 bath • 915 ft²
2 bedroom terraced house for sale in 63 Murray Place, Stanley, Perth, PH1 4LX, PH1 — £140,000 • 2 bed • 1 bath • 671 ft²
3 bedroom semi-detached house for sale in Millside Park,
Stanley,
PH1 4NN
, PH1 — £224,500 • 3 bed • 3 bath • 1011 ft²
3 bedroom semi-detached house for sale in Millside Park,
Stanley,
PH1 4NN
, PH1 — £224,000 • 3 bed • 2 bath • 775 ft²
3 bedroom detached house for sale in Millside Park,
Stanley,
PH1 4NN
, PH1 — £278,000 • 3 bed • 2 bath • 1011 ft²
3 bedroom semi-detached house for sale in Millside Park,
Stanley,
PH1 4NN
, PH1 — £250,500 • 3 bed • 3 bath • 1011 ft²


















































































