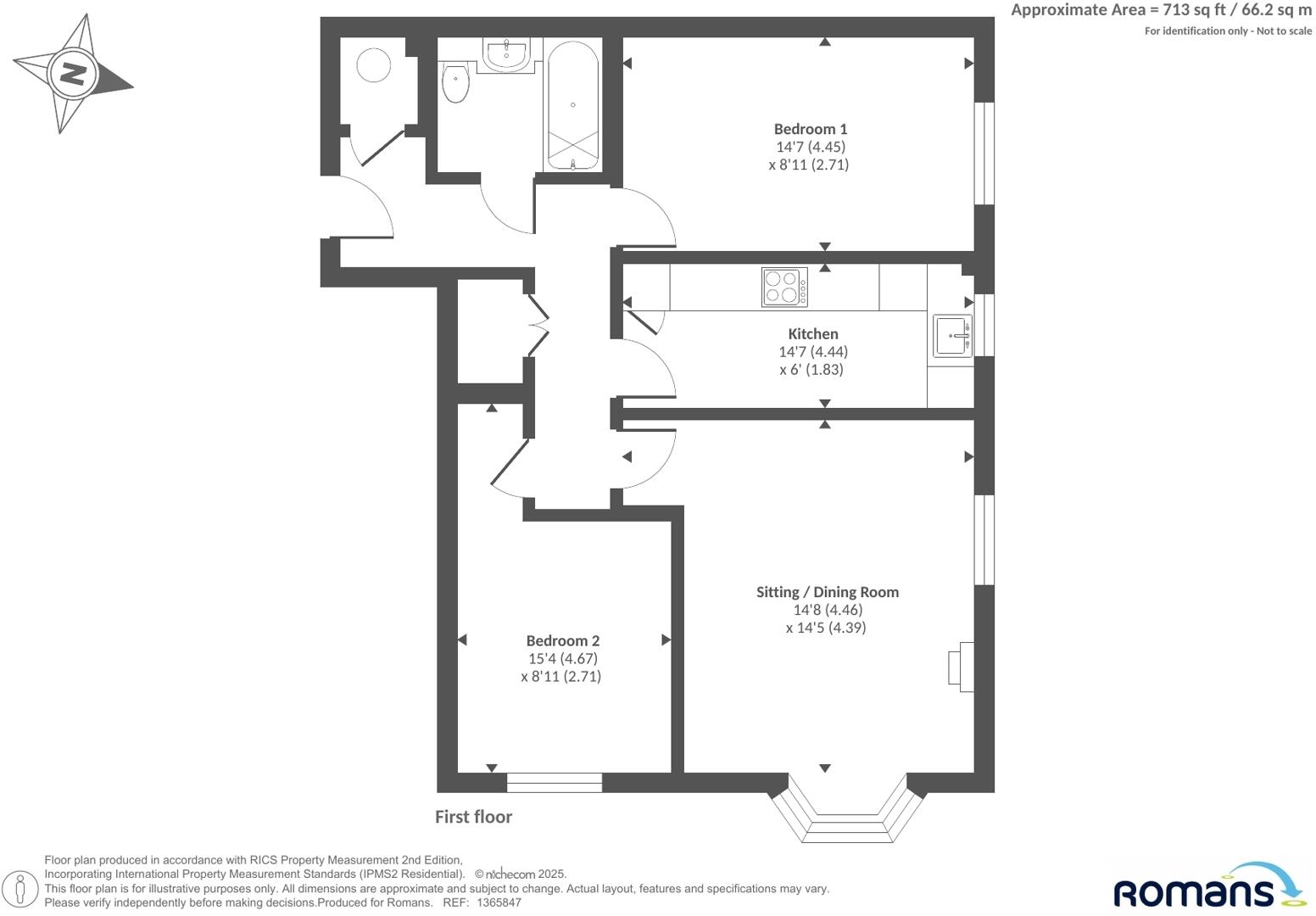
Well-located two-bedroom flat ideal for first buyers or investors.
Two double bedrooms, comfortable layout
Separate kitchen with good storage and workspace
Bright, well-sized living room with double glazing
Allocated off-street parking and secure entry system
Long lease (166 years) and low service charge/ground rent
Electric storage heaters — potentially higher running costs
Double glazing fitted before 2002; some windows may be older
Local area has higher crime levels; consider security needs
Set within the modern Avenue Heights development, this two-bedroom apartment offers straightforward, comfortable living close to Reading town centre and excellent transport links. The bright living room and separate kitchen provide a practical layout for daily life, while two double bedrooms suit a small family, sharers or first-time buyers wanting more space.
Practical features include allocated off-street parking, secure entry and low service charge and ground rent. The long lease (166 years remaining) gives long-term security often sought by buyers. The property is an average-sized apartment at about 713 sq ft, with double glazing and contemporary bathroom fittings.
Buyers should note the flat is heated by electric storage heaters, which can be more costly than gas systems, and the glazing predates 2002. The local area is a cosmopolitan, student-influenced neighbourhood with fast broadband and excellent mobile signal, but statistics indicate higher local crime levels — worth considering for those prioritising security. Overall this is a practical, well-located apartment with good onward availability and scope for modest updating.
2 bedroom apartment for sale in Southcote Lane, Reading, Berkshire, RG30 — £260,000 • 2 bed • 1 bath • 713 ft²
2 bedroom apartment for sale in Southcote Road, Reading, Berkshire, RG30 — £220,000 • 2 bed • 1 bath • 579 ft²
2 bedroom apartment for sale in Bayeux Court, Connaught Road, Reading, RG30 — £215,000 • 2 bed • 2 bath • 786 ft²
2 bedroom apartment for sale in Avenue Heights, Basingstoke Road, Reading, RG2 — £220,000 • 2 bed • 2 bath • 476 ft²
2 bedroom apartment for sale in Flat 7, Townside Court, 6 Crown Place, Reading, Berkshire, RG1 — £260,000 • 2 bed • 2 bath • 707 ft²
2 bedroom apartment for sale in Oscar Wilde Road, Reading, Berkshire, RG1 — £275,000 • 2 bed • 2 bath • 870 ft²


























































































