**Standout Features:**
- Newly renovated three-bedroom semi-detached property
- Expansive gardens with stunning long-distance views
- Large garage and ample driveway parking
- Inviting garden room/conservatory perfect for entertaining
- Potential for substantial extensions or additional dwellings
**Summary:**
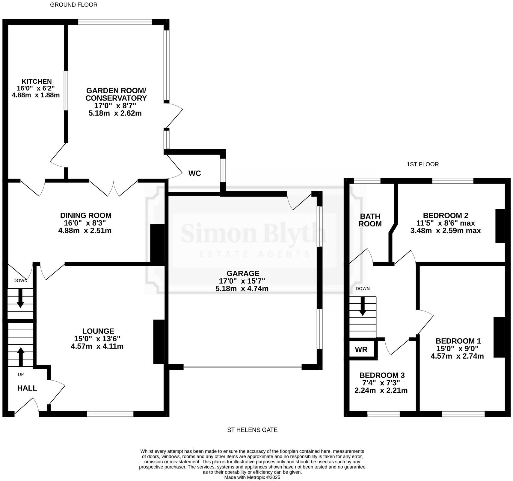
Discover this charming, newly renovated three-bedroom semi-detached home nestled in an enviable position with breathtaking views over lush gardens and fields. This property, boasting over 1,000 square feet of living space, features a lovely entrance vestibule leading to a spacious lounge with a large stone fireplace, a bright dining room, and a delightful garden room that seamlessly connects the indoor and outdoor areas. The modernized kitchen and stylish bathroom enhance the home’s appeal, accommodating family life with comfort and convenience.
Perfect for families, this home sits on an expansive plot providing flexibility for future developments or extensions, ensuring it can evolve as your needs change. The outdoor space is a highlight, complete with a greenhouse, a large fishpond, and mature gardens offering ample space for recreation and gardening enthusiasts. The property is chain-free and presents an ideal opportunity for first-time buyers or investors seeking a blend of modern living in a picturesque suburban setting. With its affordable council tax and proximity to local schools, this property is a rare find that won't last long in today’s competitive market—schedule your viewing today!
4 bedroom semi-detached house for sale in Amazon Cottage, 44 St Helens Gate, HD4 — £320,000 • 4 bed • 1 bath • 1948 ft²
3 bedroom semi-detached house for sale in Sharp Lane, Huddersfield, HD4 — £525,000 • 3 bed • 1 bath • 1378 ft²
2 bedroom semi-detached house for sale in Ballater Avenue, Crosland Moor, Huddersfield, West Yorkshire, HD4 — £160,000 • 2 bed • 1 bath • 780 ft²
3 bedroom semi-detached bungalow for sale in Quarmby Road, HD3 — £250,000 • 3 bed • 1 bath • 900 ft²
3 bedroom semi-detached house for sale in Hall Bower Lane, Huddersfield, HD4 — £290,000 • 3 bed • 1 bath • 1055 ft²
3 bedroom semi-detached house for sale in Highcliffe Avenue, Huddersfield, HD2 — £279,950 • 3 bed • 1 bath • 1217 ft²


















































































