Move-in ready single-storey home with garage and low-maintenance garden.
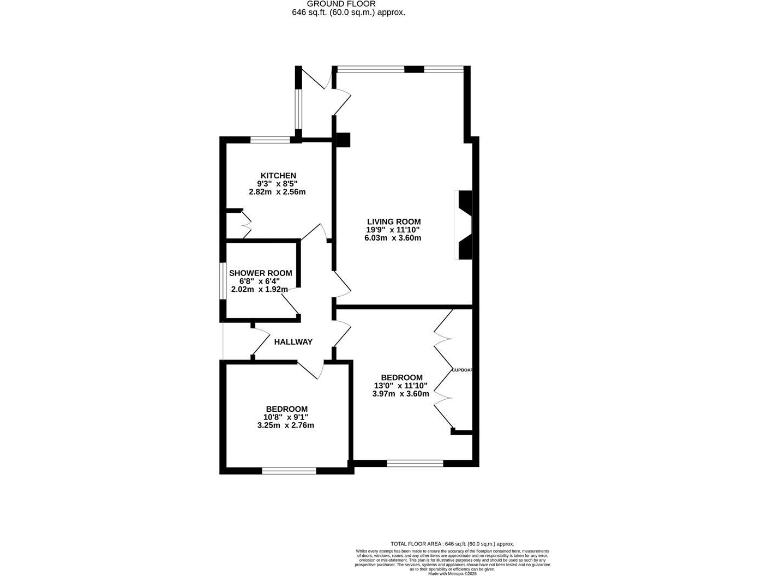
- Two double bedrooms with built-in storage in master
- Refitted kitchen and modern shower room
- New boiler fitted less than two years ago
- Upgraded electrics throughout the property
- Off-road parking plus single garage with courtesy door
- Corner plot offers potential to extend garden space
- Modest overall floor area (around 646–668 sq ft)
- Freehold, chain-free sale; very low local crime
Comfortably arranged on a generous corner plot, this single-storey bungalow offers practical, low-maintenance living for downsizers or small households. The layout includes two double bedrooms, a refitted kitchen, a bright lounge/diner and a modern shower room. Recent upgrades — a new boiler installed within two years and improved electrics — reduce immediate maintenance worries.
Externally the property benefits from off-road parking and a single garage with a courtesy door into the rear courtyard. The courtyard-style garden is intentionally low-maintenance, while the side garden (corner plot) offers scope to expand the outdoor space by relocating the fence for greater privacy or a larger lawn.
Internally the home is well presented throughout and move-in ready, with built-in storage in the principal bedroom and useful lean-to storage accessed from the lounge. The footprint is modest at around 646–668 sq ft, so while the accommodation is efficient and comfortable, it will suit buyers seeking single-floor living rather than generous room sizes.
Practical extras include freehold tenure, no upward chain and very low local crime levels. Consider the limited overall floor area and small garden compared with larger family homes — but for buyers wanting a tidy, recently upgraded bungalow in a quiet, comfortable suburb this property offers straightforward, low-hassle living.
2 bedroom semi-detached bungalow for sale in Mannings Rise, Rushden, NN10 0LY, NN10 — £230,000 • 2 bed • 1 bath • 674 ft²
3 bedroom semi-detached bungalow for sale in Mannings Rise, Rushden, NN10 — £270,000 • 3 bed • 1 bath • 901 ft²
2 bedroom semi-detached bungalow for sale in Albert Road, Finedon, Wellingborough, NN9 — £240,000 • 2 bed • 1 bath • 573 ft²
3 bedroom detached bungalow for sale in Sandringham Close, Rushden, NN10 9ER, NN10 — £425,000 • 3 bed • 1 bath • 1115 ft²
2 bedroom detached bungalow for sale in Wellingborough Road, Rushden, NN10 — £280,000 • 2 bed • 1 bath • 800 ft²
2 bedroom semi-detached bungalow for sale in St. Margarets Avenue, Rushden, NN10 — £215,000 • 2 bed • 1 bath • 531 ft²










































