Prominent location opposite station with on-site parking and redevelopment potential.
Freehold commercial building, circa 1,541 sq ft total
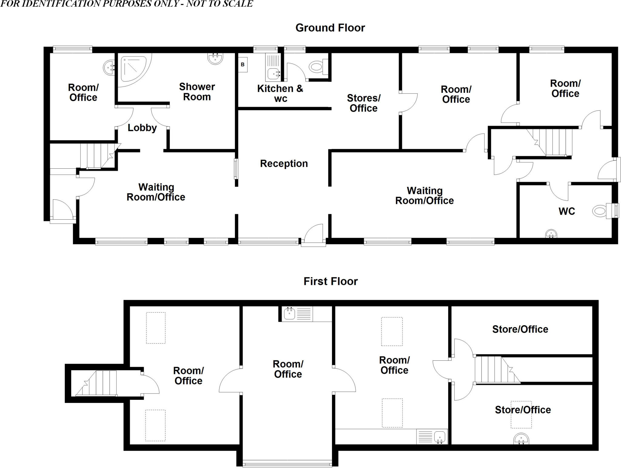
A substantial freehold commercial building in a prominent town-centre position opposite the railway station, offering flexible accommodation across two floors. The ground floor provides reception, two waiting rooms and seven offices/treatment rooms; the first floor adds three further rooms, stores and kitchenette fittings under sloping ceilings. On-site tarmac parking for at least four cars is a rare and valuable feature for this location.
The property was purpose-built as a doctors’ surgery and suits a range of uses subject to consent — offices, clinic, studio, day centre or retail. Mains services, gas-fired central heating, double glazing and an EPC rating of C are in place. A short walk to local amenities makes it convenient for staff and visitors.
There are notable maintenance and configuration considerations. Parts of the interior need renovation and have reported damp/mould in areas; some rooms have sloping ceilings restricting usable headroom. The building sits in a very deprived area with above-average local crime statistics, which may affect tenant mix and insurance costs. A medium-term FRI lease may be considered, though the owner prefers sale.
Commercial property for sale in Dimond Street, Pembroke Dock, SA72 — £175,000 • 1 bed • 1 bath • 1541 ft²
Commercial property for sale in Cartlett, Haverfordwest, SA61 — £220,000 • 1 bed • 1 bath • 1526 ft²
Commercial property for sale in Bridge Street, Haverfordwest, SA61 — £189,950 • 1 bed • 1 bath • 2163 ft²
4 bedroom town house for sale in Merlins Hill, Haverfordwest, SA61 — £195,000 • 4 bed • 2 bath • 1655 ft²
3 bedroom mixed use property for sale in 27 Meyrick Street, Pembroke Dock, SA72 — £135,000 • 3 bed • 1 bath • 1503 ft²
Office for sale in Bridge Street, Haverfordwest, Pembrokeshire, SA61 — £79,000 • 1 bed • 1 bath • 1424 ft²






































