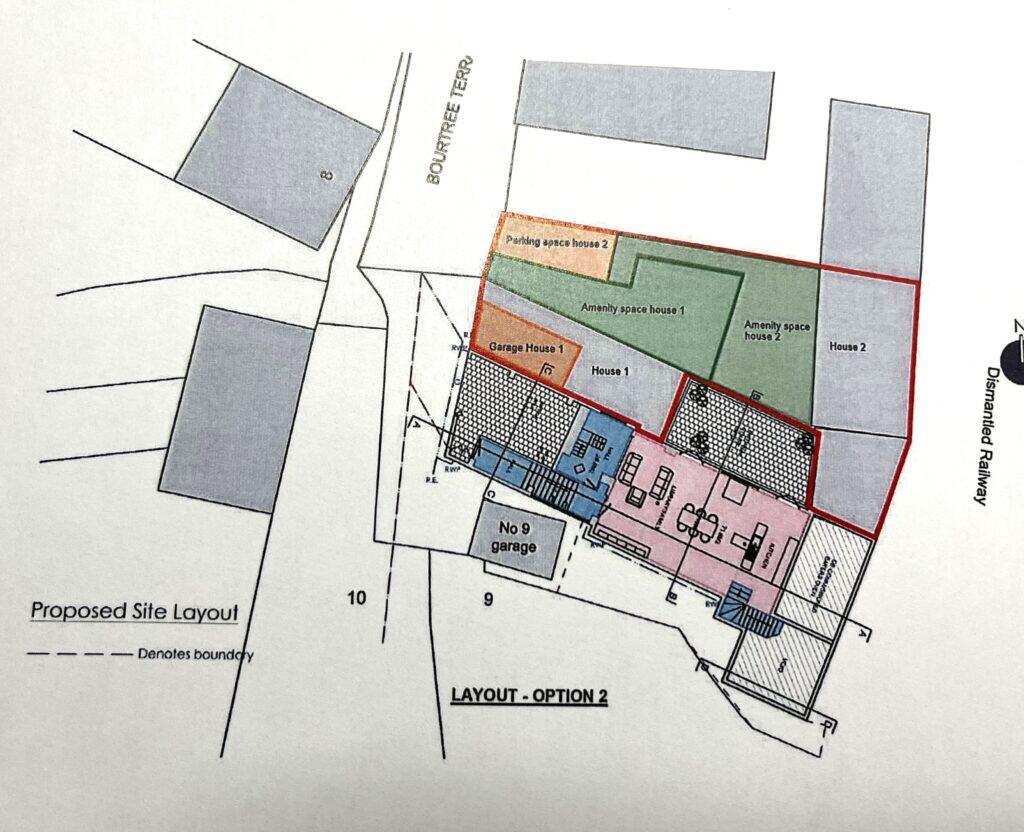
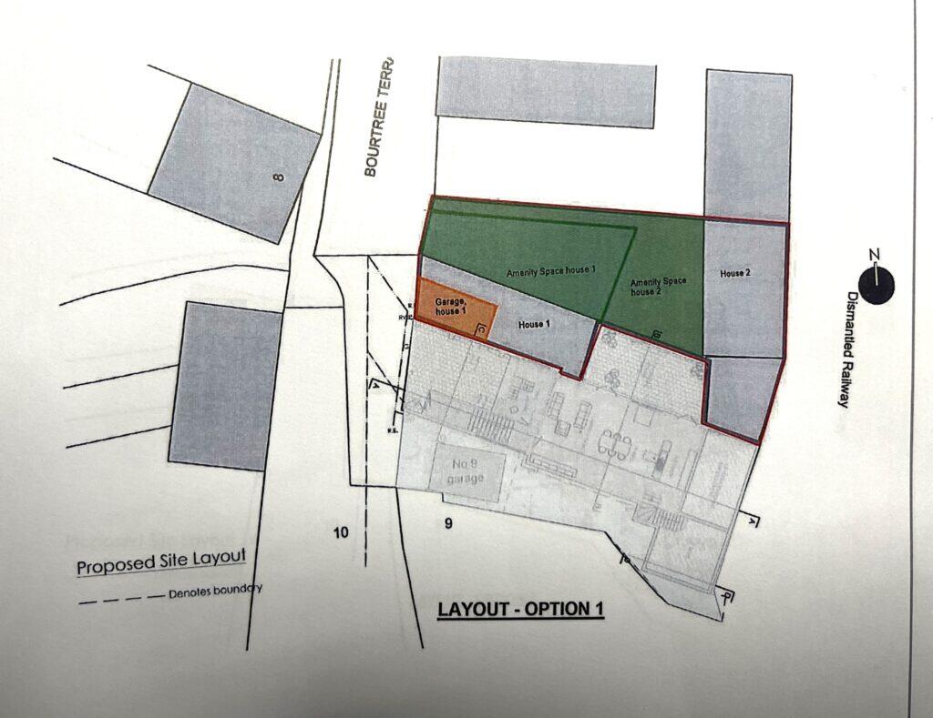
**Standout Features:**
- Centrally located development site at 11 Bourtree Terrace, Hawick
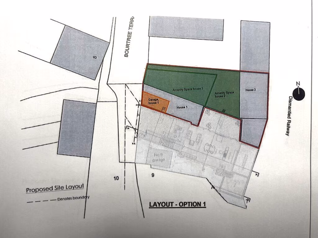
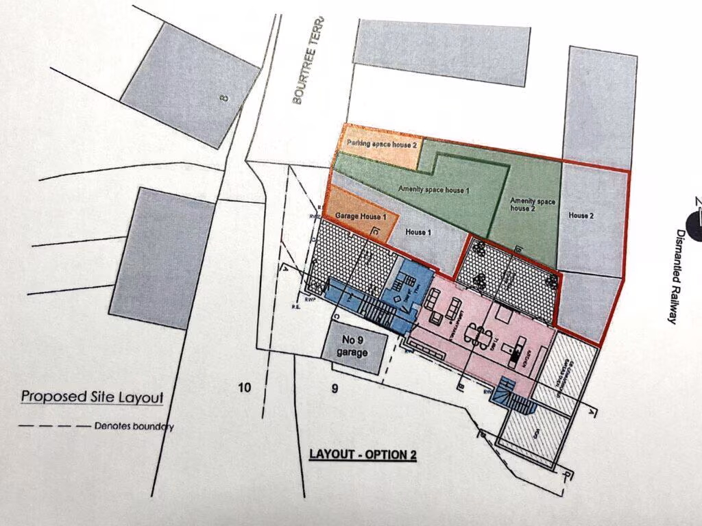
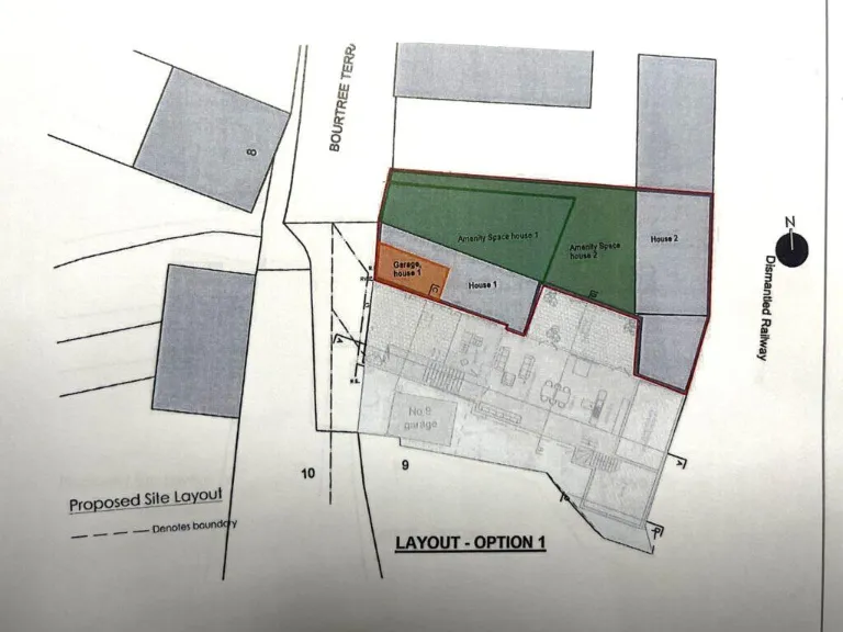
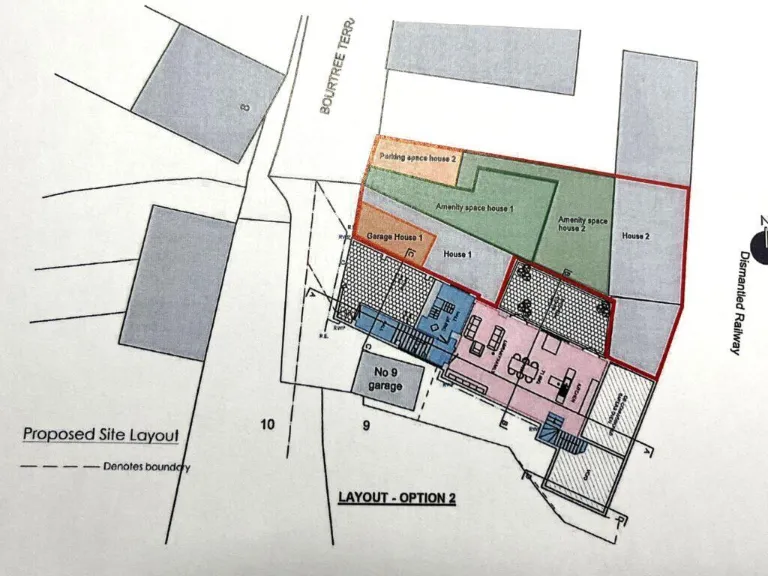
- Outline planning consent in progress for two residential dwelling houses
- Offers potential for gardens and parking
- Excellent mobile signal and average broadband speeds
**Concerns:**
- Currently features derelict buildings in need of renovation
- Overgrown areas indicating limited recent use
This central development site in Hawick offers an exciting investment opportunity for those looking to tap into the residential market. With outline planning consent already in progress to transform the site into two separate residential homes, the potential here is significant. Situated in a mixed-use area, it benefits from easy access to local amenities, schools, and transportation links, including nearby Tweedbank which provides a rail connection to Edinburgh, making it ideal for commuters.
While the current condition features derelict structures and overgrowth, this creates a blank canvas for visionary developers to create modern living spaces with gardens and parking. The average garden size lends itself well to private outdoor areas, adding value to the residential appeal. For first-time buyers or investors, this property represents an inviting blend of location, community charm, and development potential. Act quickly, as opportunities like this don’t last long!
Property for sale in Development Site, 4-6 Bourtree Terrace, Hawick, TD9 9HN, TD9 — £35,000 • 1 bed • 1 bath
Residential development for sale in Development Site, Plots 1,2,4 & 5 Thornwood Reach, Weensland Road, Hawick, TD9 8LA, TD9 — £415,000 • 4 bed • 3 bath • 1560 ft²
Plot for sale in Land at Heronhill Close, Hawick, TD9 — £30,000 • 1 bed • 1 bath
Land for sale in Land South Of Greenfields, 43 Liddesdale Road, Hawick, TD9 0EP, TD9 — £55,000 • 1 bed • 1 bath
Residential development for sale in Trinity Street, Hawick, TD9 — £85,000 • 1 bed • 1 bath • 7320 ft²
Land for sale in Plot 5, Leaburn Drive, Hawick, TD9 9NZ, TD9 — £85,000 • 1 bed • 1 bath






















