Generous freehold flat with balcony, tandem garage and historic views.
Extremely large two-bedroom plan — comparable to three-bedroom flats
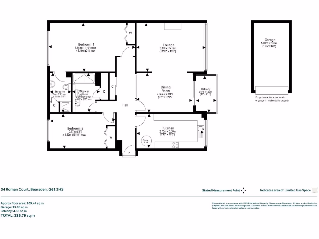
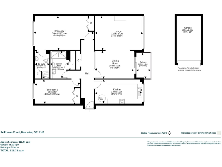
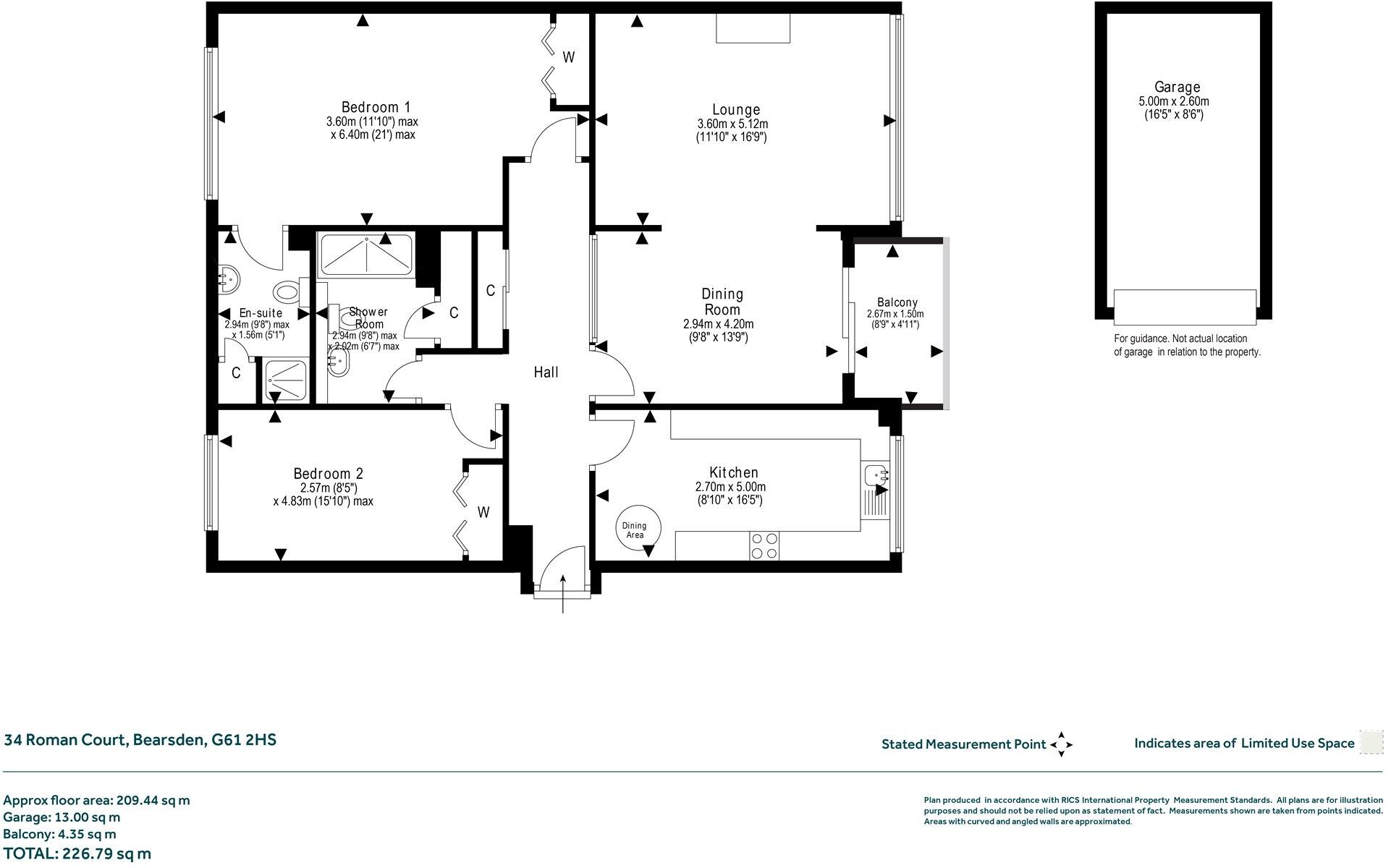
This unusually large two-bedroom apartment occupies the second floor of the well-regarded Roman Court development, offering an interior footprint comparable to many three-bedroom flats. Principal rooms and a south-facing balcony look over the nearby Antonine Wall remains, a World Heritage Site, bringing surprisingly open and historic views into an otherwise urban setting. The accommodation is described as well maintained and move-in ready, with PVCu double glazing and gas central heating already in place.
Practical extras include a very large tandem garage, plenty of resident parking, and a security-controlled entry system. Broadband speeds are fast and mobile signal is excellent, supporting modern home-working or streaming. The service charge is modest at approximately £920 per year and the property is freehold — attractive points for buyers seeking low ongoing communal costs.
Notable drawbacks are factual and important for budgeting: the property falls into Council Tax Band F, marked as expensive, and the wider area is recorded as very deprived despite pockets of highly qualified professionals nearby. Built around 1980, the block’s character is mid‑late 20th century rather than contemporary new build. These factors make the apartment especially suitable for downsizers wanting generous, low‑maintenance living space, or investors seeking a large, well-located rental with manageable running costs.
2 bedroom flat for sale in 53 Roman Court, Bearsden, G61 2NW, G61 — £280,000 • 2 bed • 2 bath • 1076 ft²
3 bedroom flat for sale in 69 Roman Court, Bearsden, G61 2NW, G61 — £295,000 • 3 bed • 2 bath • 1138 ft²
2 bedroom flat for sale in St Andrews Way, Bearsden G61 — £260,000 • 2 bed • 1 bath • 829 ft²
3 bedroom apartment for sale in Canniesburn Road, Bearsden, G61 — £220,000 • 3 bed • 2 bath • 1269 ft²
2 bedroom flat for sale in Lennox Court, 12 Sutherland Avenue, G61 — £150,000 • 2 bed • 1 bath • 926 ft²
2 bedroom flat for sale in Flat 30, 100 Wester Cleddens Road, Bishopbriggs, G64 1HZ, G64 — £215,000 • 2 bed • 2 bath • 926 ft²


















































































































