Spacious family house with garage and scope for loft conversion.
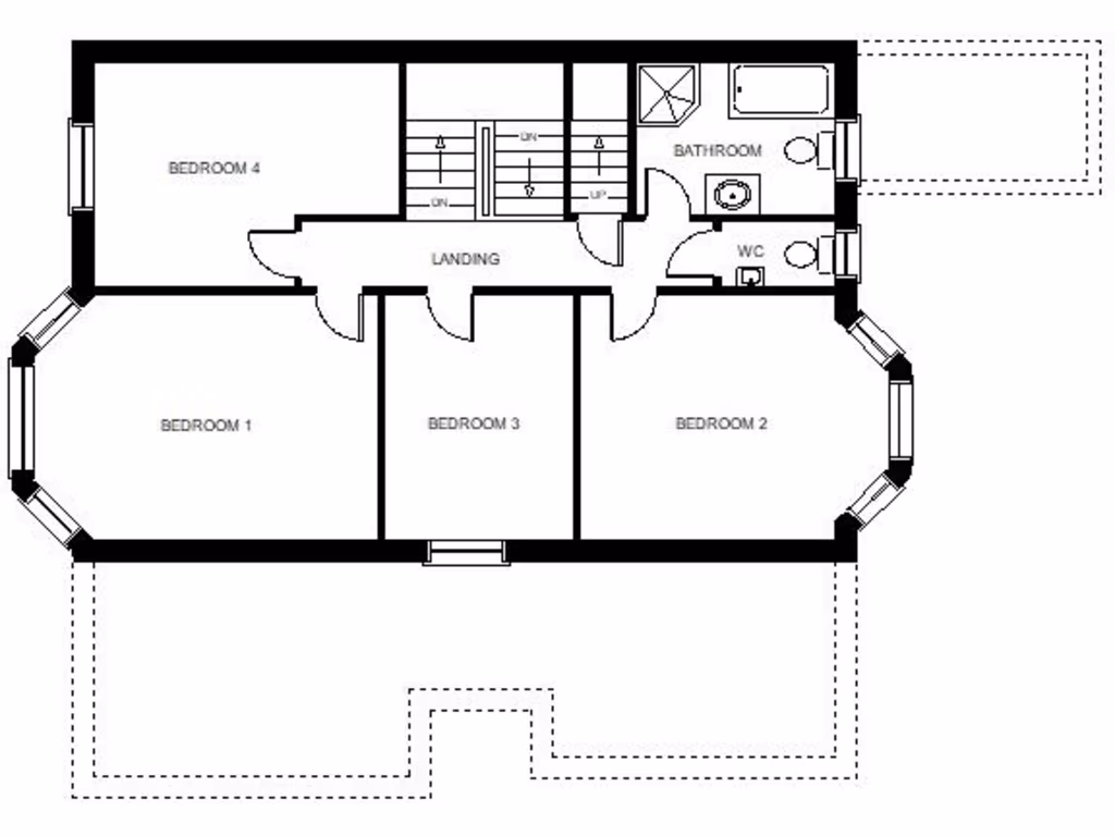
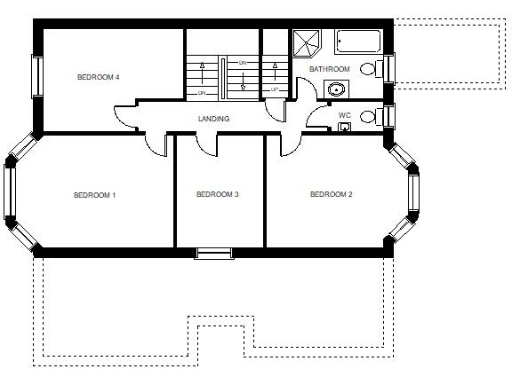
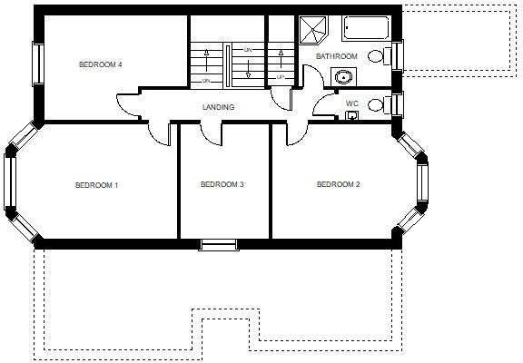
Four double bedrooms plus study and large boarded loft space
A spacious, characterful Victorian semi offering generous family accommodation and sweeping sea and coastal views. High ceilings, original moldings, a long mosaic-tiled hallway and bay windows give immediate period charm while large reception rooms suit modern family life.
The ground floor centres on a 21ft x 15ft kitchen/family room and an impressive 22ft x 17ft lounge/diner, both bright and well-proportioned for everyday living and entertaining. Four double bedrooms, a separate study and a large boarded loft (approx. 35'7" x 23'9") provide scope for growth — loft conversion is possible but would require the necessary consents.
Outside there are well-stocked, multi-tiered gardens, a courtyard seating area and a substantial double garage with workshop and an electrically operated door. The house sits in the sought-after Chambercombe area within easy walking distance of the harbour, seafront, shops and local schools.
Important practical points: heating is mains gas boiler and radiators; the property dates from the early 20th century and the stone walls are assumed uninsulated, so upgrading insulation may be advisable. There is one family bathroom and a separate WC only. Viewings require 72 hours’ notice from the seller.
4 bedroom semi-detached house for sale in Chambercombe Park Road, Ilfracombe, Devon, EX34 — £335,000 • 4 bed • 1 bath • 2422 ft²
5 bedroom semi-detached house for sale in Crofts Lea Park, Ilfracombe, Devon, EX34 — £650,000 • 5 bed • 2 bath • 1363 ft²
4 bedroom semi-detached house for sale in Sunnyside, Combe Martin, Ilfracombe, EX34 — £375,000 • 4 bed • 2 bath • 1653 ft²
5 bedroom semi-detached house for sale in Highfield Terrace, Ilfracombe, Devon, EX34 — £355,000 • 5 bed • 2 bath • 1334 ft²
4 bedroom terraced house for sale in Station Road, Ilfracombe, Devon, EX34 — £345,000 • 4 bed • 2 bath • 2296 ft²
6 bedroom semi-detached house for sale in Crofts Lea Park, Ilfracombe, Devon, EX34 — £975,000 • 6 bed • 3 bath • 3100 ft²


























































































































































