CW1 5ED - 4 bedroom detached house for sale in Limes Close, Crewe, CW1

View on Property Piper

4 bedroom detached house for sale in Limes Close, Crewe, CW1

Summary - 9 LIMES CLOSE HASLINGTON CREWE CW1 5ED

4 bed 3 bath Detached

**Standout Features:**
- Spacious detached family home with 4 bedrooms and 3 bathrooms.
- Detached garage and paved driveway for convenient parking.
- Located in the peaceful village of Haslington with excellent amenities nearby.
- Recent modern construction (2003-2006) with double glazing and efficient gas heating.
- Very low crime rate in an affluent area, making it a safe environment for families.
- Fast broadband and excellent mobile signal for connectivity.

**Concerns:**
- Average-sized property in a residential neighborhood may cater less to those seeking extensive outdoor space.
- Property may require maintenance typical of average-condition homes.

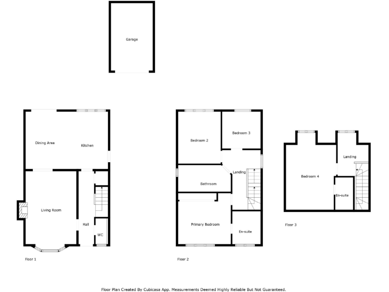
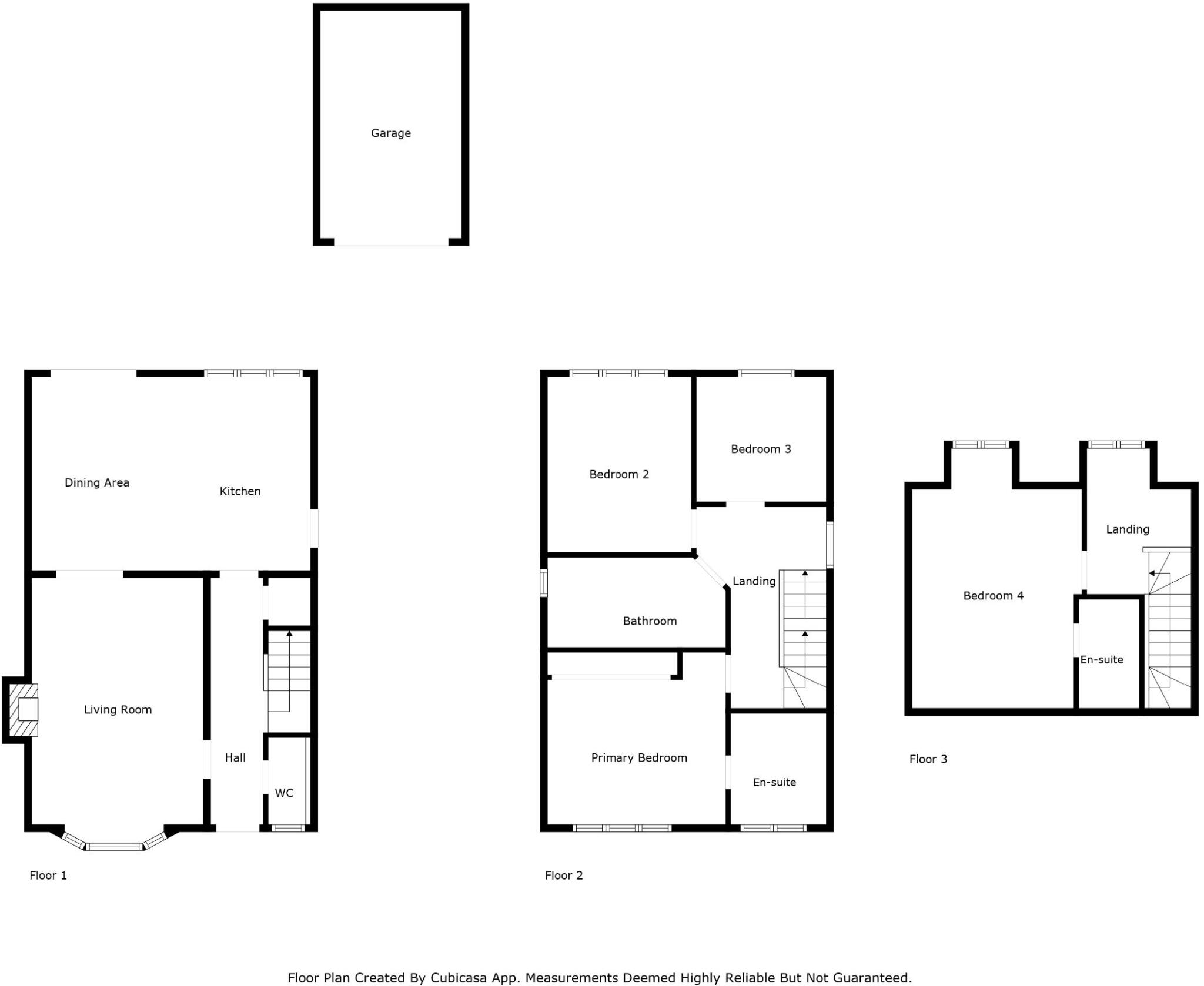
Nestled in the sought-after village of Haslington, this modern detached property is ideal for families seeking space and comfort. Spanning three floors, it includes a generous living room, a well-equipped kitchen, and four bedrooms, with the master boasting its own en-suite for added luxury. The convenience of three bathrooms ensures practicality for busy morning routines.

Enjoy the benefits of a detached garage and driveway for hassle-free parking. With local shops, reputable schools, and transport links just a short distance away, this home offers both tranquility and accessibility. In a safe, affluent neighborhood with low crime rates and a strong sense of community, this property is an opportunity not to be missed. Take the next step towards your dream home—schedule a viewing today and start envisioning your new life in Haslington.

Property Details

Brochure Descriptions

Image Descriptions

Floorplan Description

Rooms

Textual Property Features

Detected Visual Features

EPC Details

Nearby Schools

Nearest Bars And Restaurants

,,,,}

Nearest General Shops

,,}

Nearest Grocery shops

,,}

Nearest Supermarkets

,,}

Nearest Religious buildings

,,}

Nearest Medical buildings

,,,}

Nearest Airports

}

Nearest Leisure Facilities

,,,,}

Nearest Tourist attractions

,,}

Nearest Train stations

,,,,}

Nearest Bus stations and stops

,,,,}

Nearest Hotels

,,}

Tags

Local Market Stats

Similar Properties

Meta

High Res Images

Compatible Images

Low res Images

Thumbnails

Raw Images

High Res Floorplan Images

Compatible Floorplan Images

Low res Floorplan Images

FloorplanImages Thumbnail

Raw Floorplan Images