**Standout Features:**
- Newly renovated 4-bedroom flat
- 4 modern bathrooms
- Prime riverfront location within a historic building
- Leisure facilities that include a gym, 20m pool, sauna, and 24-hour concierge services
- Private balcony with stunning urban and river views
- Chain-free sale for swift transition
- Highly desirable area with low crime rates and excellent amenities
**Summary:**
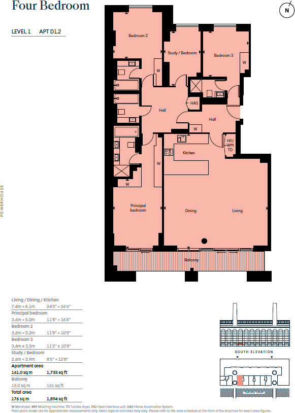
Immerse yourself in luxury living with this newly renovated 4-bedroom flat located in the iconic Lots Road Power Station, a stunning piece of London history reborn into a contemporary residential haven. With a generous total of 1733 sq ft, this lateral apartment features a spacious dining and reception area bathed in natural light, four stylish bathrooms, and a modern kitchen equipped with integrated appliances. Enjoy exclusive access to premium leisure facilities, including a state-of-the-art gym, a serene swimming pool overlooking the River Thames, and a residents' lounge perfect for relaxing or socializing.
Held within a prestigious, chain-free context, this remarkable property benefits from exceptional transport links to Clapham Junction and Kensington, while being minutes away from sought-after schools and local amenities. However, prospective buyers should note that the property has listed status which may present challenges during the purchasing process, coupled with an annual service charge of £19,063, regarded as expensive. With its unparalleled location and luxurious features, this is a rare opportunity that promises remarkable living experience—don’t miss out!
3 bedroom flat for sale in Powerhouse, Chelsea Waterfront, Lots Road, Chelsea, London SW10 0QD, SW10 — £2,159,000 • 3 bed • 3 bath • 1249 ft²
3 bedroom flat for sale in Power House, Chelsea, London, SW10 0JS, SW10 — £3,404,000 • 3 bed • 3 bath • 1654 ft²
2 bedroom flat for sale in Powerhouse, Chelsea Waterfront, Lots Road, Chelsea, London SW10 0QD, SW10 — £1,926,000 • 2 bed • 2 bath • 1115 ft²
3 bedroom flat for sale in Powerhouse, Chelsea Waterfront, Lots Road, Chelsea, London SW10 0QD, SW10 — £2,030,000 • 3 bed • 3 bath • 1281 ft²
4 bedroom flat for sale in Chelsea Waterfront, Waterfront Drive, London, SW10., SW10 — £5,888,000 • 4 bed • 4 bath • 2327 ft²
3 bedroom apartment for sale in 1 Waterfront Drive, London,
SW10 0AA, SW10 — £2,233,000 • 3 bed • 3 bath • 1292 ft²


























































































































































