Spacious plot beside Richmond Park with strong development potential.
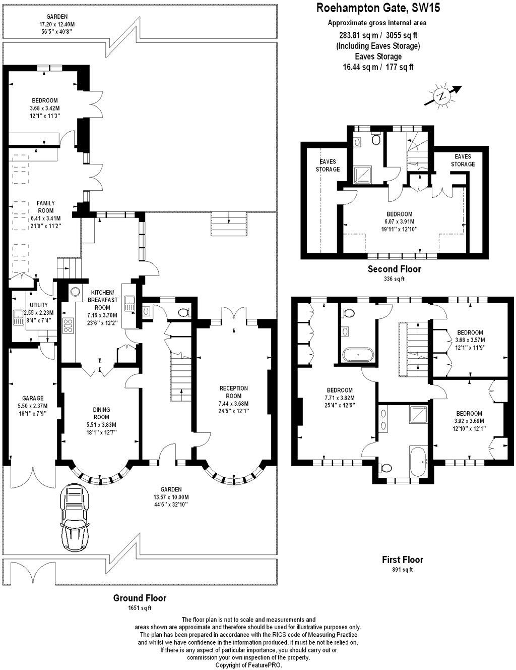
Approx. 3,055 sq ft across three floors, large period rooms
An imposing five-bedroom Edwardian detached house arranged over three floors, offering about 3,055 sq ft of well-proportioned living space and a generous west‑facing garden. High ceilings, large bay windows and substantial reception rooms reflect the house’s period character, while outside features include irrigation, perimeter lighting, off‑street parking for 3–4 cars and remote CCTV with full alarm for added security. The layout already suits a large family, with a ground-floor bedroom and utility space, a principal suite with walk‑in dressing room, and a very large top-floor guest bedroom.
There is clear scope to improve and extend. Recently expired planning consent permitted a replacement or extension to over 5,500 sq ft — an indicative sign of significant development potential, but that consent is no longer active and would need reapplication. The property’s solid brick construction (likely with little wall insulation) and its age mean upgrading for energy efficiency and modern services could be required if you seek lower running costs or an all‑new interior specification.
Location is a major asset: Roehampton Gate sits adjacent to Richmond Park with excellent local schools and sports facilities nearby, making this a practical family address. Broadband and mobile signals are strong and the plot is large for London, useful for garden projects, entertaining or a future rebuild subject to permissions. Council tax is very expensive; budget accordingly for ongoing ownership costs.
For buyers seeking substantial family accommodation close to open green space, this house balances immediate liveability with longer‑term potential. Investors or developers should note the expired planning consent and the site’s demonstrated capacity for a much larger replacement dwelling, but must factor in the time and cost to secure new approvals and to carry out insulation or system upgrades.
5 bedroom detached house for sale in Roedean Crescent, Richmond Park, SW15 — £3,750,000 • 5 bed • 2 bath • 1685 ft²
7 bedroom house for sale in Roehampton Gate, South West London, SW15, United Kingdom, SW15 — £6,250,000 • 7 bed • 5 bath • 7000 ft²
5 bedroom detached house for sale in Roedean Crescent, London, SW15 — £3,750,000 • 5 bed • 2 bath • 3659 ft²
6 bedroom detached house for sale in Roedean Crescent, London, SW15 — £5,950,000 • 6 bed • 5 bath • 7004 ft²
5 bedroom detached house for sale in Roedean Crescent, London, SW15 — £3,750,000 • 5 bed • 2 bath • 3659 ft²
7 bedroom detached house for sale in Roehampton Gate, Roehampton, London, SW15 — £10,500,000 • 7 bed • 6 bath • 10134 ft²














































































