Large open-plan living near Brick Lane and Liverpool Street.
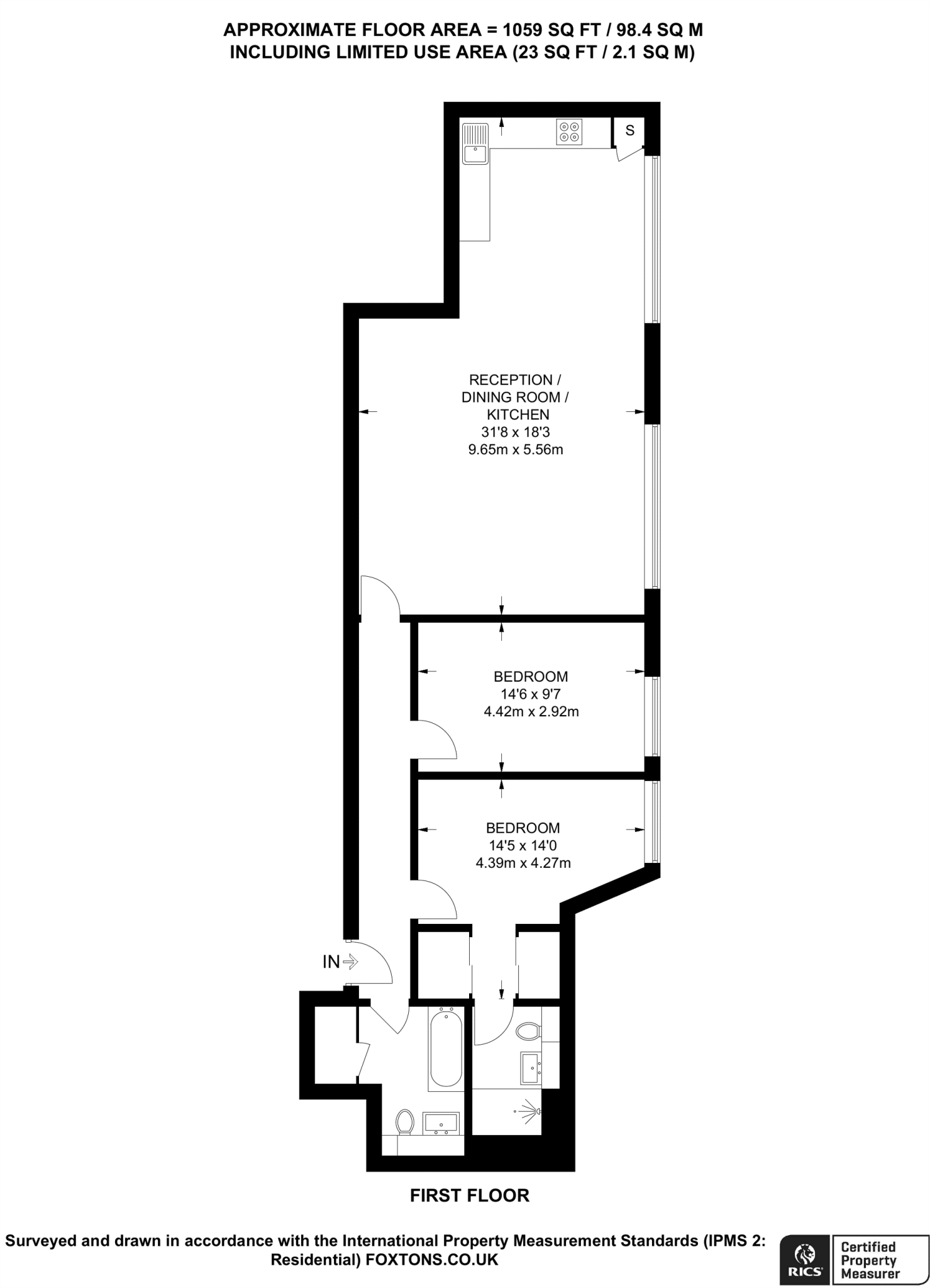
First-floor two-bedroom flat, approximately 1,059 sq ft
Set on the first floor of a period end-terrace in Spitalfields, this spacious two-bedroom flat offers a bright, modern interior and generous living space. The large open-plan reception with high ceilings and exposed brick creates a contemporary loft feel, while a sleek main bathroom and en suite add practical convenience for two occupants or sharers.
At about 1,059 sq ft the layout feels unusually large for central London: two double bedrooms, flexible open-plan living and a dining-ready contemporary kitchen make this a comfortable home for first-time buyers or professionals sharing. Transport and amenities are outstanding — Brick Lane, Spitalfields Market and Liverpool Street are within easy walking distance, and fast broadband and excellent mobile signal support home working.
There are material points to note. The property is leasehold — prospective buyers should confirm lease length, ground rent and service charges before committing. The building dates from the 1930s–1940s and has solid brick walls with assumed lack of insulation, so energy upgrades could be beneficial. The local area records very high crime levels and is classified as very deprived; the lively nightlife and markets nearby are a plus for some but may bring noise and footfall.
Overall this is a roomy, characterful flat in a prime central location that suits buyers seeking space, light and city convenience. It offers good potential for modernising energy performance and tailoring finishes, but buyers should factor in lease details and local area considerations when viewing.
2 bedroom maisonette for sale in Wheler Street, Spitalfields, London, E1 — £1,100,000 • 2 bed • 1 bath • 1040 ft²
2 bedroom flat for sale in Greatorex Street, Brick Lane, London, E1 — £475,000 • 2 bed • 2 bath • 782 ft²
2 bedroom flat for sale in Gatsby Apartments, Wentworth Street, Spitalfields, London, E1 — £850,000 • 2 bed • 2 bath • 958 ft²
2 bedroom flat for sale in Commercial Street, Aldgate, London, E1 — £750,000 • 2 bed • 2 bath • 810 ft²
2 bedroom flat for sale in Cornerstone Court, Hemming Street, Bethnal Green, London, E1 — £450,000 • 2 bed • 1 bath • 603 ft²
2 bedroom flat for sale in Folgate Street, Spitalfields, London, E1 — £700,000 • 2 bed • 2 bath • 742 ft²














































































































































































