Newly renovated ground-floor home with private garden and fast rail links.
Two double bedrooms with high ceilings throughout
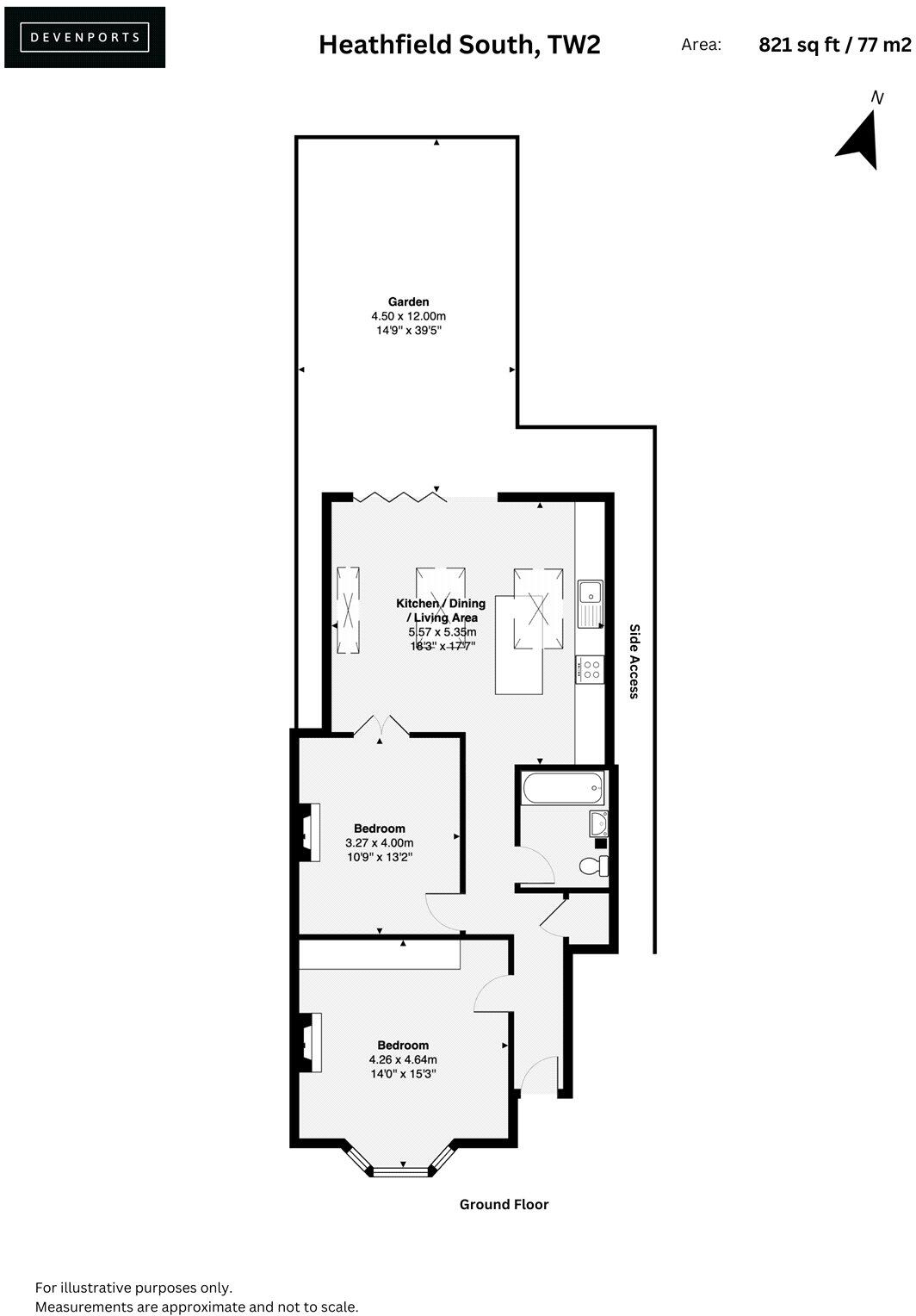
This ground-floor Victorian maisonette pairs period character with a recent, high-quality renovation. The living space has been extended to create a bright kitchen/dining room with bi-fold doors that flow onto a private, landscaped garden — ideal for relaxed indoor-outdoor living and entertaining. Two true double bedrooms and high ceilings keep the apartment feeling spacious throughout its 821 sq ft.
Practical points suit everyday life: the property is just 0.3 miles from Twickenham station for direct Waterloo links, close to the high street, and sits in a very affluent neighbourhood with excellent local schools. The flat benefits from double glazing, a mains gas boiler with radiators, and a share of freehold tenure.
Buyers should note a few material points. The building is Victorian with solid brick walls that are assumed uninsulated, and the double glazing install date is unknown — both could affect heating costs and future upgrade plans. Council tax band is not provided. Overall, this is a newly renovated, characterful flat that offers convenient commuter access and a private garden, suited to first-time buyers or anyone seeking a spacious, low-risk move-in ready home with scope to personalise.
2 bedroom maisonette for sale in Fulwood Gardens, Twickenham, TW1 — £570,000 • 2 bed • 2 bath • 808 ft²
3 bedroom terraced house for sale in Heathfield North, Twickenham, TW2 — £1,200,000 • 3 bed • 2 bath • 1046 ft²
2 bedroom maisonette for sale in Elmsleigh Road, Twickenham, TW2 — £435,000 • 2 bed • 1 bath • 548 ft²
2 bedroom maisonette for sale in Third Cross Road, Twickenham, TW2 — £450,000 • 2 bed • 1 bath • 538 ft²
2 bedroom maisonette for sale in Hampton Road, Twickenham, TW2 — £500,000 • 2 bed • 1 bath • 867 ft²
5 bedroom end of terrace house for sale in Third Cross Road, Twickenham, TW2 — £1,150,000 • 5 bed • 2 bath • 1562 ft²


















































