**Standout Features:**
- Prime location in Sandsend with outstanding sea views
- Three/four bedrooms, all with en-suite bathrooms
- Garage and additional parking space—rare in this area
- Newly renovated, modern design throughout
- Successful holiday letting property, available as a turn-key purchase
**Summary:**
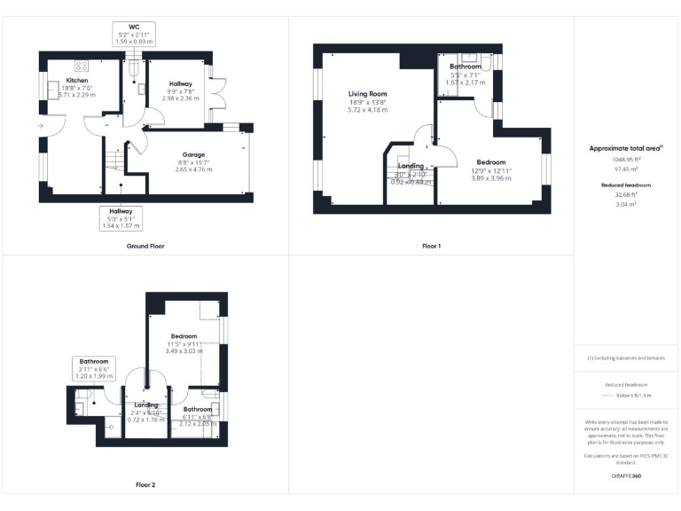
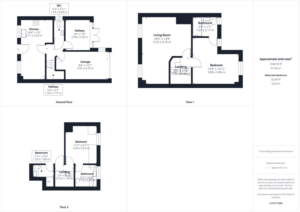
Discover an exceptional opportunity to own a beautifully renovated semi-detached residence in the heart of Sandsend, boasting stunning sea views just steps from the beach. This spacious property features three to four bedrooms, each equipped with luxury en-suite bathrooms, making it perfect for families or as a lucrative holiday rental. The modern open-plan kitchen and a sunroom add immense charm, while the expansive lounge captures breathtaking ocean vistas.
Set across three levels, the home ensures ample natural light and comfortable living spaces. A garage with utility capabilities and a separate parking space provide unusual convenience for a coastal property. Enjoy relaxation on the stone-flagged terrace or explore charming local amenities just a short walk away, including cafes and pubs. With its current success as a holiday let, this residence is not just a home; it's a turn-key investment opportunity that won’t last long in today’s competitive market. Don’t miss your chance to make it yours!
4 bedroom end of terrace house for sale in Lythe Bank, Sandsend, YO21 — £1,449,000 • 4 bed • 4 bath
5 bedroom semi-detached house for sale in Quayside, Sandsend, YO21 3SY, YO21 — £650,000 • 5 bed • 2 bath • 1560 ft²
2 bedroom ground floor flat for sale in East Row, YO21 — £425,000 • 2 bed • 2 bath • 951 ft²
2 bedroom terraced house for sale in Dunholm, Low Row, Sandsend YO213TH, YO21 — £399,950 • 2 bed • 1 bath • 383 ft²
2 bedroom cottage for sale in Harlow Cottage, Sandsend, YO21 — £350,000 • 2 bed • 1 bath • 711 ft²
1 bedroom apartment for sale in The Parade, Sandsend, YO21 — £295,000 • 1 bed • 2 bath • 829 ft²


























































































































